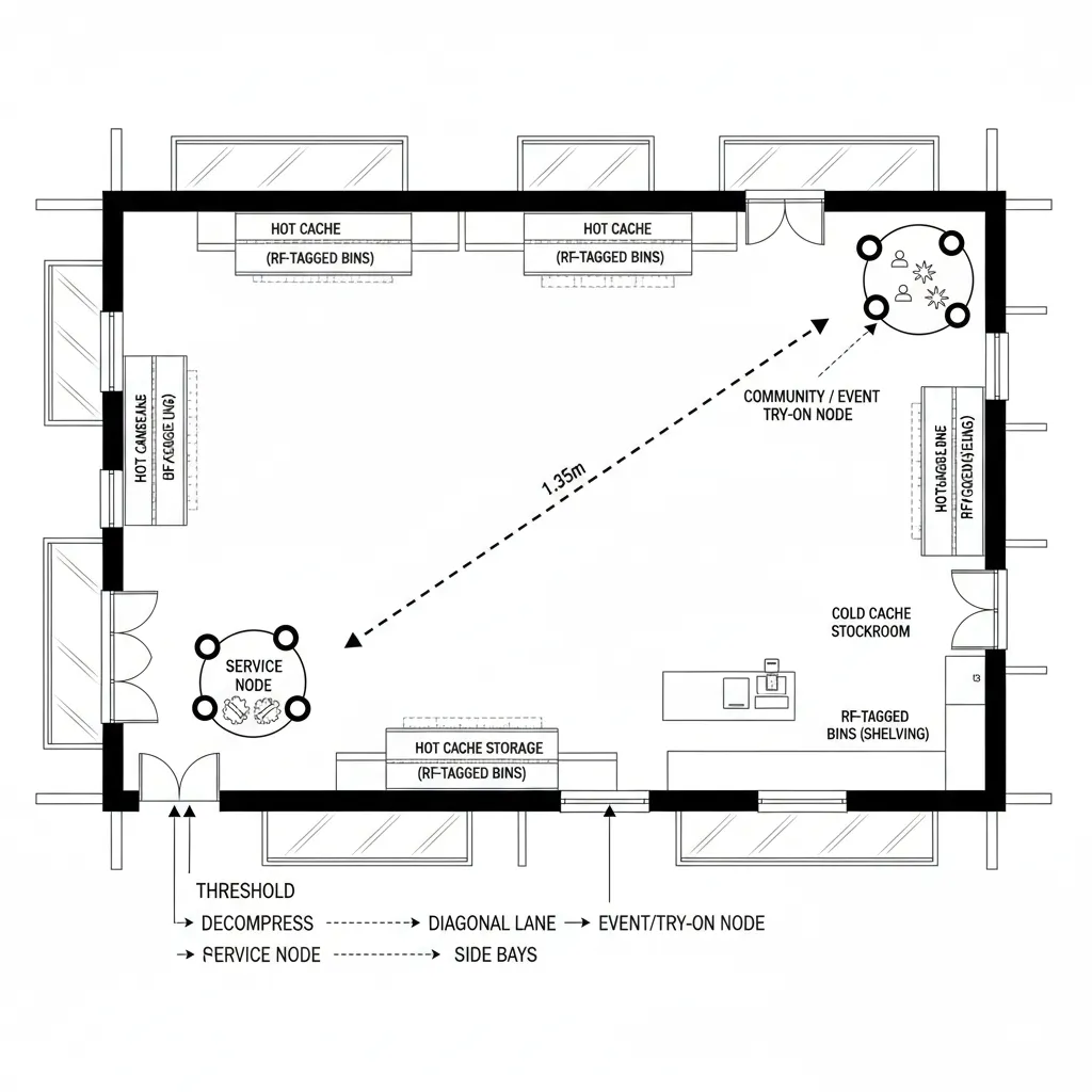
Shop Floor Plan, Written From the Near Future: Retail as an Interface: Programming Flow, Sightlines, and Cache for a Shop That Thinks AheadMiles Witt, Retail Foresight DesignerDec 03, 2025Table of ContentsPerimeter Loop with Central IslandDiagonal Spine with Anchor ZonesGrid Micro-Aisles with Back-of-House Portal## Final TakeawayTable of ContentsPerimeter Loop with Central IslandDiagonal Spine with Anchor ZonesGrid Micro-Aisles with Back-of-House Portal## Final TakeawayFree floor plannerEasily turn your PDF floor plans into 3D with AI-generated home layouts.Convert Now – Free & InstantThe future is pressing in, and the present’s retail pain points—fragmented flow, blind corners, and storage debt—are already showing the cracks. AIA reports that retail renovation backlogs have sustained growth across recent quarters, yet many plans still ignore behavioral drift toward micro-errands and mixed-use browsing; I read a shop floor plan like early code for tomorrow’s transactions. I anchor decisions with one quiet tool: spatial reasoning toolkit, then choreograph traffic the way software handles requests.Perimeter Loop with Central IslandDesign Logic: The loop builds a predictable circuit for quick scanning while a central island acts as a change-log—seasonal, limited drops, or demos—matching the trend toward fast, episodic retail.Flow: Entry → left-hand loop → island dwell → backwall service → checkout near exit; it’s a clean function call with no dead branches.Sightlines: Low fixtures at the island keep a 360° read; header graphics on walls layer like UI breadcrumbs from near to far.Storage: Under-island drawers and backwall high-bays act as hot/cold cache, enabling quick restock without breaking the loop.Furniture Fit: 36–42 in aisles, 30 in island depth, gondolas capped at 54 in—API limits that keep human bandwidth high.Verdict: Five years on, this remains a resilient circuit for impulse plus mission shopping, with simple re-skins as product sprints evolve.save pinDiagonal Spine with Anchor ZonesDesign Logic: A single diagonal spine shortens perceived distance, pulling users through like a progress bar; anchors at both ends satisfy the future’s hybrid needs—service on one side, community micro-events on the other.Flow: Threshold decompress → diagonal browse lane → side bays → service node → event/try-on node → peripheral checkout.Sightlines: The angled axis reveals successive vignettes; end-cap lighting becomes the bold headline, with side bays as subheads.Storage: Flank the spine with shallow bay storage (hot cache) and a rear stockroom (cold cache) with RF-tagged bins for rapid picks.Furniture Fit: 30–34 in bay depths, 20–24 in face-outs, modular plinths that stack like components for feature pushes.Verdict: This pattern optimizes speed and storytelling; it’s future-proof when promos, pop-ups, and services need quick swapping.save pinGrid Micro-Aisles with Back-of-House PortalDesign Logic: A tight grid treats the floor as inventory UI, ideal for SKUs with parity; the portal consolidates staff routes, aligning with buy-online-pickup-now rhythms.Flow: Entry scan → short cross-aisles → decision nodes every 12–16 ft → portal pick path → front micro-checkout or mobile exit.Sightlines: Shelf heights cascade—48 in foreground, 60 in mid, 72 in back—so information layers without visual noise.Storage: End-cap cabinets buffer fast movers; portal zone holds labeled totes and a returns sink—your asynchronous queue.Furniture Fit: 8–10 ft aisle pitch, 36 in clear, peg-and-shelf hybrids for quick reindexing of categories.Verdict: When demand spikes, this grid compiles quickly; it’s the quiet engine for omnichannel fulfillment without killing browse time.save pin## Final TakeawayA shop floor plan is not just walls and gondolas; it’s the interface where product logic meets human latency. With variations like perimeter loops, diagonal spines, and micro-aisle grids, the retail layout becomes a living API for foot traffic, storytelling, and stock. In my experience, the smartest stores of the near future won’t be bigger—only better compiled for flow, sightlines, and cache, and what I keep seeing in my projects is that small spatial instructions rewrite the whole customer journey.Convert Now – Free & InstantPlease check with customer service before testing new feature.Free floor plannerEasily turn your PDF floor plans into 3D with AI-generated home layouts.Convert Now – Free & Instant