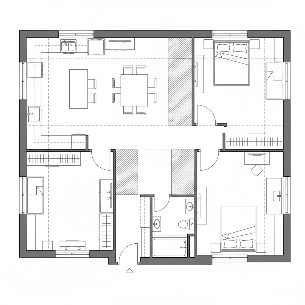
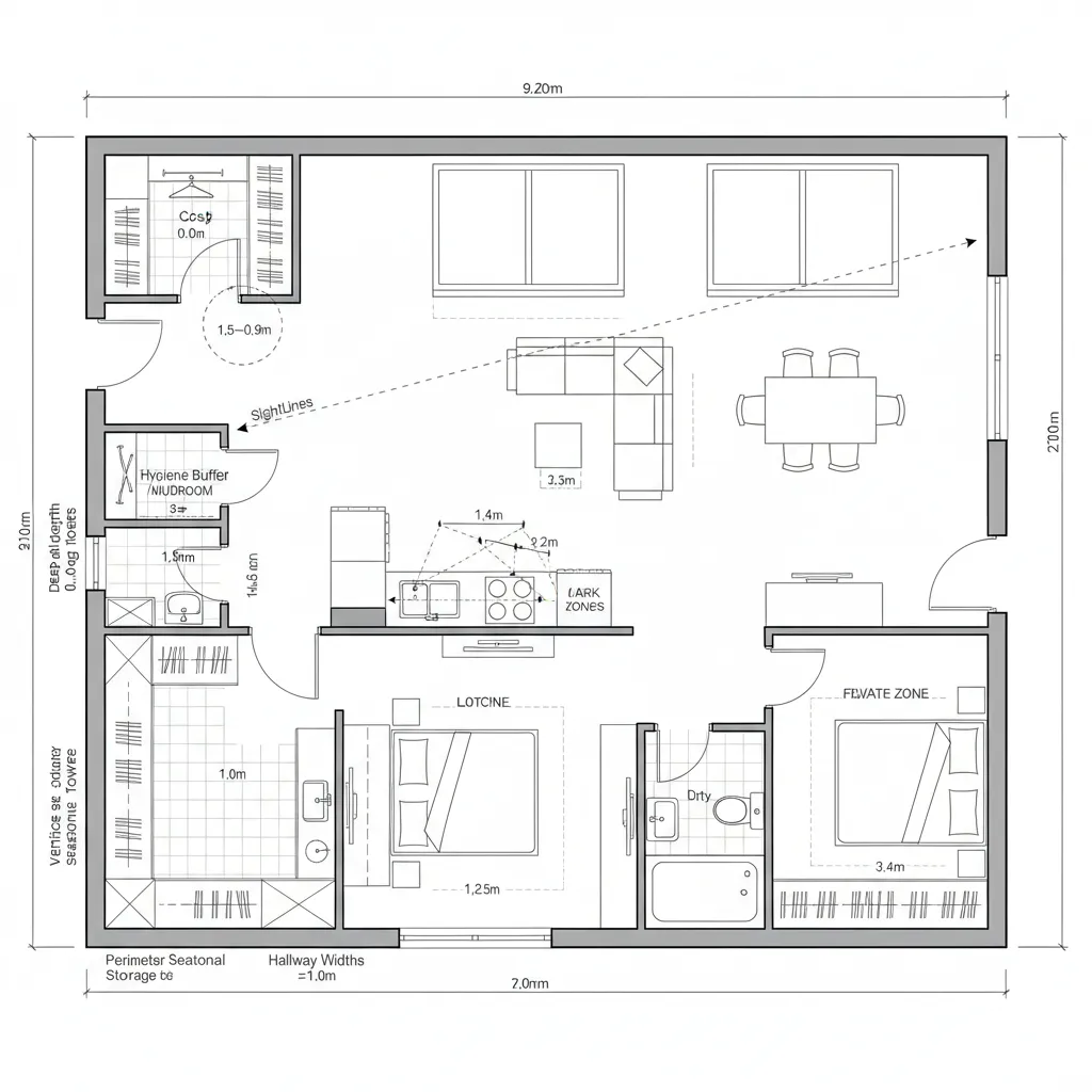
Simple Architectural Floor Plan, Future-Tuned: How a clean plan becomes a living interface for tomorrow’s routinesMerrit Vale, Residential FuturistDec 24, 2025Table of ContentsPerimeter Spine with Open CoreSplit-Bar with Pocket Flex RoomCourtyard Loop MicroplanFinal TakeawayTable of ContentsPerimeter Spine with Open CoreSplit-Bar with Pocket Flex RoomCourtyard Loop MicroplanFinal TakeawayFree floor plannerEasily turn your PDF floor plans into 3D with AI-generated home layouts.Convert Now – Free & InstantThe future keeps pressing against our doors, and the current pain is cluttered movement, rooms that don’t multitask, and light wasted by partitions. AIA reports sustained demand for flexible residential layouts even as overall square footage plateaus—proof that simplicity must carry more function. In that tension, a simple architectural floor plan becomes my operating system for what’s next. spatial reasoning toolkitPerimeter Spine with Open CoreDesign Logic:Utilities and storage ride the perimeter like a stable kernel; the core stays open for modulated uses—work, dining, soft play—anticipating hybrid living.Flow:Entry → hygiene buffer → kitchen node → open lounge → sleep module; no dead ends, only loops that compress or expand by need.Sightlines:Door-to-window diagonals read like UI headers; a long axis anchors attention while side vistas layer secondary info.Storage:Wall-depth pantries and coat bays act as cache, pulling friction out of daily routines, with vertical zones for seasonal data.Furniture Fit:API constraints: 30–36 in circulation, 60 in turning nodes, modular sofa segments dock and undock without breaking flow.Verdict:The plan stays legible under changing bandwidth—kids, guests, remote work—holding clarity five years out.save pinOpen in 3D Planner Processing... Split-Bar with Pocket Flex RoomDesign Logic:Two bars—active (kitchen/dining) and quiet (sleep)—are bridged by a pocket flex room that compiles into office, nursery, or media pod.Flow:Parallel tracks minimize collisions; cross-paths occur at controlled intersections like well-timed interrupts.Sightlines:Translucent sliders grant privacy while keeping luminance continuity, so the home reads as one interface, not silos.Storage:Under-window drawers, headboard niches, and a hallway gear rail store the “daily cache” within one reach-depth.Furniture Fit:9–10 ft dining span, 24 in counter landings, fold-flat desk at 48 in width—each dimension talks to the next like APIs.Verdict:This split logic future-proofs life phases without overbuilding, sustaining calm throughput as needs iterate.save pinOpen in 3D Planner Processing... Courtyard Loop MicroplanDesign Logic:A micro-courtyard or light well becomes the clock speed—air, sun, and views synchronize the plan around a loop corridor.Flow:Ring movement prevents bottlenecks: entry ↻ kitchen ↻ lounge ↻ sleep ↻ bath ↻ back to entry—continuous compile time.Sightlines:Every room references the void like a home screen; layered thresholds deliver progressive disclosure of space.Storage:Ring shelves, corner towers, and ceiling coffers operate as tiered caching—hot, warm, cold—by proximity to use.Furniture Fit:Curved-edge tables and 15–18 in walk-by clearances at tight arcs keep the loop uninterrupted.Verdict:Small footprint, high signal: the loop teaches the home to breathe, resilient to program shifts.save pinOpen in 3D Planner Processing... Final TakeawayA simple architectural floor plan isn’t minimal for its own sake; it’s minimal so future layers can dock without friction. Through clean axes, cached storage, and clear API-like dimensions, the plan becomes a living interface for evolving routines and long-tail needs. Whether it’s an uncluttered layout or a microcourt loop, simplicity is the scaffold for complexity to arrive gracefully. In my experience, the smartest homes of the future won’t be larger—only more intentional.Convert Now – Free & InstantPlease check with customer service before testing new feature.Free floor plannerEasily turn your PDF floor plans into 3D with AI-generated home layouts.Convert Now – Free & Instant