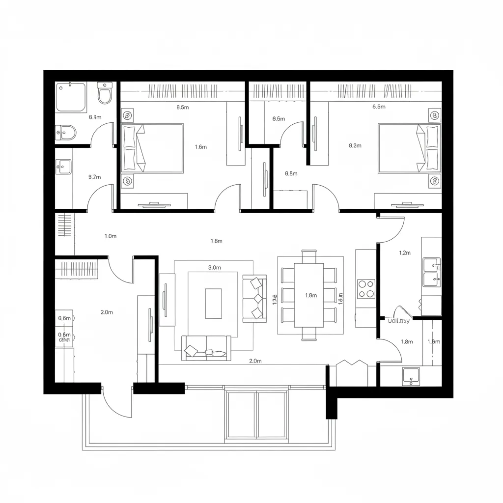
Simple Box-Type House: Future-Ready Floor Plan: A compact rectangle that compiles everyday life into clean logic and long-term calmAlden NorthDec 24, 2025Table of ContentsFront-Entry Linear RibbonCourtyard Box with Center Light WellSplit-Box: Day/Night PartitionFinal TakeawayTable of ContentsFront-Entry Linear RibbonCourtyard Box with Center Light WellSplit-Box Day/Night PartitionFinal TakeawayFree floor plannerEasily turn your PDF floor plans into 3D with AI-generated home layouts.Convert Now – Free & InstantThe future squeezes complexity into clarity, and the present aches with clutter, leakage of time, and rooms that don't speak to each other. I keep seeing the box form as a calm interface where movement, storage, and light compile into one intelligible code—AIA’s post-occupancy studies consistently note that simple geometries reduce operational costs and energy drift. This simple box type house design with floor plan becomes the clean canvas for tomorrow’s habits. spatial reasoning toolkitFront-Entry Linear RibbonDesign Logic: A front entry lands into a linear sequence: foyer → living → dining → kitchen, with bedrooms tucked to the quiet edge. The future prefers fewer decision branches and clearer thresholds.Flow: Program runs left to right, minimizing backtracking; kitchen at the end is the command node for daily cycles.Sightlines: A controlled axis from door to window wall; peripheral rooms act like muted UI panels, keeping visual bandwidth focused.Storage: Wall-length built-ins along the corridor operate as a cache, absorbing seasonal gear without spilling into active lanes.Furniture Fit: Sofa depth 36", dining table 72"×36", with 36" circulation—API limits ensure no jitter in movement.Verdict: Over five years, this ribbon layout stays legible as routines evolve, compressing effort while preserving calm signal.save pinOpen in 3D Planner Processing... Courtyard Box with Center Light WellDesign Logic: The rectangle is hollowed with a small atrium; nature becomes an internal thread, mitigating perimeter constraints in tight lots.Flow: Loop circulation around the light well, like a resilient network—no single point of failure when rooms flex.Sightlines: Layered frames from kitchen to green core to bedroom doors; UI hierarchy keeps privacy two steps off the main stage.Storage: Perimeter closets act as distributed cache nodes; bench-height drawers ring the atrium for daily micro-storage.Furniture Fit: Modular seating 60" segments, round table Ø48" to slip within arcs; pieces respect the courtyard’s breathing margin.Verdict: The light well becomes a daily anchor; five-year wear patterns show less clutter and steadier mood bandwidth.save pinOpen in 3D Planner Processing... Split-Box: Day/Night PartitionDesign Logic: A clean bisect: south half for day (living/dining/kitchen), north half for night (bedrooms/office). Future rhythms prefer binary clarity over fuzzy zoning.Flow: Entry routes to the day side; a midline pocket door compiles privacy on command, like toggling modes.Sightlines: Long southern views act as primary UI; night side uses staggered openings to reduce data exposure.Storage: Day side pantry-wall and media niche; night side deep wardrobes—cache segregated to match usage cycles.Furniture Fit: Sectional capped at 96" to hold aisle width; bed frames queen/king with 30" clear each side—precision keeps latency low.Verdict: As work-from-home persists, the split-box keeps interference minimal, sustaining calm throughput across seasons.save pinOpen in 3D Planner Processing... Final TakeawayThe simple box type house design with floor plan is not about austerity; it’s about clean interfaces that make routines flow without friction. Variants like courtyard loops and day/night partitions are semantic twins, translating lifestyle into stable geometry and efficient energy paths. In my experience, the smartest homes of the future won’t be larger—only more intentional, and what I keep seeing in my projects is how disciplined rectangles quietly upgrade the way people live.Convert Now – Free & InstantPlease check with customer service before testing new feature.Free floor plannerEasily turn your PDF floor plans into 3D with AI-generated home layouts.Convert Now – Free & Instant