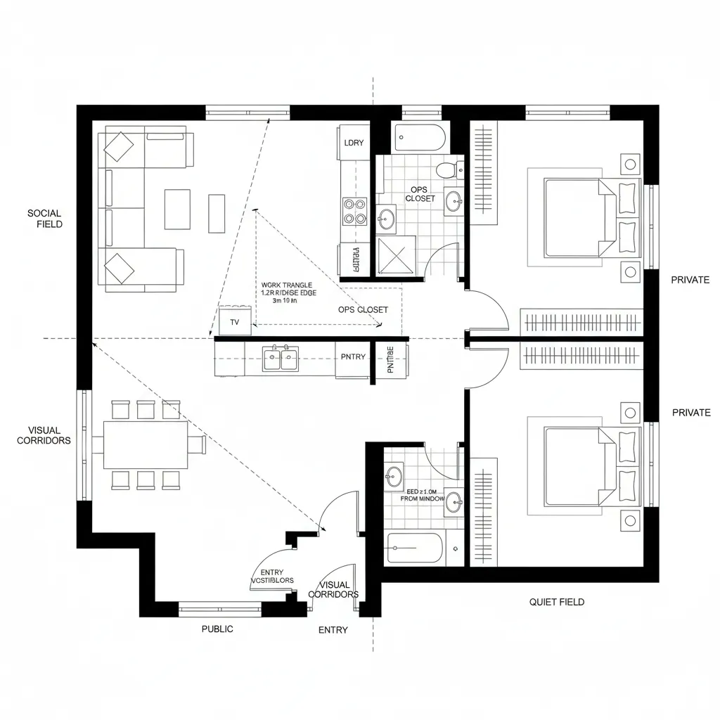
Simple Floor Plan Blueprint: A futurist designer’s read on simple plans as the early code of everyday lifeMorrow EllisDec 24, 2025Table of ContentsGallery-Line StudioCore-and-Ring One-BedSplit-Field Two-BedFinal TakeawayTable of ContentsGallery-Line StudioCore-and-Ring One-BedSplit-Field Two-BedFinal TakeawayFree floor plannerEasily turn your PDF floor plans into 3D with AI-generated home layouts.Convert Now – Free & InstantFuture living keeps narrowing the gap between intention and interface, while today’s homes still suffer from clutter, unclear flow, and visual noise. As I draft a simple floor plan blueprint, I treat it as a quiet operating system for daily rituals—because the future is already pressing in, and I can see its contours ahead. According to NAHB, open-concept preferences remain strong across buyers, but acoustics and storage rank among top pain points; a simple plan must resolve both. Here, the simple floor plan blueprint becomes my debugging tool for lifestyle latency. spatial reasoning toolkitGallery-Line StudioDesign Logic: A linear studio streams functions like a timeline—entry, pantry wall, galley kitchen, lounge, sleep bay—minimizing context-switching.Flow: The path runs one command sequence from door to window, with micro-nodes for cooking, work, and rest compiled along a single axis.Sightlines: Long sightline to the facade acts as a status bar; partial screens modulate privacy without breaking the UI of daylight.Storage: Full-height rail of cabinets becomes a cache server, with shallow depths for fast retrieval and deep modules for seasonal data.Furniture Fit: Slim sofa (72–76 in), wall desk (48 in), bed niche (54–60 in) respect API limits of a 10–12 ft bay.Verdict: Over five years, this timeline layout scales from solo living to hybrid work, sustaining clarity under higher data loads.save pinOpen in 3D Planner Processing... Core-and-Ring One-BedDesign Logic: A central service core (bath + storage) anchors a ring of living, dining, and bedroom—like a processor with peripheral ports.Flow: Loop circulation reduces backtracking; each node is accessible in two hops, improving latency for chores and hosting.Sightlines: Cross-views around the core create layered interface feedback—doorways frame toggles between public and private.Storage: Core walls host stacked closets and utility niches; a bench-run acts as a buffer cache along the ring.Furniture Fit: Dining table (60–72 in), modular sofa (84–96 in), queen bed with 30 in clear both sides align to a 12–14 ft living span.Verdict: The ring topology adapts to future hybrid schedules—guests, remote calls, meal prep—without fragmenting the plan.save pinOpen in 3D Planner Processing... Split-Field Two-BedDesign Logic: Two equal fields—social and quiet—split by a shared utility spine; balance is the algorithm, not hierarchy.Flow: Entry hands off to spine: kitchen, laundry, storage; branches route to living on one side and bedrooms on the other.Sightlines: Controlled diagonals let you read the home in layers: soft reveal of bedrooms, bold read of living plus terrace aperture.Storage: Spine hosts deep pantry, linen towers, and ops closet; perimeter built-ins act like distributed cache nodes.Furniture Fit: 9–10 ft kitchen run, sectional within a 12 ft grid, two queen rooms with 36 in clearance ensure predictable API behavior.Verdict: Over the next five years, this split-field will absorb multi-generational use and remote work without bandwidth drops.save pinOpen in 3D Planner Processing... Final TakeawayA simple floor plan blueprint is a lifestyle interface, not a diagram; its strength is in flow clarity, storage discipline, and sightline intent. In my projects, the best variants—studio timelines, core rings, split fields—behave like reliable code under changing user loads. The simplicity doesn’t mean less; it means precision, and the blueprint becomes the early language of how we’ll live next. In my experience, the smartest homes of the future won’t be larger—only more intentional.Convert Now – Free & InstantPlease check with customer service before testing new feature.Free floor plannerEasily turn your PDF floor plans into 3D with AI-generated home layouts.Convert Now – Free & Instant