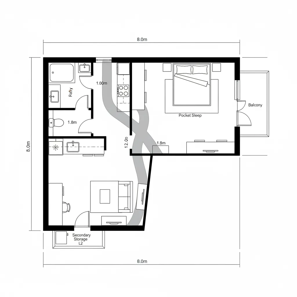
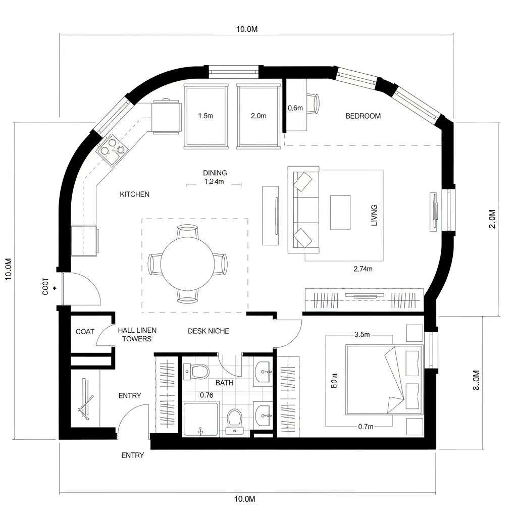
Simple Hand-Rendered Floor Plans: Analog lines that preview a near-future interface for everyday livingR. Hale, Residential Futures DesignerDec 24, 2025Table of ContentsStudio Ribbon LayoutOne-Bedroom LoopTwo-Bedroom Split CoreFinal TakeawayTable of ContentsStudio Ribbon LayoutOne-Bedroom LoopTwo-Bedroom Split CoreFinal TakeawayFree floor plannerEasily turn your PDF floor plans into 3D with AI-generated home layouts.Convert Now – Free & InstantThe future lifestyle keeps pressing closer while current homes stumble on clarity—people crave legible rooms and time-saving flow, yet their plans read like static noise. I rely on a spatial reasoning toolkit and industry signals—NAHB notes consistent demand for flexible, multi-use areas—to sketch simple hand rendered floor plans that act like early code for tomorrow’s routines. Simple hand rendered floor plans become a gentle operating system for daily motion, showing where decisions accelerate comfort.Studio Ribbon LayoutDesign Logic: A single continuous spine connects entry, prep, lounge, and sleep—one ribbon to tame small footprints and future hybrid work-life.Flow: Entry node → pantry/galley → modular lounge → pocket sleep → balcony; a clean execution path with minimal context switching.Sightlines: Low partitions keep a primary axis from door to window, secondary diagonals reveal kitchen cues without visual noise.Storage: Tall pantry plus bed-platform drawers work like a cache, near-use items in L1, seasonal bins in L2.Furniture Fit: 18–24" circulation margins, a 60" sofa as the API limit, fold-down desk aligned to the spine.Verdict: In five years, this ribbon will still read fast: fewer decisions per step, more bandwidth for living.save pinOpen in 3D Planner Processing... One-Bedroom LoopDesign Logic: A looped corridor reduces dead ends and keeps the home feeling intuitive for shared schedules and micro-retreats.Flow: Entry → coat cache → kitchen node → dining bay → living hub → bedroom → bath → back to hall; the loop prevents bottlenecks.Sightlines: Framed window vistas at each turn act like UI headers; privacy gradients increase toward the bedroom.Storage: Hall linen towers and bed wall wardrobes form a tiered cache, quick-grab at the loop, deep store at endpoints.Furniture Fit: 36" dining clearance, 30" desk depth, 9' sofa wall; every dimension honors human latency and comfort.Verdict: The loop anticipates flexible work and staggered routines, staying legible as life patterns evolve.save pinOpen in 3D Planner Processing... Two-Bedroom Split CoreDesign Logic: Bedrooms split to edges, shared core centralized—future-ready for roommates, caregiving, or multi-gen living.Flow: Entry hub → kitchen island as command node → living field → left bed suite → right bed suite; branches compile cleanly.Sightlines: Core maintains long view to glazing; cross-views are controlled to keep private zones off the main UI.Storage: Island base drawers, wall pantry, and two hallway closets create a predictable cache hierarchy.Furniture Fit: 42" island clearance, 24" counter depth, queen bed modules with 24–30" side aisles; scalable without clutter.Verdict: This split-core will age well, absorbing new roles while keeping the interface calm and orderly.save pinOpen in 3D Planner Processing... Final TakeawaySimple hand rendered floor plans are not nostalgia; they are readable code for near-future living, turning rooms into a trustworthy interface. As we move toward flexible households and hybrid work, the analog line clarifies flow, storage, and furniture constraints without noise. In my experience, the smartest homes of the future won’t be larger—only more intentional, and these drawings keep proving it.Convert Now – Free & InstantPlease check with customer service before testing new feature.Free floor plannerEasily turn your PDF floor plans into 3D with AI-generated home layouts.Convert Now – Free & Instant