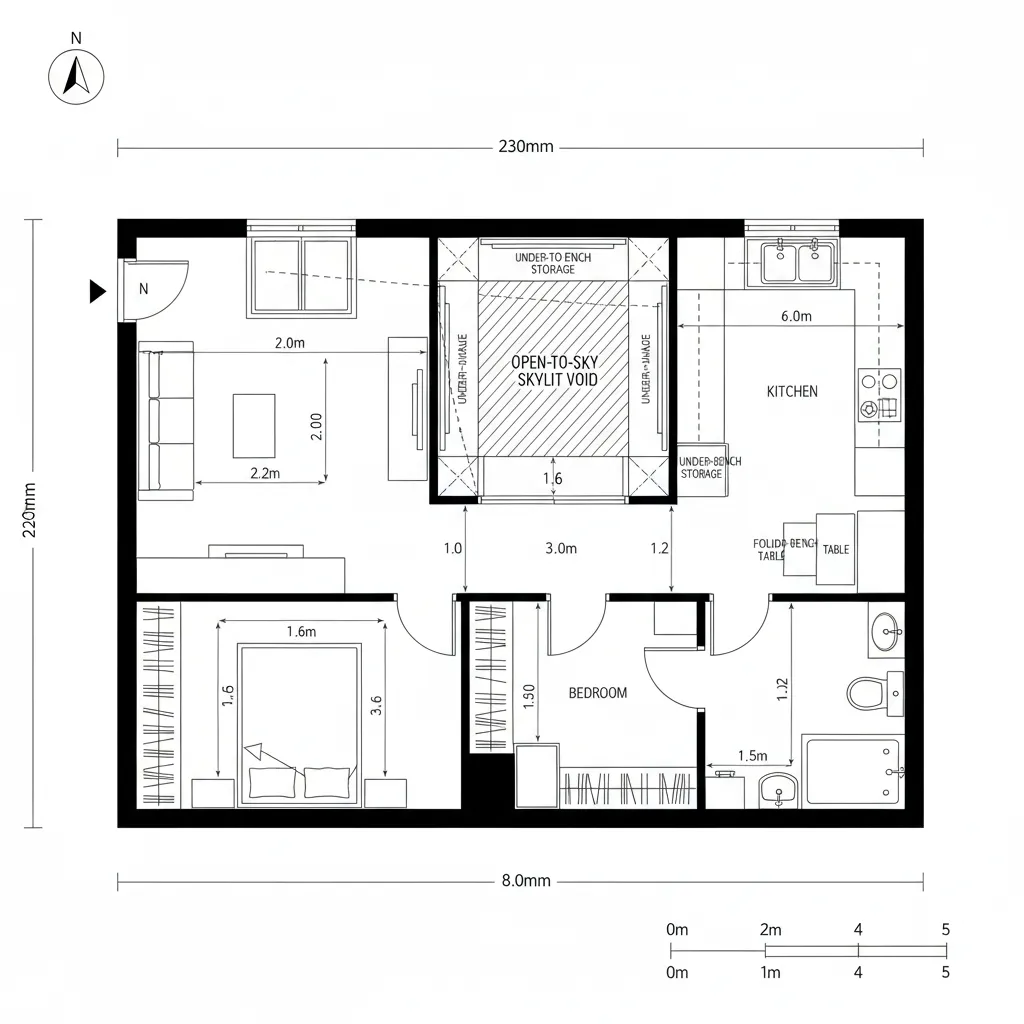
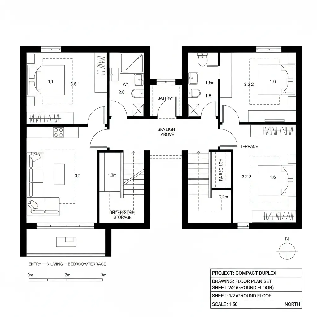
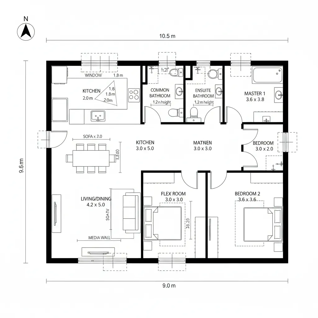
Simple House Designs & Floor Plans in India: Reading tomorrow’s habits through today’s compact Indian homesAnir DesaiDec 24, 2025Table of Contents1BHK Courtyard Spine2BHK Linear Rail with Flex RoomCompact Duplex with Terrace LabFinal TakeawayTable of Contents1BHK Courtyard Spine2BHK Linear Rail with Flex RoomCompact Duplex with Terrace LabFinal TakeawayFree floor plannerEasily turn your PDF floor plans into 3D with AI-generated home layouts.Convert Now – Free & InstantThe future lifestyle keeps pressing in while current urban constraints—plot sizes, Vastu sensitivities, multi-generational needs—still pinch. AIA notes rising demand for flexible, modest footprints, and Zillow sees buyers trading square footage for smarter layouts; I read these signals in simple house designs and floor plans in India as an early code of how we’ll live. Here’s where the interface of space starts speaking before we consciously do it: spatial reasoning toolkit.1BHK Courtyard SpineDesign Logic: A compact 1BHK anchored by a micro-courtyard behaves like a thermal and social kernel; future summers and hybrid work need this passive node.Flow: Entry → living → courtyard pivot → kitchen → bedroom → bath; a loop that avoids dead ends and respects Vastu axes.Sightlines: Long diagonal through living to green void; privacy gradients tighten near bedroom like UI permissions.Storage: Wall-depth niches and under-bench cache ring the courtyard, reducing clutter bandwidth.Furniture Fit: 2.1–2.3m sofa, 900mm dining fold-down, platform bed 1.5m × 2m; APIs tuned to narrow plots.Verdict: Five years out, this micro-void keeps the home breathable and rituals centered while utilities stay minimal.save pinOpen in 3D Planner Processing... 2BHK Linear Rail with Flex RoomDesign Logic: A rail plan along a shared wall compresses services, freeing a flex room that can switch between study, elder room, or nursery—future-proof for shifting family states.Flow: Vestibule → living/dining → flex → kitchen (wet core) → bedrooms; commands execute left-to-right without cross-talk.Sightlines: Layered panes: street → living → flex; bedrooms shielded like secondary menus.Storage: Overhead lofts above passages, under-bed drawers, kitchen tall unit as main cache server.Furniture Fit: 6-seater slim table (700mm depth), 2.4m wall media unit, wardrobes 600mm deep; clearances 900mm maintained.Verdict: This rail logic tolerates life updates—WFH, guests, newborns—without re-compiling the whole house.save pinOpen in 3D Planner Processing... Compact Duplex with Terrace LabDesign Logic: Vertical stacking uses plot constraints as a feature; terrace becomes climate lab for drying, growing, and evening social bandwidth.Flow: Ground: entry → living → kitchen; Upper: stair → bedrooms → terrace; a two-tier script that keeps noise and rest in separate threads.Sightlines: Stairwell light as primary notification; terrace horizon as daily reset screen.Storage: Stair under-store as bulk cache; terrace benches hide seasonal gear; modular kitchen with full-height pantry.Furniture Fit: Narrow stair (850–900mm) with 270mm tread, 165–170mm rise; terrace seating modules 450mm high; compact sectional 2m.Verdict: In five years, the terrace becomes the family’s adaptive interface—festival, fitness, and farming stitched into one node.save pinOpen in 3D Planner Processing... Final TakeawaySimple house designs and floor plans in India are not minimal by style; they’re minimal by instruction set, reducing friction in daily rituals while widening adaptability. From 1BHK courtyards to linear 2BHK rails and compact duplex terraces, the plan is a lifestyle interface tuned to heat, density, and generational rhythms. The smartest Indian homes won’t grow larger; they’ll grow more intentional, and in my experience the smallest spatial decisions quietly rewrite how my clients live.Convert Now – Free & InstantPlease check with customer service before testing new feature.Free floor plannerEasily turn your PDF floor plans into 3D with AI-generated home layouts.Convert Now – Free & Instant