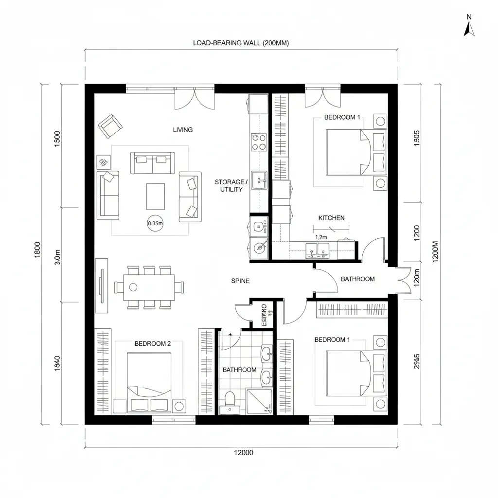
Simple Single-Floor Home Plans, Future-Ready: A designer’s interface-first vision for one-level livingAster FieldingDec 25, 2025Table of ContentsTwo-Bedroom Linear SpineCourtyard Loop with Quiet CornersSplit-Zone Compact with Flex NodeFinal TakeawayTable of ContentsTwo-Bedroom Linear SpineCourtyard Loop with Quiet CornersSplit-Zone Compact with Flex NodeFinal TakeawayFree floor plannerEasily turn your PDF floor plans into 3D with AI-generated home layouts.Convert Now – Free & InstantThe future keeps compressing complexity into calmer interfaces, while current single-floor homes still wrestle with storage drag, circulation friction, and sightline noise. I study how one-level plans can act like firmware updates to daily life—NAHB trends show continued demand for efficient layouts and aging-in-place features, which tells me the upgrade is overdue. In that spirit, simple single floor home design plans become the new operating system of domestic time. spatial reasoning toolkit sits quietly behind my decisions; the interface is the point.Two-Bedroom Linear SpineDesign Logic: A central circulation spine with rooms branching like stable modules prevents conflicts and anticipates flexible family bandwidth.Flow: Entry → open living/kitchen → spine corridor → bedrooms at ends; utility nodes tucked midline for efficient routing.Sightlines: Long axial views keep the living core legible; cross-light frames the spine as a UI header, private areas fade like secondary panels.Storage: Full-height wall runs along the spine act as cache, with timed-access zones near kitchen and laundry for quick retrieval.Furniture Fit: Sofas, a 72–84 inch table, and queen beds align with clearances as if API calls—no collisions, predictable endpoints.Verdict: A linear plan scales gracefully: kids, guests, remote work. Five years in, the spine still feels like a reliable protocol.save pinOpen in 3D Planner Processing... Courtyard Loop with Quiet CornersDesign Logic: A perimeter loop around a small courtyard organizes daylight as a resource, future-proofing wellness and passive comfort.Flow: Entry nodal → loop circulation → living on sun side → bedrooms on calm side; loop closes to minimize backtracking.Sightlines: Courtyard acts as home screen—glimpses from kitchen, hall, and study keep orientation simple and serene.Storage: Perimeter built-ins behave like ring buffer: pantry near kitchen, linens near bath, outdoor gear at threshold.Furniture Fit: Low-profile sectionals, modular shelving, and 30-inch walkway budgets stabilize the loop’s data throughput.Verdict: The loop reduces cognitive load; in future seasons, you tune light and privacy without rewriting the plan.save pinOpen in 3D Planner Processing... Split-Zone Compact with Flex NodeDesign Logic: Public and private halves split by a service bar—bath, laundry, and storage—forming a clear binary that adapts to changing roles.Flow: Entry → living/kitchen hub → service bar → bedrooms/study; guest access stops at the bar, deeper paths reserved.Sightlines: Diagonal views across living to a flex node feel like layered UI: primary content foreground, auxiliary panels beyond.Storage: The service bar is the cache server: tall pantry, utility closet, and hidden laundry keep latency low.Furniture Fit: Space budgets define endpoints: 9–10 ft kitchen run, 5 ft dining radius, integrated desk niches for hybrid work.Verdict: This split holds up under future toggles—nursery to studio, guest to wellness room—without breaking the architecture.save pinOpen in 3D Planner Processing... Final TakeawaySimple single floor home design plans are less about minimalism and more about an interface that lets life compile cleanly. One-level living, efficient circulation, and thoughtful sightlines keep bandwidth steady while storage behaves like reliable memory. In my experience, the smartest homes of the future won’t be larger—only more intentional, and what I keep seeing in my projects is how small spatial decisions quietly rewrite the way people live.Convert Now – Free & InstantPlease check with customer service before testing new feature.Free floor plannerEasily turn your PDF floor plans into 3D with AI-generated home layouts.Convert Now – Free & Instant