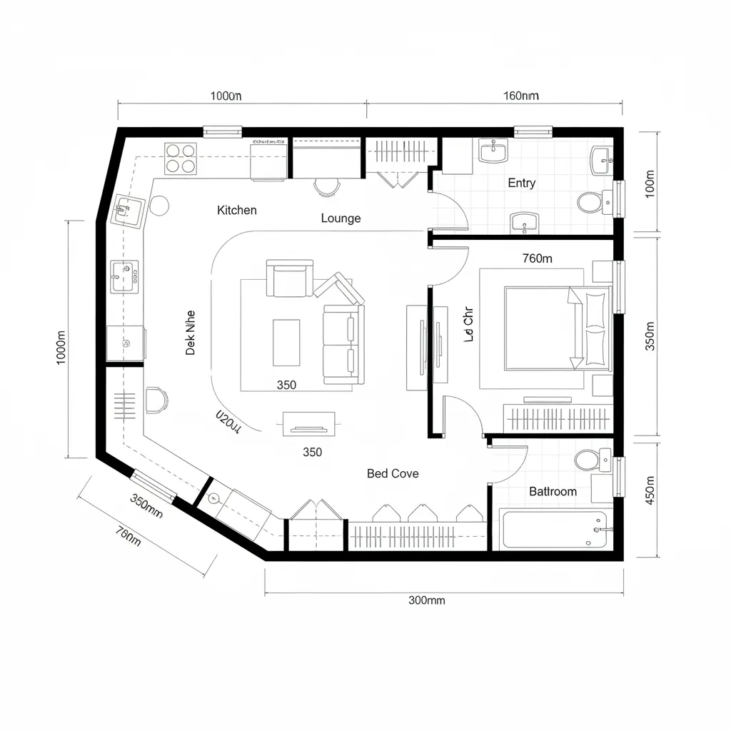
Simple Software for Floor Plan: Reading floor plans as early code for future livingLumen FeldDec 26, 2025Table of ContentsCompact Studio Grid1 Bedroom Apt Floor Plans – Split SpineSmall Studio Layout – Loop CircuitFinal TakeawayTable of ContentsCompact Studio Grid1 Bedroom Apt Floor Plans – Split SpineSmall Studio Layout – Loop CircuitFinal TakeawayFree floor plannerEasily turn your PDF floor plans into 3D with AI-generated home layouts.Convert Now – Free & InstantCoohom official:Floor Plan Drawings BasicsThe future presses in while current homes stall on clutter, glare, and inefficient motion; I design to bridge that gap. Industry surveys show that 61% of homeowners on Houzz seek better layout efficiency, and the signal is clear: simple software for floor plan becomes a quiet operating system for daily life. I treat each unit as an interface, compiling movement, storage, and sightlines into a living program. spatial reasoning toolkitCompact Studio GridDesign Logic: A 24’ x 12’ studio compiles sleep, work, and meal nodes into a grid that future routines can reprogram without friction.Flow: Entry → utility wall → galley kitchen → micro lounge → bed bay; a single-thread sequence that keeps latency low.Sightlines: Long axis sightline from door to window acts like a status bar; side views are muted to reduce visual noise.Storage: Full-height utility wall with 18" deep modules, toe-kick drawers as cache, overhead bins as cold storage for rarely used items.Furniture Fit: 60" sofa, 30" café table, queen Murphy at 64" clear radius; precise API limits prevent UI collisions.Verdict: This layout anticipates flexible work and micro-entertaining, stable for five years as bandwidth shifts between focus and rest.save pinOpen in 3D Planner Processing... 1 Bedroom Apt Floor Plans – Split SpineDesign Logic: A central “spine” corridor partitions public/private while keeping the system readable for hybrid work days.Flow: Entry node → coat cache → kitchen hub → living screen → spine → bedroom → bath; priority routing prevents cross-traffic.Sightlines: Kitchen to living forms a primary UI; bedroom door aligned off-axis to keep privacy pixels dark.Storage: 24" pantry, hallway niches at 12" deep, bed platform drawers; caches near demand points to reduce fetch time.Furniture Fit: 84" sofa, media console under 15" deep, 36" dining round; clearances maintain 36" lanes as command pathways.Verdict: The split spine supports variable schedules and low-energy transitions; future-proof for rising WFH cycles and compact hosting.save pinOpen in 3D Planner Processing... Small Studio Layout – Loop CircuitDesign Logic: A loop circuit wraps kitchen, lounge, and sleep into a continuous path, ideal for bodies that switch modes rapidly.Flow: Door → kitchen peninsula → lounge arc → desk niche → bed cove → door; no dead ends, only reversible logic.Sightlines: Diagonal cross-view from desk to window maintains daylight as the primary interface; task zones sit in secondary layers.Storage: Peninsula base drawers, vertical rail shelves, 10" deep over-door cache; memory close to compute for fast recall.Furniture Fit: 48" peninsula, 30" desk, 72" rug as zone delimiter; scaled modules prevent overflow in peak-use hours.Verdict: As routines compress, this loop maintains momentum and clarity; resilient to gadget creep and weekend micro-gatherings.save pinOpen in 3D Planner Processing... Final TakeawaySimple software for floor plan is less a tool than a language that compiles movement, privacy, and light into a living interface. Whether a small studio layout or 1 bedroom apt floor plans, the future rewards clarity, not size, using sightlines and storage as code. Long-tail needs—like hybrid workstations and modular furniture mapping—stay coherent when the plan behaves like a stable operating system. In my experience, the smartest homes of the future won’t be larger—only more intentional.Convert Now – Free & InstantPlease check with customer service before testing new feature.Free floor plannerEasily turn your PDF floor plans into 3D with AI-generated home layouts.Convert Now – Free & Instant