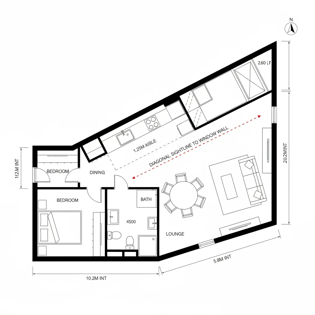
Single-Bedroom Interfaces: How one-bedroom floor plans become operating systems for near-future livingHorizon N. ArchitectDec 26, 2025Table of ContentsSplit-Core One-Bedroom: Quiet Pod + Active SpineLooped Circulation: Bedroom with Dual AccessDiagonal Living: Angled Sightline for DepthFinal TakeawayTable of ContentsSplit-Core One-Bedroom Quiet Pod + Active SpineLooped Circulation Bedroom with Dual AccessDiagonal Living Angled Sightline for DepthFinal TakeawayFree floor plannerEasily turn your PDF floor plans into 3D with AI-generated home layouts.Convert Now – Free & InstantCoohom official:Render Tools BasicsFuture lifestyles are arriving faster than our leases turn over, and the current pain point is how one-bedroom units must flex between work, rest, and social bandwidth without feeling crowded. spatial reasoning toolkit As AIA and NAHB reports note, compact homes are trending toward greater functionality per square foot, and single-bedroom apartments with floor plans are now the testbed. I design them like early code—compiled for tomorrow’s routines but executed today.Split-Core One-Bedroom: Quiet Pod + Active SpineDesign Logic: Bedroom sealed as a quiet pod; living-dining-kitchen align as an active spine, anticipating hybrid work and micro-hosting.Flow: Entry → coat cache → kitchen node → dining dock → lounge bay → balcony; bedroom remains off the main thread to control noise latency.Sightlines: A long axial view from entry through living keeps information hierarchy clear; bedroom sightline is diffused to preserve privacy UI.Storage: Tall pantry + entry bench lockers act like tiered cache; a wall-length console absorbs devices and seasonal overflow.Furniture Fit: 84–90" sofa, 30" deep dining table, compact 60" desk that nests; bed wall allows 24" nightstand buffers—API-safe clearances.Verdict: This spine-pod structure scales with future routines: stable rest, dynamic day; in five years it still reads as efficient code.save pinOpen in 3D Planner Processing... Looped Circulation: Bedroom with Dual AccessDesign Logic: A loop between living, bath, and bedroom prevents dead ends, mirroring app navigation—fast switches between modes.Flow: Entry → living hub → pocket door → bedroom → walk-through closet → bath → hall → back to living; seamless state transitions.Sightlines: Partial reveals: framed view to window wall, concealed bed zone; visual breadcrumbs guide movement without overexposure.Storage: Walk-through closet acts like a ring buffer; shallow linen towers in the hall handle daily churn efficiently.Furniture Fit: Queen bed centered with 30" side aisles; 48" round table fits the loop, chairs slide under like clean APIs; wall-mounted desk keeps lanes open.Verdict: The loop keeps life responsive—errands, calls, workouts—all execute without collisions; future-proof for fluid schedules.save pinOpen in 3D Planner Processing... Diagonal Living: Angled Sightline for DepthDesign Logic: A diagonal axis from kitchen to window magnifies perceived volume, a trick that adapts to sensor-rich, screen-light living.Flow: Entry → angled galley → oblique dining wedge → lounge oriented to the long view → bedroom off the short side for calm.Sightlines: Diagonal cuts create layered UI: near task surfaces, mid social zone, far horizon—bandwidth gradients for the eye.Storage: Corner towers and under-bench drawers operate as distributed caches; angled tall unit near entry handles bulky items.Furniture Fit: 72–78" sofa floats on the diagonal; 36" deep media shelf sits low; bed aligns orthogonally to stabilize sleep protocol.Verdict: Diagonals add experiential depth without adding square feet; five years on, the layout still reads spacious and intentional.save pinOpen in 3D Planner Processing... Final TakeawaySingle-bedroom apartments with floor plans are the lab where future living is debugged, revised, and released. Variants like one-bed layouts, compact unit planning, and loop circulation become reliable long-tail strategies for adaptive homes. The smartest implementations don’t inflate area; they refine interfaces, flows, and caches so everyday updates compile cleanly—in my experience, the most resilient one-bed units are the most intentional.Convert Now – Free & InstantPlease check with customer service before testing new feature.Free floor plannerEasily turn your PDF floor plans into 3D with AI-generated home layouts.Convert Now – Free & Instant