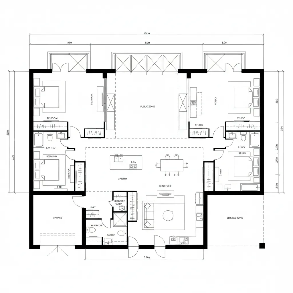
Single-Story U-Shape, Future-Ready: A one-level courtyard plan as a living interface for tomorrow’s ritualsVern North, Residential FuturistDec 04, 2025Table of ContentsCourtyard Spine with Dual WingsQuiet Wing for Sleep, Active Wing for WorkService Core as Thermal BufferFinal TakeawayTable of ContentsCourtyard Spine with Dual WingsQuiet Wing for Sleep, Active Wing for WorkService Core as Thermal BufferFinal TakeawayFree floor plannerEasily turn your PDF floor plans into 3D with AI-generated home layouts.Convert Now – Free & InstantThe future keeps compressing into our morning routines while current homes leak time through awkward circulation and privacy gaps. AIA surveys still show homeowners trading square footage for better daylight and flexible zones, and I can feel that tilt in every brief I read. In that drift, a single story U-shaped house plan behaves like a quiet operating system—rooms arrayed around a microclimate of purpose—calibrated for what’s coming, not just what fits. spatial reasoning toolkit is how I parse it, and how my clients finally see flow as code they can live inside.Courtyard Spine with Dual WingsDesign Logic: The U frames a central courtyard, making nature the core module; future work-from-anywhere and multigenerational living need a stable center with adaptable edges. Flow: Entry → gallery hall → living/kitchen along the base of the U → bedrooms in one wing → studio/guest in the other; latency-free loops minimize cross-traffic. Sightlines: A shallow depth ensures glass-to-glass diagonals across the courtyard; privacy reads as layered UI, foreground domestic, background landscape. Storage: Perimeter built-ins act as cache, with mudroom and pantry buffering the main bus. Furniture Fit: 36–42 inch circulation APIs around island and sofa grid; low profiles keep horizon bandwidth open. Verdict: This plan future-proofs by centralizing climate and decentralizing function—five years out, the courtyard still moderates life like firmware.save pinQuiet Wing for Sleep, Active Wing for WorkDesign Logic: Split the U’s arms by tempo: slow rooms (sleep, soak) on one side, high-frequency rooms (office, hobby, gym) on the other, so acoustic data doesn’t bleed. Flow: Morning run: bed → bath → coffee → courtyard stretch → office; evening reverses to restore state. Sightlines: Door alignments avoid direct bed views; side glances catch trees and sky as status indicators, not distractions. Storage: Wing tips host deep closets; task walls with concealed rails operate like expandable memory. Furniture Fit: Queen/king nests with 30 inch clearance, sit-stand desk zones at 60–72 inches, modular benches along the courtyard edge. Verdict: By separating tempos, the home maintains uptime for focus without throttling rest—resilient under shifting schedules.save pinService Core as Thermal BufferDesign Logic: Kitchen, laundry, and mechanicals stack along the base of the U, a thickened bar that stabilizes energy and shortens utility runs—future energy pricing rewards that geometry. Flow: Groceries land → pantry → prep → courtyard dining; linens loop from bedrooms → laundry → storage with no collision. Sightlines: From cooktop, you read the courtyard and kids’ wing like a dashboard; service doors are masked to keep the UI clean. Storage: Full-height pantry with pull-out matrices; garage drop-zone as first-level cache; attic-lite over the bar for cold storage. Furniture Fit: 9–10 ft island, 48 inch clearances for two-cook choreography; outdoor table aligns with interior grid to keep rhythms consistent. Verdict: Treating the service core as a buffer lowers thermal noise and increases domestic throughput—future electrification slots right in.save pinFinal TakeawayA single story U-shaped house plan is less a shape and more a protocol: courtyard as kernel, wings as modules, flow as readable code. Its semantic variants—courtyard homes, single-level U layouts, one-story U courtyard designs—translate changing lifestyles into a stable interface. Long-tail needs like aging in place and hybrid work find coherence when daily paths compile around light and privacy. In my experience, the smartest homes of the future won’t be larger—only more intentional, and this is the geometry that keeps proving it.Convert Now – Free & InstantPlease check with customer service before testing new feature.Free floor plannerEasily turn your PDF floor plans into 3D with AI-generated home layouts.Convert Now – Free & Instant