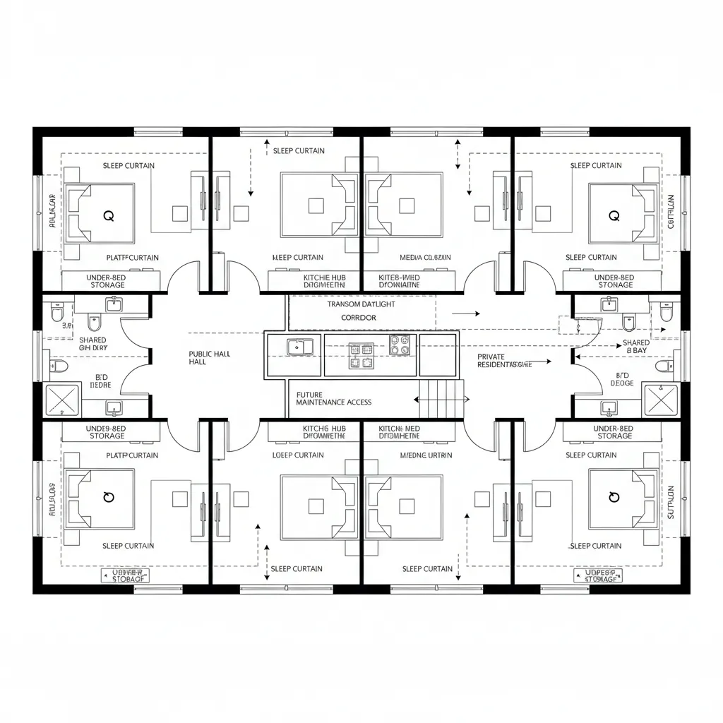
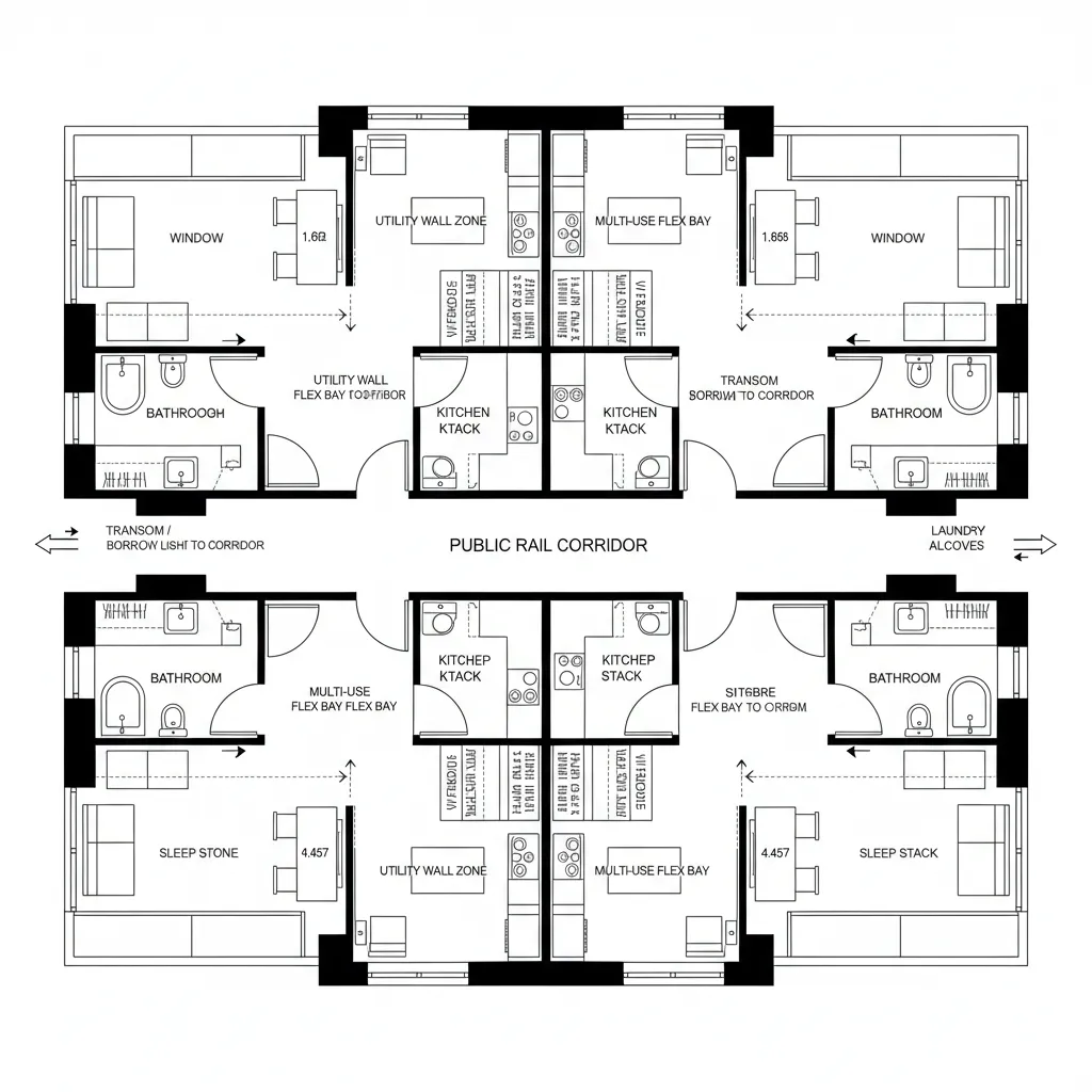
Six-Pack Micro Apartment Floor Logic: A future-forward small apartment plan where six units share one intelligent floor ecosystemMarin K. LatchDec 11, 2025Table of ContentsClustered Courtyard SpineRail + Mirror UnitsEnd-Cap Studios with Central UtilitiesFinal TakeawayTable of ContentsClustered Courtyard SpineRail + Mirror UnitsEnd-Cap Studios with Central UtilitiesFinal TakeawayFree floor plannerEasily turn your PDF floor plans into 3D with AI-generated home layouts.Convert Now – Free & InstantThe future presses in where our daily routines still glitch: privacy versus proximity, storage versus sprawl. AIA reports ongoing demand for compact, efficient units, even as households diversify, and that’s exactly why apartment small plan 6 apartments in a floor keeps surfacing. I treat each unit like a micro-interface for a lifestyle in flux—tight bandwidth, high intention—because tomorrow’s living won’t tolerate wasted loops. spatial reasoning toolkitClustered Courtyard SpineDesign Logic: Six micro units ring a shared light well; future urban density needs daylight as a civic utility and micro-social contact without overload.Flow: Entry → compact galley → living node → sleeping alcove; shared spine hall acts like a protocol—short hops, clear handshakes.Sightlines: From door to window is one unbroken vector; secondary views pivot to the courtyard, stacking calm like a UI breadcrumb.Storage: Perimeter millwork as cache: 24–30 inches deep, zoned for daily/weekly/seasonal; hall lockers give overflow without cluttering RAM.Furniture Fit: Sofas at 68–72 inches, tables at 24 inches depth, a 54-inch bed niche; APIs that respect human scale and future modular swaps.Verdict: Over five years, the light well becomes the building’s soft OS—neighbors sync without friction, and units stay emotionally ventilated.save pinRail + Mirror UnitsDesign Logic: Two mirrored triads along a single egress rail compress infrastructure; the trend is fewer shafts, smarter distribution.Flow: Door → utility wall → multi-use flex bay → sleep stack; the sequence reads like clean code, no dead branches.Sightlines: Mirror symmetry yields predictable UI—primary view to facade, secondary to pocket doors, tertiary to task nodes.Storage: Vertical caches: 9-foot tops with ladder access; shared laundry alcoves act like shared cloud storage, scheduled by app rhythm.Furniture Fit: 30-inch desk ledge, 18-inch sideboards, stackable stools; precision keeps latency low between functions.Verdict: Mirroring trims build cost and cognitive load; by year five, residents prize the legible rhythms and quick reconfigurations.save pinEnd-Cap Studios with Central UtilitiesDesign Logic: Corner units absorb light; middle pair borrow daylight via transoms; centralized wet cores future-proof maintenance cycles.Flow: Threshold → kitchenette hub → lounge strip → sleep curtain; a linear directive that prevents loopbacks.Sightlines: End-caps claim long views; interior units curate layered sight—glass, mesh, curtain—like UI tabs shifting focus.Storage: Under-platform beds, toe-kick drawers, shared bike bay near stair; caches are tiered for speed of access.Furniture Fit: 40-inch round table for multi-use, 24-inch deep media ledge, fold-down queen platform; scalable APIs for changing work patterns.Verdict: The central utility spine lowers repair friction; over time, the end-cap light dividend balances the interior units’ serene focus.save pinFinal TakeawayIn an apartment small plan 6 apartments in a floor, the floor itself becomes an operating system that orchestrates flow, light, and storage without bloating square footage. Variants—micro studios, compact one-bed units, and modular alcoves—translate future living into tight, readable code. My clients keep showing me that the most resilient layouts aren’t louder; they’re more intentional, and in my experience, small spatial decisions quietly rewrite how people live.Convert Now – Free & InstantPlease check with customer service before testing new feature.Free floor plannerEasily turn your PDF floor plans into 3D with AI-generated home layouts.Convert Now – Free & Instant