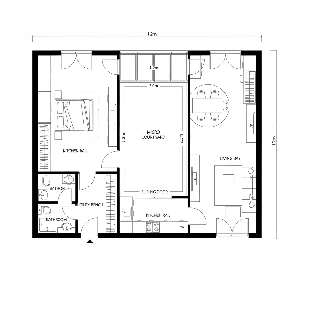
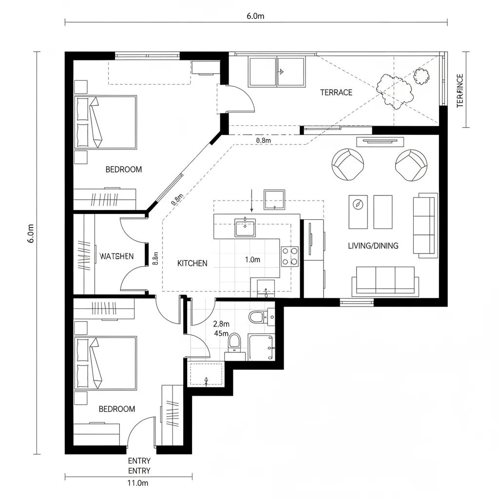
Small Modern House Floor Plans, Seen From Tomorrow: How compact architecture becomes a living interface for near‑future routinesAero-Ledger StudioDec 25, 2025Table of ContentsCourtyard Spine Micro-GridSplit-Bar Loft with Service CoreDiagonal Living AxisFinal TakeawayTable of ContentsCourtyard Spine Micro-GridSplit-Bar Loft with Service CoreDiagonal Living AxisFinal TakeawayFree floor plannerEasily turn your PDF floor plans into 3D with AI-generated home layouts.Convert Now – Free & InstantFuture living keeps nudging us toward compact, high‑efficiency homes while today’s pain points—storage anxiety, cluttered sightlines, and fragmented routines—still slow people down. According to NAHB, the average new home size has trended downward since pre‑pandemic peaks, a signal that small modern house floor plans aren’t a compromise but a recalibration of priorities. The future is closing in, and I can already see how a home becomes a precise tool rather than a broad canvas. spatial reasoning toolkitCourtyard Spine Micro-GridDesign Logic: A narrow volume wrapped around a micro courtyard creates a thermal and social core—future trends favor light harvesting and biophilic nodes in compact shells. Flow: Entry → utility bench → kitchen rail → courtyard pivot → living bay → sleeping pod; a clean instruction sequence that reduces decision latency. Sightlines: Layered from opaque storage walls to glazed courtyard, UI-like tiers let information (light, movement) resolve gradually. Storage: Perimeter tall units + toe-kick drawers act as cache, keeping surfaces zero-lag and routines uncluttered. Furniture Fit: 30–34" circulation, 60" dining clearance, modular sofa depth 36"—APIs that keep micro-living responsive. Verdict: In five years, this spine-courtyard interface will age well, sustaining calm bandwidth for hybrid work and micro-gatherings.save pinOpen in 3D Planner Processing... Split-Bar Loft with Service CoreDesign Logic: Two bars—day and night—flank a compact service core; future multi-modal living needs separable but syncable zones. Flow: Threshold → living/work bar → core (bath, laundry, pantry) → sleep bar; like parallel processes sharing a stable kernel. Sightlines: Long axial views terminate at art or a window, with partial-height partitions acting as UI cards—content without clutter. Storage: Core holds vertical cache: 24" deep pantry, stacked washer closet, overhead linen; capacity without visual noise. Furniture Fit: 9–10' sofa wall, 48" worktable, queen bed centered with 24" each side—precise endpoints to avoid jitter. Verdict: This plan anticipates flexible schedules; its kernel keeps utilities fixed while interfaces adapt to future tasks.save pinOpen in 3D Planner Processing... Diagonal Living AxisDesign Logic: A diagonal through-line from entry to terrace breaks the grid, creating dynamic micro-zones—a move aligned with wellness and energy use patterns. Flow: Entry node → angled kitchen → oblique living → terrace; commands propagate smoothly, encouraging spontaneous rituals. Sightlines: Oblique views reveal layers progressively, like UI breadcrumbs guiding attention toward light and greenery. Storage: Corner wardrobes + under-stair chests act as distributed cache, preventing bandwidth drop during peak routines. Furniture Fit: Swivel lounge chairs (30" footprint), a 72" banquette, and nested tables respect angular tolerances—no collision with circulation. Verdict: The diagonal axis will keep small homes feeling kinetic yet legible, ready for AR overlays and sensor-driven habits.save pinOpen in 3D Planner Processing... Final TakeawaySmall modern house floor plans are not concessions; they are precise operating systems for emerging lifestyles. Variants like compact single-level layouts, micro-courtyard homes, and split-bar schemes show how minimal envelopes gain maximum function. Long-tail needs—space for remote work nooks and energy-efficient circulation—are better met when the plan behaves like software. In my experience, the smartest homes of the future won’t be larger—only more intentional.Convert Now – Free & InstantPlease check with customer service before testing new feature.Free floor plannerEasily turn your PDF floor plans into 3D with AI-generated home layouts.Convert Now – Free & Instant