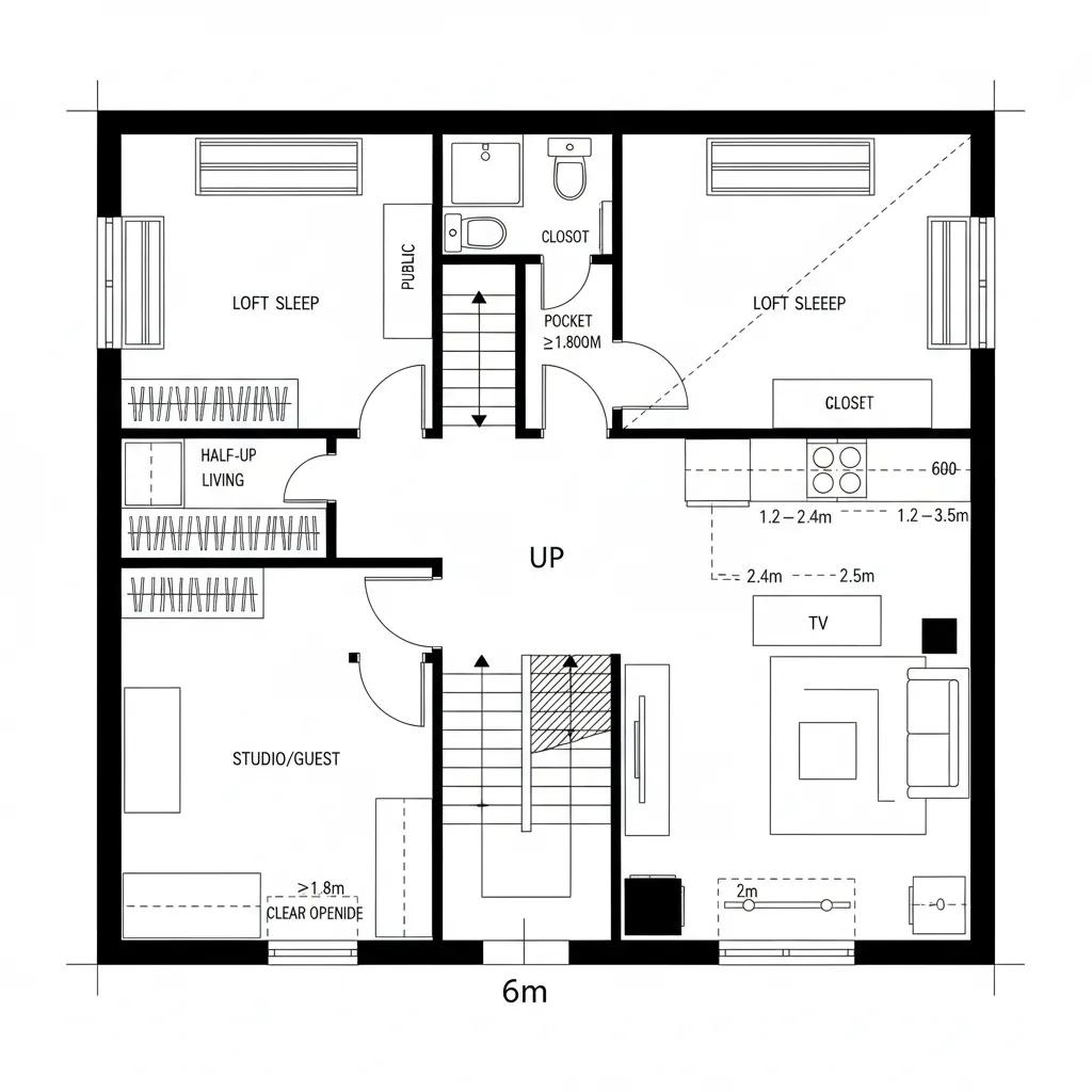
Split-Level 1.5: 6x10 Meter Futures: A compact interface where movement, light, and storage compile a livable codeAvery HeliosDec 22, 2025Table of ContentsSunrise Mezzanine SpineCourtyard Buffer TierDiagonal Program SwitchFinal TakeawayTable of ContentsSunrise Mezzanine SpineCourtyard Buffer TierDiagonal Program SwitchFinal TakeawayFree floor plannerEasily turn your PDF floor plans into 3D with AI-generated home layouts.Convert Now – Free & InstantThe future lifestyle is compressing bandwidth while expanding experience, and today’s homes strain under clutter, glare, and rigid circulation. I read the signals in the data: AIA and NAHB note rising demand for flexible, multi-height living as families seek adaptability. In that lens, house split level 1.5 floor plans become a precise language for compact lots—6x10 meters is a constraint, but I treat it like a clean syntax. The future is pressing in, and I’m already sketching toward it. spatial reasoning toolkitSunrise Mezzanine SpineDesign Logic:Half-level living room anchors the long 6x10 meter chassis; a mezzanine bedroom floats above like a lightweight protocol, answering the trend of multi-use vertical stacking.Flow:Entry → drop zone → half-step to living → linear kitchen → switchback stair → mezzanine sleep → rooflight. The sequence reads like a streamlined function call.Sightlines:Low wall to mezzanine maintains a tiered UI: street to sofa to sky, with glazing framing depth cues along the 10m axis.Storage:Stair-tread drawers and a 600mm deep wall bay act as cache; predictable slots reduce latency in daily routines.Furniture Fit:Sofa 1800mm, dining table 1400x800mm, queen platform 1600mm—each dimension respects the API limits of a 6m width.Verdict:This stack anticipates five years of hybrid living, keeping social below, sleep above, and energy balanced through measured verticality.save pinOpen in 3D Planner Processing... Courtyard Buffer TierDesign Logic:A micro-courtyard at mid-depth resets thermal and social rhythm; split level places kitchen down, lounge up, syncing with biophilic preferences and resilience trends.Flow:Gate → pocket foyer → descend to kitchen → pivot to courtyard → rise to lounge → short run to bedroom; each step feels like modular instructions executing.Sightlines:Cross-shafts of light stack layers: green courtyard foreground, raised lounge midground, skylight background—a readable hierarchy of signals.Storage:Under-lounge void becomes 3.5m³ cache; tall pantry grid in 300mm increments stabilizes supply cycles.Furniture Fit:Compact kitchen line at 2400mm, lounge bench 2200mm, courtyard bench 1800mm; future-proofed for small devices and foldables.Verdict:The buffer tier moderates climate and mood, a gentle design that anticipates denser cities and longer home stays.save pinOpen in 3D Planner Processing... Diagonal Program SwitchDesign Logic:A diagonal split shifts private and public realms like toggling states; this geometry suits narrow lots and the rising need for acoustic zoning.Flow:Entry → diagonal stair → half-up to living → half-down to studio/guest → upper pocket bath → loft sleep; branching logic reduces collisions.Sightlines:Oblique views avoid direct overlap; layered vistas keep privacy while hinting at depth—UI that reveals without oversharing.Storage:Diagonal under-stair wedge, overhead transom lockers, and a 2m rail system act as distributed cache nodes.Furniture Fit:Living module 2000mm, work desk 1200mm, sliding wardrobe 1500mm—precise endpoints maintain throughput in tight margins.Verdict:This plan anticipates remote work’s persistence and multi-modal evenings, letting functions flip without friction.save pinOpen in 3D Planner Processing... Final TakeawayIn compact cities, split-level 1.5 configurations on a 6x10 meter footprint behave like adaptive software, letting rooms switch roles without rewriting the whole home. These floor plans and their narrow-lot variants align with the future’s demand for acoustic zoning, biophilic buffers, and storage as a silent cache. The smartest compact homes won’t be larger—only more intentional—and in my projects, I keep seeing how a single step up or down quietly rewires daily life.Convert Now – Free & InstantPlease check with customer service before testing new feature.Free floor plannerEasily turn your PDF floor plans into 3D with AI-generated home layouts.Convert Now – Free & Instant