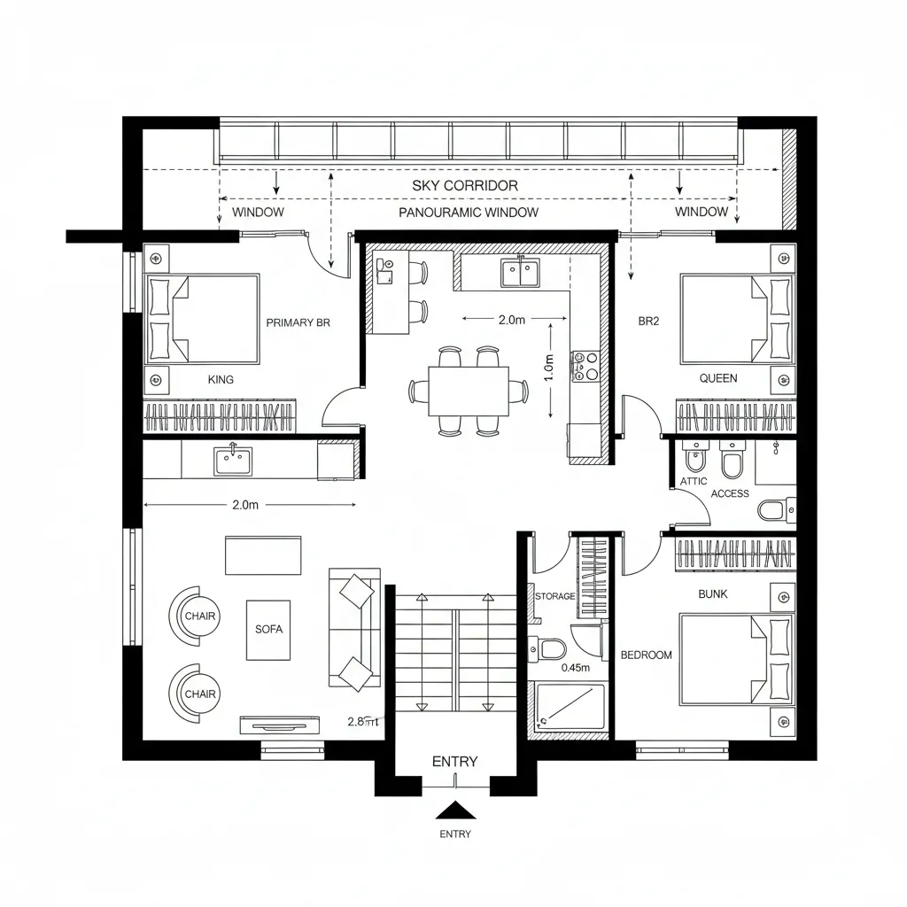
Three-Bedroom Duplex: Interface for Future Living: Designing a duplex where movement, memory, and meaning compile into a liveable codeField Notes of a Quiet ArchitectDec 08, 2025Table of ContentsUpper-Lower Split with Shared CoreSide-by-Side Duplex with Flex SuiteSplit-Level Duplex with Sky CorridorFinal TakeawayTable of ContentsUpper-Lower Split with Shared CoreSide-by-Side Duplex with Flex SuiteSplit-Level Duplex with Sky CorridorFinal TakeawayFree floor plannerEasily turn your PDF floor plans into 3D with AI-generated home layouts.Convert Now – Free & InstantThe future presses in while today’s households juggle multigenerational needs, flexible work, and rising costs; I read the NAHB data showing continued demand for multi-family configurations, and it confirms the direction. In that light, 3 bedroom duplex floor plans become a negotiation between privacy bandwidth and communal nodes—an early script of how families will sync across time. spatial reasoning toolkit sits quietly behind my clients’ choices, translating constraints into clarity. I design like the interface is everything, because it is.Upper-Lower Split with Shared CoreDesign Logic:Two mirrored levels orbit a central stair like a processor, isolating sleep blocks above and social tasks below—ready for hybrid work and aging-in-place.Flow:Entry → foyer node → living hub → kitchen → stair → bedroom stack; a clean execution path that avoids collisions and preserves quiet threads.Sightlines:Long axial view from door to balcony, cross-checked with partial reveals to maintain privacy while surfacing key status tiles (kitchen, daylight, garden).Storage:Under-stair cache, wall-mounted pantry arrays, linen towers; predictable retrieval speeds, minimal search time.Furniture Fit:Sofa depth 38", dining 72" x 36", queen clearances 36"; APIs calibrated for daily rituals and mixed-generation ergonomics.Verdict:The duplex reads like a stable kernel: public downstairs, restorative upstairs—resilient for five years of remote work plus weekend gatherings.save pinSide-by-Side Duplex with Flex SuiteDesign Logic:Each unit aligns as parallel threads, with a convertible front room compiling into office/guest—future-proof for shifting household roles.Flow:Porch → vestibule → flex room → living → kitchen → rear mud node → stair → bedrooms; interrupts minimized, checkpoints clear.Sightlines:Diagonal view linking living to yard, controlled exposure from street to flex room so the UI never leaks private data.Storage:Entry bench cache, garage shelving grids, primary walk-in as high-capacity buffer; clutter throttled before it reaches core loops.Furniture Fit:Modular sectional 100" max, island 8' with 42" clear, bunks in BR3; scale respects kid-chaos and adult focus cycles.Verdict:This plan balances signal and noise—adaptable enough that tomorrow’s needs won’t force a reboot, only a minor version update.Split-Level Duplex with Sky CorridorDesign Logic:A half-level shift breaks monotony, giving mid-landing workspace and sun shelf—useful when daylight and screen time must coexist.Flow:Entry → living half-level → kitchen deck → stair landing workstation → bedroom tier; hierarchical routing keeps energy localized.Sightlines:Tiered views—low horizon in living, lifted panorama along the sky corridor—information disclosed as layers, not dumps.Storage:Landing lockers, deep toe-kick drawers, seasonal attic cache; memory kept near its relevant processes, not scattered.Furniture Fit:Compact lounge chairs 30" footprint, 9' sectional split, king in primary with 24" nightstand margins; precision feels human, not austere.Verdict:The split-level acts like a balanced algorithm—light, work, and rest are distributed so routines self-optimize over the next five years.save pinFinal Takeaway3 bedroom duplex floor plans are more than stacks of rooms; they’re interfaces that route attention, time, and kinship with minimal latency. Duplex planning, multigenerational layouts, and flexible unit design converge into a living OS that can absorb change without losing coherence. In my experience, the smartest homes of the future won’t be larger—only more intentional, and what I keep seeing in my projects is how micro decisions in flow and storage quietly rewrite daily life.Convert Now – Free & InstantPlease check with customer service before testing new feature.Free floor plannerEasily turn your PDF floor plans into 3D with AI-generated home layouts.Convert Now – Free & Instant