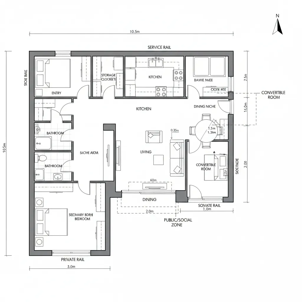
Three-Room Small-Area Futurescape: How a compact house becomes a precise interface for tomorrow’s livingMiles KeplerDec 22, 2025Table of ContentsSplit-Core Spine with Pocket Flex RoomPerimeter Ring with Courtyard LightRail-and-Node Plan with Convertible Third RoomFinal TakeawayTable of ContentsSplit-Core Spine with Pocket Flex RoomPerimeter Ring with Courtyard LightRail-and-Node Plan with Convertible Third RoomFinal TakeawayFree floor plannerEasily turn your PDF floor plans into 3D with AI-generated home layouts.Convert Now – Free & InstantThe future edges closer when square footage tightens and decisions must be exact. Urban downsizing and shifting household structures are colliding with real constraints; AIA residential data shows continued demand for compact, adaptable plans that do more with less. In that light, house small area design photos with floor plan 3 room becomes the early code of tomorrow—meant to compress function without compressing life. spatial reasoning toolkit sits quietly behind my clients’ choices, translating limits into livable bandwidth.Split-Core Spine with Pocket Flex RoomDesign Logic: A central service spine divides private and social zones, letting a third room morph—office by day, guest by night—matching hybrid work trends.Flow: Entry → kitchen along spine → living node → flex room → primary and secondary bedrooms; a clean instruction sequence with minimal backtracking.Sightlines: Diagonal views from entry to living window create layered UI; flex room receives borrowed light via transom for depth without exposure.Storage: Spine hosts pantry, linen, and broom niches—cache clustered for quick reads and reduced latency.Furniture Fit: Sofa 80" aligned to a 10' bay, dining for four in a 6' module, a wall-bed in the flex room—APIs matched to daily routines.Verdict: This layout anticipates fluctuating schedules, holding form while the third room absorbs variance over the next five years.save pinOpen in 3D Planner Processing... Perimeter Ring with Courtyard LightDesign Logic: Rooms form a ring around a light-well living core, pulling daylight like a processor’s heat sink to stabilize mood and energy.Flow: Loop circulation—entry → living → kitchen → bedrooms → back to living—keeps movement continuous, avoiding cul-de-sacs.Sightlines: Clear axial view from kitchen to courtyard glass; secondary cross-views from bedrooms act as UI breadcrumbs to communal space.Storage: Deep window seats and perimeter wardrobes—cache along edges to free center bandwidth for social processing.Furniture Fit: 42" dining round for agile seating, 30" work desk niche, platform bed with 18" under-drawer clearance—precision over bulk.Verdict: The ring system turns small area constraints into a luminous interface that stays legible as family rhythms iterate.save pinOpen in 3D Planner Processing... Rail-and-Node Plan with Convertible Third RoomDesign Logic: Two parallel rails (service + social) feed nodes; the third room docks to either rail, converting from studio to nursery or hobby lab as life updates.Flow: Entry buffers to storage rail → kitchen node → living rail → docking third room → private rail to bedrooms; a compiled path with clear precedence.Sightlines: Sightline hierarchy favors living window first, then kitchen task plane, then quiet room portals—information layers reveal in order.Storage: Rail-integrated tall cabinets and under-bench compartments—cache predictable, reducing cognitive load.Furniture Fit: 24" deep kitchen run, 60" media wall, modular 2-seat sofa + ottoman; third room sized at 9'×10' to accept foldable equipment.Verdict: This pattern future-proofs change, letting the third room recompile without destabilizing the rest of the system.save pinOpen in 3D Planner Processing... Final TakeawayIn a compact house, a 3-room floor plan becomes a disciplined interface where flow, sightlines, and storage function like code. Variants—split-core, ring, and rail—each express different future habits while keeping the small area readable. Long-tail needs like convertible guest-office and courtyard-light cores are not trends; they’re scaffolding for resilient living. In my experience, the smartest homes of the future won’t be larger—only more intentional.Convert Now – Free & InstantPlease check with customer service before testing new feature.Free floor plannerEasily turn your PDF floor plans into 3D with AI-generated home layouts.Convert Now – Free & Instant