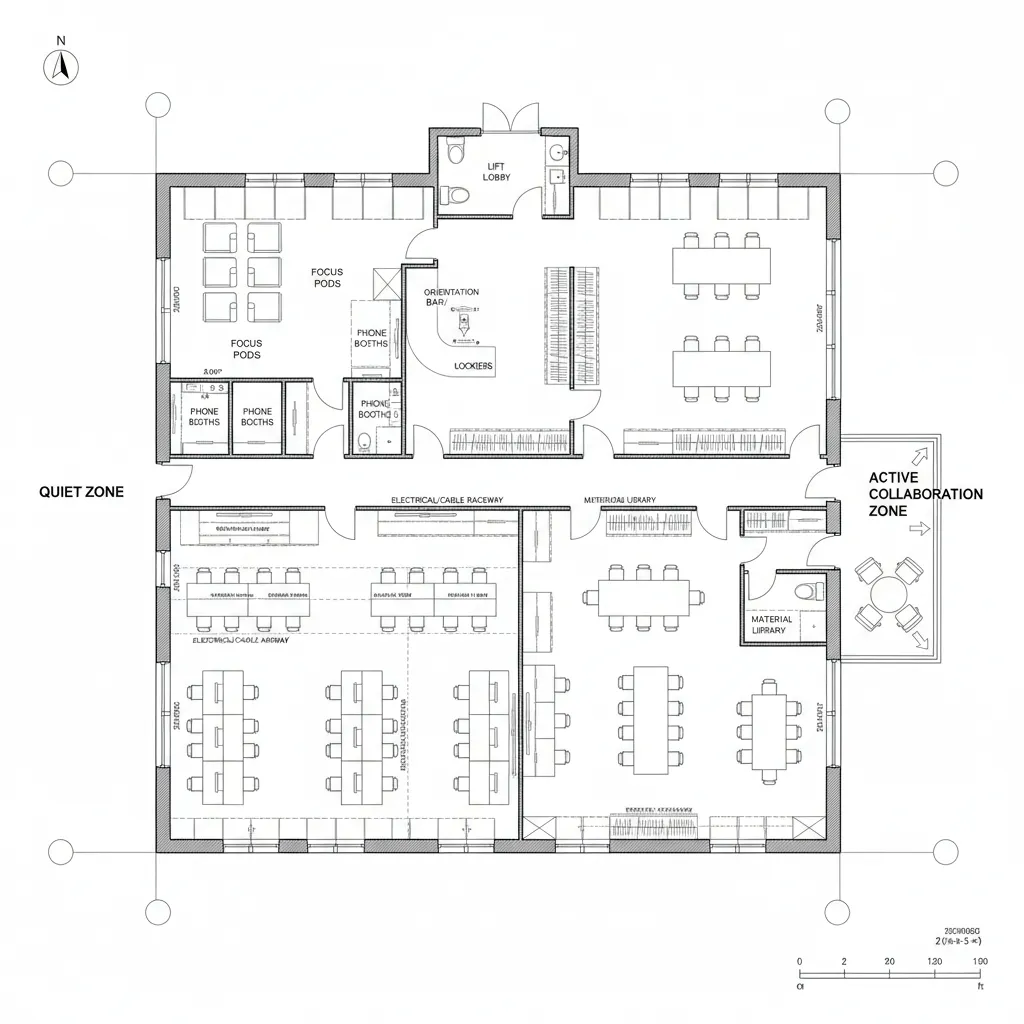
Three-Storey Commercial Plan as a Future Interface: How a 3-storey commercial building floor plan dwg becomes a living OS for work, retail, and cultureAtlas N.Dec 15, 2025Table of ContentsGround Level: Retail Spine with Adaptive ThresholdsSecond Level: Co-Work Plate with Quiet/Active ZoningThird Level: Event Loft + Studio Flex## Final TakeawayTable of ContentsGround Level Retail Spine with Adaptive ThresholdsSecond Level Co-Work Plate with Quiet/Active ZoningThird Level Event Loft + Studio Flex## Final TakeawayFree floor plannerEasily turn your PDF floor plans into 3D with AI-generated home layouts.Convert Now – Free & InstantThe future presses in while today’s tenants juggle hybrid work, micro-retail, and shifting footfall. AIA notes renovation spending has tilted toward flexible mixed-use cores, and I read the 3 storey commercial building floor plan dwg like an early compile of tomorrow’s lifestyle. spatial reasoning toolkit sits quietly behind my decisions—because interfaces matter when people’s routines fragment across floors.Ground Level: Retail Spine with Adaptive ThresholdsDesign Logic:Street-facing bays read as modular packets, enabling pop-up tenancy and seasonal pivots—future retail needs elastic frontage and a clear transaction core.Flow:Entry → decompression band → central browsing loop → point-of-sale → pickup alcove → service stair, like a clean instruction sequence that never blocks exits.Sightlines:Low fixtures deliver a horizon from door to POS; perimeter mirrors extend depth, with display nodes acting like UI badges guiding dwell time.Storage:Under-shelf drawers and back-of-house racks serve as cache; a labeled grid keeps replenishment latency low during peak bandwidth hours.Furniture Fit:Gondolas at 36–42" height, nesting counters, and a 6' clearance lane operate as precise API constraints for strollers, carts, and ADA flows.Verdict:This level anticipates fast cycles—retail as a firmware update where flexible thresholds keep the street talking to the interior for five years ahead.save pinSecond Level: Co-Work Plate with Quiet/Active ZoningDesign Logic:Hybrid work prefers a split brain: focus pods and collaborative bays stitched by a service spine—future labor is modular, not monolithic.Flow:Lift lobby → orientation bar → quiet pods → project tables → material library → terrace, a programmatic route that meters noise like bitrate control.Sightlines:Diagonal views from entry reveal open desks first, deepened by glass partitions that layer privacy akin to UI nesting menus.Storage:Lockers and shared sample drawers function as distributed cache; vertical files index work-in-progress without clogging the main bus.Furniture Fit:54" benching grids, 6' team tables, and 4' acoustic screens keep ergonomics predictable; cable raceways are the hidden API for power habits.Verdict:The plate sustains sprints and deep work, tuning attention as a resource—my clients use it like a version-controlled workspace that ages gracefully.save pinThird Level: Event Loft + Studio FlexDesign Logic:Culture needs altitude—clear spans and hook points for lights and art; the future asks for multi-genre rooms where identity can recompile nightly.Flow:Service core → green room → main hall → bar niche → terrace egress, an elegant loop that decouples performer logistics from audience flow.Sightlines:Catwalk-level sightlines act as an admin layer; front-to-back vistas treat the hall like a UI dashboard with focal anchors and ambient cues.Storage:Fold-away risers, AV racks, and linen carts operate as hot-swappable cache; labeled bays keep turnaround under tight time windows.Furniture Fit:Stackable chairs in 18" modules, mobile stages in 2' increments, and 10' clear height as the API ceiling for rigs and projection cones.Verdict:This loft is a civic interface—events, shoots, workshops; it flexes like a platform, staying relevant as formats mutate over the next five years.save pin## Final TakeawayA 3 storey commercial building floor plan dwg is more than drafting; it’s a living interface that routes people, light, and logistics with intention. With semantic variants—from multi-use building layout to hybrid co-working floors—we future-proof by scripting flows, not just rooms. Long-tail needs like ADA circulation strategies and street-to-terrace sightline planning become the hidden grammar. In my experience, the smartest mixed-use cores won’t be bigger—only more exacting in their sequence.Convert Now – Free & InstantPlease check with customer service before testing new feature.Free floor plannerEasily turn your PDF floor plans into 3D with AI-generated home layouts.Convert Now – Free & Instant