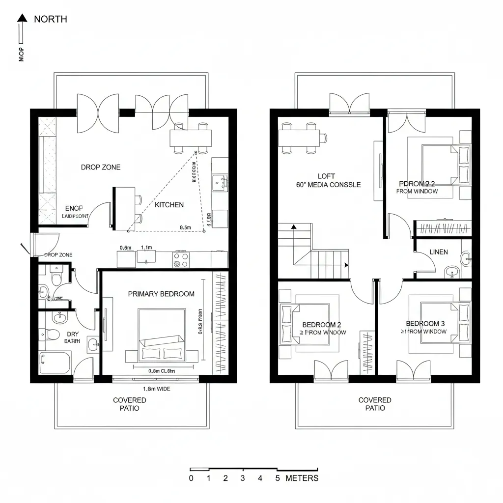
Traditional House Plan, Future Interface: Reframing a traditional house floor plan as tomorrow’s living OSMorrow FieldingDec 03, 2025Table of ContentsPorch-to-Perimeter Loop with Centered HearthFront Formal, Rear Productive: Split GradientPrimary Down, Generational Up: Time-Zone ZoningFinal TakeawayTable of ContentsPorch-to-Perimeter Loop with Centered HearthFront Formal, Rear Productive Split GradientPrimary Down, Generational Up Time-Zone ZoningFinal TakeawayFree floor plannerEasily turn your PDF floor plans into 3D with AI-generated home layouts.Convert Now – Free & InstantFuture habits are pressing against today’s thresholds: remote work, multigenerational rhythms, and wellness rituals all need ports in the plan, while many families still wrestle with chopped-up rooms and storage drag. AIA reports that home offices and flexible spaces continue to rise in client requests, and Zillow notes demand for functional layouts that adapt. I’m mapping a traditional house floor plan as a near-future interface—rooms as modules, circulation as code—because the future is already leaning on the door. spatial reasoning toolkitPorch-to-Perimeter Loop with Centered HearthDesign Logic:Classic symmetry holds, but the looped circulation anticipates hybrid work and hospitality—public zones breathe, private zones buffer like a versioned repository.Flow:Porch → foyer → living/dining ring → kitchen node → mudroom gateway → back hall, with a quiet spur to study—no dead ends, just compiled loops.Sightlines:Axial foyer to hearth anchors hierarchy; diagonal glimpses to garden act like low-latency previews, keeping clutter off the primary feed.Storage:Mudroom cubbies as hot cache, pantry as cold archive, concealed bench storage stabilizing peak-hour spikes.Furniture Fit:Sectional at 36" depth, 9–10' dining run, island at 42" clearances—API limits that keep gatherings efficient, not bloated.Verdict:This keeps the traditional welcome while future-proofing for fluctuating headcounts and seasonal bandwidth.save pinFront Formal, Rear Productive: Split GradientDesign Logic:Street-facing rooms keep ceremony; rear plane becomes the productivity stack—kitchen, utility, flex office—so noise and function negotiate, not collide.Flow:Foyer handshake → parlor/library → hinge at stair → kitchen core → pocket office → deck; guests stay on the public branch, residents fork to work or rest.Sightlines:Soft-edged views from parlor to garden through a framed doorway—UI layers that reveal without broadcasting the backend.Storage:Under-stair pull-outs, a tall utility wall, and a shallow but continuous sideboard act like indexed storage—fast recall, low friction.Furniture Fit:72–84" sofa, twin lounge chairs, 30" deep built-ins; breakfast nook with a 48" round for agile seating patterns.Verdict:The gradient reads traditional up front, but runs a modern workload at the rear, stable under weekday stress tests.save pinPrimary Down, Generational Up: Time-Zone ZoningDesign Logic:Main-level suite respects aging-in-place; upper floor hosts kids or guests—temporal separation reduces interference like well-threaded processes.Flow:Side entry → drop zone → kitchen core → primary suite → covered patio; upstairs splits to bedrooms and a loft node for homework or media.Sightlines:Primary views prioritize garden and sky—restful UI; upstairs windows stagger for privacy without losing daylight throughput.Storage:Primary wall of wardrobes as structured cache, linen towers as mid-tier storage, attic knee spaces for bulk archives.Furniture Fit:Primary accepts a king with 36" clears, loft supports a 60" media console and modular desks; kids’ rooms sized for twin-to-full migrations.Verdict:This is a humane clocking strategy—tradition at the shell, but the schedules inside can evolve for a decade without refactoring.save pinFinal TakeawayA traditional house floor plan can be a forward-looking interface when we treat rooms as modules and circulation as the instruction set. By tuning thresholds, storage bandwidth, and furniture APIs, the old envelope hosts new rituals—from remote work to multigenerational ease. In my experience, the smartest “traditional” layouts aren’t nostalgic; they’re precise about what the next five years will ask, and I believe the right plan quietly future-proofs daily life.Convert Now – Free & InstantPlease check with customer service before testing new feature.Free floor plannerEasily turn your PDF floor plans into 3D with AI-generated home layouts.Convert Now – Free & Instant