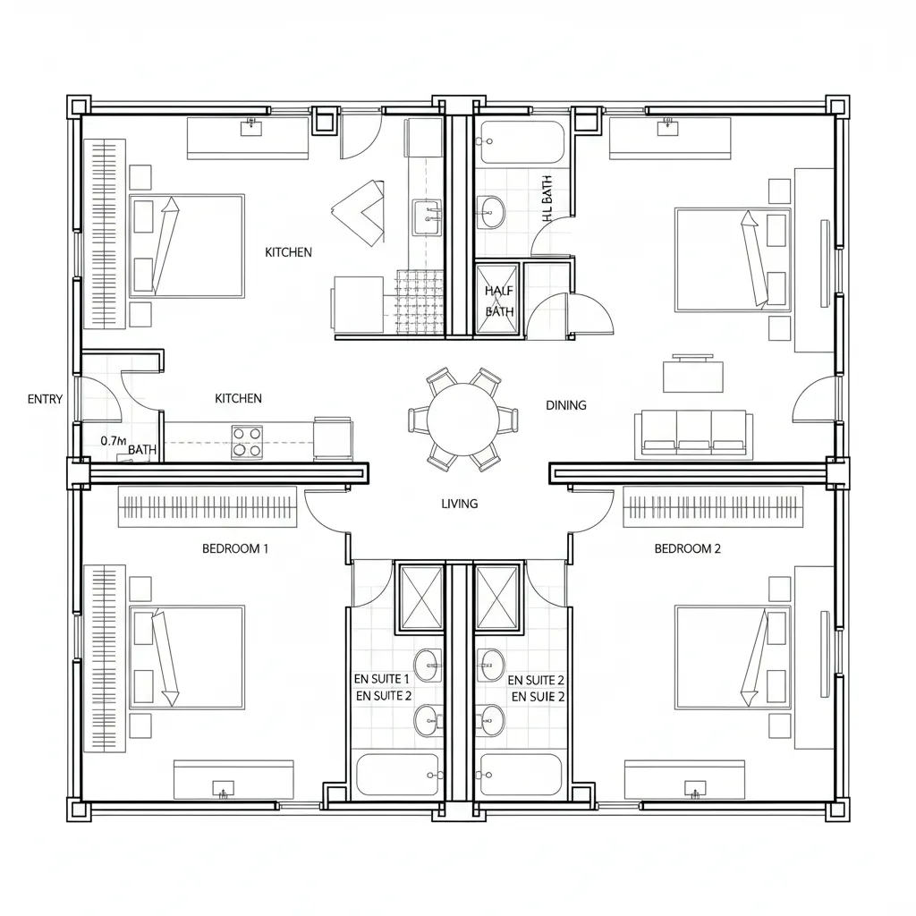
Two-Bedroom, Four-Bath Container Home as a Future Interface: Floor plans that treat circulation as code and rooms as adaptive nodesGreyson ValeDec 13, 2025Table of ContentsSplit-Core Duplex SpineStacked Bath Matrix with Offset SuitesBridge Gallery with Dual En SuitesFinal TakeawayTable of ContentsSplit-Core Duplex SpineStacked Bath Matrix with Offset SuitesBridge Gallery with Dual En SuitesFinal TakeawayFree floor plannerEasily turn your PDF floor plans into 3D with AI-generated home layouts.Convert Now – Free & InstantThe future is pressing closer, and the current pain point is obvious: people want compact footprints that perform like high-end ecosystems without bloating costs or timelines. According to NAHB, average new-home sizes have trended down in recent years while demand for flexible, amenity-rich layouts rises—exactly where 2 bedroom 4 bath shipping container home floor plans become early code for a new lifestyle. I see constraints sharpening intent, and capacity living inside precision. spatial reasoning toolkitSplit-Core Duplex SpineDesign Logic:Two 40' containers mirror across a central service spine, delivering two bedrooms while stacking four compact baths as modular pods—future-proof for multi-generational and rental-flex use.Flow:Entry locks to a linear path: porch → utility vestibule → shared kitchen node → branch to private bedroom corridors; bath nodes sit like subprocess calls near each bedroom and the living core.Sightlines:Long axis windows stage a primary vista; cross-views are throttled so public layers read first, private layers fade like dimmed UI panels.Storage:Wall-depth niches and bed-lift cavities act as caches; spine holds linen + gear, keeping bandwidth free for daily movement.Furniture Fit:API is tight: 30" circulation clearances, 84" sofa within 96" bay, queen beds centered with 24" nightstand buffers; tables fold, consoles float.Verdict:This spine-layout compiles clarity: neighbors, guests, and future short-term stays can plug in without rewriting the program.save pinStacked Bath Matrix with Offset SuitesDesign Logic:Baths stack vertically at the container midline, reducing plumbing runs; two offset bedroom suites anchor opposite ends, leaving the center as a high-function social processor.Flow:Sequence runs threshold → galley kitchen → living node → diverge to suites; half-baths near entry and living act as quick-access interrupts, full baths attach to bedrooms for privacy.Sightlines:Glass at ends drives horizon views; interior partitions stagger like layered menus, revealing content progressively—never all at once.Storage:Ceiling-high pantry grids, under-sofa drawers, and corridor lockers keep the runtime clean; outdoor deck boxes cache seasonal gear without polluting interior RAM.Furniture Fit:Built-ins respect container ribs: 24" deep wardrobe modules, 18" bench niches, wall-hung vanities to preserve floor loop continuity.Verdict:The matrix centralizes wet cores and decentralizes life, allowing the home to scale from quiet couple living to event hosting without lag.save pinBridge Gallery with Dual En SuitesDesign Logic:A glassy bridge—really a daylight gallery—links two container volumes; each volume holds a bedroom with two baths allocated as one en suite and one flexible bath for guests or work-clean-up.Flow:Approach enters the gallery (public bandwidth), then routes to left/right volumes; secondary bath near the gallery acts like a shared node, reducing friction for visitors and studio tasks.Sightlines:Gallery runs a clean visual bus: sky above, garden below; rooms branch off with framed apertures that tier information like UI breadcrumbs.Storage:Bridge ceiling truss integrates slim overhead lockers; within volumes, toe-kick drawers and sliding wall panels hoard tools and textiles like disciplined caches.Furniture Fit:Low-profile sofas, 36" dining round centered in the gallery, desks clipped to structural rails, and shower footprints at 32"x60" keep the code lean and human.Verdict:The bridge turns the home into a wearable interface—daylight as operating system, suites as apps, with baths placed for agility and future work-living hybridity.save pinFinal TakeawayThese shipping container floor plans treat two bedrooms and four baths as a precise operating system rather than excess. The 2-bedroom configuration with multiple baths becomes a flexible protocol for guests, work, and aging-in-place, avoiding the bloat of oversized footprints. In my experience, the smartest homes of the future won’t be larger—only more intentional, and what I keep seeing in my projects is how tight tolerances unlock generous living.Convert Now – Free & InstantPlease check with customer service before testing new feature.Free floor plannerEasily turn your PDF floor plans into 3D with AI-generated home layouts.Convert Now – Free & Instant