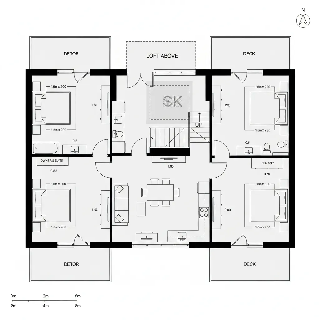
Two-Bedroom Home + Loft as Living Interface: How a 2-bedroom home with a loft compiles tomorrow’s routines into a clean, intentional planAtlas R. FieldDec 10, 2025Table of ContentsDiagonal Core with Loft MezzanineSplit-Bedroom Plan with Skylit LoftLinear Gallery with Convertible Loft StudioFinal TakeawayTable of ContentsDiagonal Core with Loft MezzanineSplit-Bedroom Plan with Skylit LoftLinear Gallery with Convertible Loft StudioFinal TakeawayFree floor plannerEasily turn your PDF floor plans into 3D with AI-generated home layouts.Convert Now – Free & InstantThe future lifestyle asks for elastic zones that flex between work, recharge, and social bandwidth; current homes still choke on rigid corridors and storage bottlenecks. I’ve watched clients try to run modern routines on outdated layouts, and the friction shows. According to NAHB, lofted and flexible bonus areas are among the most requested features post-2020, aligning neatly with a 2 bedroom home with loft floor plans. The future is pressing in, and I can already see the interface evolving—spatial reasoning toolkit is becoming everyday language.Diagonal Core with Loft MezzanineDesign Logic: A diagonal circulation spine links living, kitchen, and bedrooms, while a mezzanine loft hovers as a future-proof node for work or quiet play.Flow: Enter → coat cache → living hub → diagonal kitchen line → stair as command → loft perch → bedrooms sealed for rest.Sightlines: Long diagonal views keep the living area legible; the loft overlooks without dominating—UI layers reveal public first, private second.Storage: Under-stair drawers, a pantry wall, and bedroom built-ins act like cache tiers—fast access up front, deep archive behind.Furniture Fit: A 72–84 inch sofa, 36 inch dining clearance, low-profile loft desk—API limits tuned to movement speed and ergonomic latency.Verdict: Over five years, the diagonal core reduces decision fatigue, while the loft absorbs role shifts—parent, freelancer, host—without reprogramming the shell.save pinSplit-Bedroom Plan with Skylit LoftDesign Logic: Bedrooms anchor opposite ends, protecting sleep bandwidth; a central living stack funnels light upward to a skylit loft node.Flow: Threshold → open living → vertical light column → loft stair → left owner suite → right secondary suite → exterior deck.Sightlines: A vertical light cue acts like a status bar; sightlines climb from entry to loft, while doors break the feed for privacy screens.Storage: Dual primary closets, a bench wall with hidden bins, and a loft book rail—structured cache for daily, weekly, seasonal cycles.Furniture Fit: Queen beds with 24–30 inch sides, modular dining for 4–6, loft lounge at 28–30 inch desk height—precision favors adaptable rituals.Verdict: The split logic softens conflict and schedules; the loft becomes a quiet cloud layer for focus, aging gracefully as hobbies or micro-gym.save pinLinear Gallery with Convertible Loft StudioDesign Logic: A linear plan frames rooms like a gallery, and the loft converts from studio to guest layer, compressing hospitality into a smart module.Flow: Entry mud rail → gallery hall → living viewport → kitchen workline → stair gate → loft studio → bedrooms at calm terminus.Sightlines: The hall offers controlled reveals; living is the primary viewport, loft is secondary overlay—hierarchy stays readable at a glance.Storage: Gallery wall niches, deep kitchen drawers, loft trunk bench—tiered caches keep surfaces breathable and routines quick.Furniture Fit: 30 inch circulation lanes, 10–12 inch shelving depths, sleeper-sofa in loft—API constraints that let multi-use scripts run smoothly.Verdict: Over time, the gallery teaches order; the loft’s convertible logic handles guests, projects, and quiet mornings without disturbing the base OS.save pinFinal TakeawayTwo-bedroom homes with a loft are not just layouts; they’re interfaces that orchestrate light, privacy, and workflow without swelling square footage. In this 2 bedroom home with loft floor plans, the loft functions as a cloud layer for changing routines, while the base plan remains stable. The smartest future-ready dwellings will treat circulation, storage, and furniture as code—compact yet deeply intentional. In my experience, small spatial decisions recompile daily life long before people notice the version update.Convert Now – Free & InstantPlease check with customer service before testing new feature.Free floor plannerEasily turn your PDF floor plans into 3D with AI-generated home layouts.Convert Now – Free & Instant