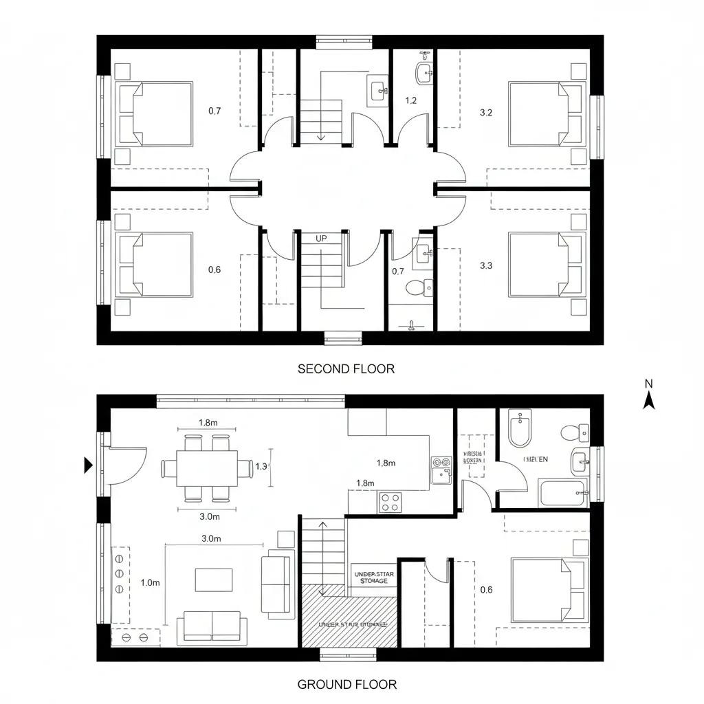
Two-Floor Living on a 5-Cent Plot: A future-forward interface for compact American-style residential planningNorth Atlas StudioDec 11, 2025Table of ContentsSplit-Core Stair with Layered Public/PrivateNarrow-Lot Spine with Courtyard PocketOver-Under Flex with Roof Utility DeckFinal TakeawayTable of ContentsSplit-Core Stair with Layered Public/PrivateNarrow-Lot Spine with Courtyard PocketOver-Under Flex with Roof Utility DeckFinal TakeawayFree floor plannerEasily turn your PDF floor plans into 3D with AI-generated home layouts.Convert Now – Free & InstantFuture living presses against our current constraints: tight plots, rising costs, and the need for smarter circulation. As I watch families stretch bandwidth across small lots, the interface must evolve—cleaner commands, fewer frictions, deeper storage logic. spatial reasoning toolkit In AIA and NAHB surveys, buyers keep prioritizing flexible layouts over square footage, a signal that a 2 floor house plan in 5 cent isn’t compromise—it’s a compiled language for next-decade living.Split-Core Stair with Layered Public/PrivateDesign Logic:Place the stair central, splitting the plan: social programs down, restorative programs up—future bandwidth routed by intent.Flow:Entry → compressed drop zone → living-dining as main bus → stair node → bedrooms above; routines execute like scheduled tasks.Sightlines:Diagonal views from entry to rear yard, but privacy buffers at bedroom doors; hierarchy reads like UI layers.Storage:Under-stair cache, perimeter pantry, vertical linen tower; small plot needs tiered memory with fast access.Furniture Fit:Sofa depth 36–38", dining table 72×36", queen bed clearances 30"—API limits ensure latency-free movement.Verdict:This structure anticipates hybrid work, multi-generational visits, and five-year pivots without adding square footage.save pinNarrow-Lot Spine with Courtyard PocketDesign Logic:A linear spine runs front to back; a micro-courtyard becomes the thermal and daylight kernel in a compact footprint.Flow:Front porch → foyer node → spine hall → pocket courtyard → kitchen hub → stair → sleeping stack; instructions sequence cleanly.Sightlines:Long axial view broken by green pocket, reducing visual load while signaling zones like icon gradients.Storage:Built-in wall bays, bench caches, overhead kitchen rails; storage as distributed CDN, not a single server.Furniture Fit:Sectional in L 90×64", fold-down desk 48", kid bunk 75"; precision keeps collisions at zero.Verdict:The courtyard node stabilizes climate, mood, and schedule—future-proofing small-lot life with calm frequency.save pinOver-Under Flex with Roof Utility DeckDesign Logic:Ground floor flex room acts as adaptive buffer; roof deck becomes utility/solar zone—energy and leisure co-located.Flow:Mud and gear entry → open kitchen-living → flex room pivot → stair → bedrooms → roof service deck; tasks batch by level.Sightlines:Low eye-level continuity downstairs, controlled reveal upstairs; roof horizon as final UI layer.Storage:Garage-wall racks, floor-to-ceiling wardrobes, concealed roof lockers; cache tiers match daily/weekly/seasonal cycles.Furniture Fit:Island 8' with 42" clear, king bed only if room width ≥12', balcony chairs 22" footprint; limits keep the interface efficient.Verdict:Energy infrastructure and play share one plane, fitting the next five years of resilient, plugged-in domestic routines.save pinFinal TakeawayA 2 floor house plan in 5 cent is not a squeeze; it’s a disciplined operating system for family bandwidth, light, and privacy. Variants like compact duplex layouts and narrow-lot homes show how small plots host larger futures when circulation and storage act like code. In my experience, the smartest homes of the future won’t be larger—only more intentional, and what I keep seeing in my projects is how precise fits rewrite daily life.Convert Now – Free & InstantPlease check with customer service before testing new feature.Free floor plannerEasily turn your PDF floor plans into 3D with AI-generated home layouts.Convert Now – Free & Instant