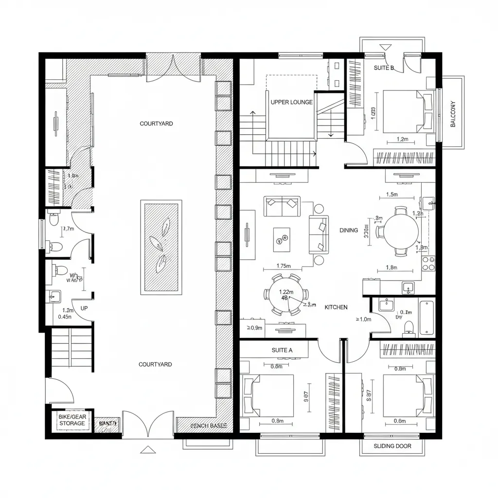
Two-Level Living, Tuned for Tomorrow: A designer’s take on best 2 bed house plans with 2 floors as interfaces for future lifeAva Meridian, Residential FuturistDec 11, 2025Table of ContentsSplit-Level Social Up, Quiet DownCourtyard Spine with Dual SuitesStair-as-Channel, Lofted CommonsFinal TakeawayTable of ContentsSplit-Level Social Up, Quiet DownCourtyard Spine with Dual SuitesStair-as-Channel, Lofted CommonsFinal TakeawayFree floor plannerEasily turn your PDF floor plans into 3D with AI-generated home layouts.Convert Now – Free & InstantThe future presses closer each quarter, and the current pain points—fragmented routines, storage entropy, and exhausted sightlines—ask for clearer interfaces. Industry signals echo it: AIA surveys show owners prioritizing flexible programs over square footage. In that vein, best 2 bed house plans with 2 floors become early code for adaptive living—stacked bandwidth with predictable flow, less noise, more intention. spatial reasoning toolkitSplit-Level Social Up, Quiet DownDesign Logic:Social on top, sleep below. Elevating the public realm keeps light and thermal gains where they serve gathering; bedrooms anchor in calm, acoustically buffered zones—future-proof when work and rest blend.Flow:Entry→stair node→open kitchen-living→sun deck; nighttime path runs inverse, minimizing cross-traffic. Think of steps as command prompts, guiding routines with low friction.Sightlines:From kitchen island, a primary axis reads living→deck→sky; secondary axis glances to stair throat, never into bedrooms. UI layers: horizon, activity, retreat.Storage:Landing lockers, under-stair cache, deep pantry as cold/warm tiers; linen towers flanking baths. Capacity mapped to frequency of use—hot data upstairs, archives below.Furniture Fit:90-inch sofa, 36-inch circulation halos, a 30x72 dining slab; bedrooms fit queen beds with 30-inch clearance, desks nested against window bays like plug-ins.Verdict:This stack decouples noise from rest, a gentle algorithm preparing for hybrid work, late dinners, and quiet mornings over the next five years.save pinCourtyard Spine with Dual SuitesDesign Logic:A micro-courtyard becomes the bandwidth spine: two suites bookend privacy while shared zones read as an always-on hub. Outdoor voids act like cooling nodes and mental buffers.Flow:Gate→courtyard→living core→suite A; stair→upper lounge→suite B. Movement respects thresholds, compiling sequences without collision.Sightlines:Short, layered views: greenery foreground, glazing mid, sky background. Bedrooms borrow light through offset apertures, never direct eye contact—information hierarchy intact.Storage:Wall-depth cabinetry as continuous cache, bench bases, and vertical closets; courtyard edge hides bike/gear niches. The system breathes with purge-and-keep logic.Furniture Fit:Modular lounge pieces at 30-inch grid; platform beds with integrated drawers; a 48-inch round table keeps paths fluid around the spine.Verdict:A resilient plan for multi-generational living, where each suite feels autonomous yet interlinked—future households flex without breaking flow.save pinStair-as-Channel, Lofted CommonsDesign Logic:The stair is the data channel: linear, daylit, and honest. Above it, a lofted commons becomes a processing cloud for meals, meetings, and play; below, quiet cores cache rest.Flow:Front porch→mud node→stair channel→loft commons→terrace; service loops skim the edges, keeping high-frequency paths clear.Sightlines:Vertical sight reads: floor→stair lightwell→loft rail→tree canopies. Lateral views stagger behind baffles, so attention finds the right layer at the right time.Storage:Tread drawers, perimeter mills, and attic knee walls as cold storage. Kitchen uses deep drawers over uppers—fast retrieval, no visual noise.Furniture Fit:Island 36x84 with 42-inch lanes; sectional scaled to 9 feet; bedroom closets at 24 inches clear; task tables fit 24x48, docked near outlets like peripheral devices.Verdict:Lofted commons amplify social bandwidth while bedrooms stay latency-free—a balanced, future-facing compilation for evolving routines.save pinFinal TakeawayBest 2 bed house plans with 2 floors can operate like layered software: upstairs for high-bandwidth social tasks, downstairs for low-latency rest. Two-level homes, dual suites, and stair-as-channel strategies are not trends—they’re protocols for adaptive households, remote work, and calmer evenings. In my experience, the smartest homes of the future won’t be larger—only more intentional, and I believe small spatial decisions quietly rewrite daily life.Convert Now – Free & InstantPlease check with customer service before testing new feature.Free floor plannerEasily turn your PDF floor plans into 3D with AI-generated home layouts.Convert Now – Free & Instant