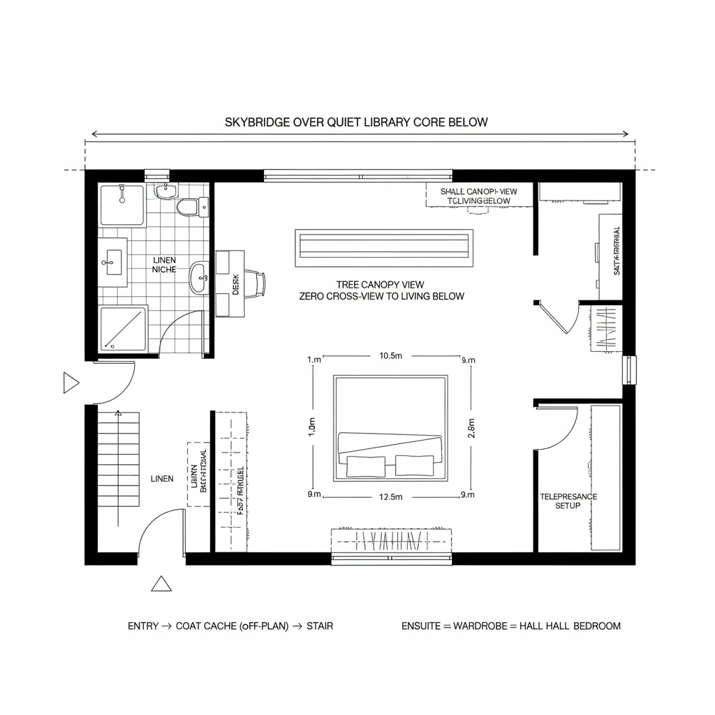
Two-Level Master Suite Blueprint: A futurist designer’s reading of a 2-floor plan with a master bedroom as lifestyle interfaceMarin ArcherDec 11, 2025Table of ContentsSkybridge Primary Suite Over Quiet CoreSplit-Level Social Below, Master as Quiet NodeMaster on Main, Secondary Up for Flex GenerationsFinal TakeawayTable of ContentsSkybridge Primary Suite Over Quiet CoreSplit-Level Social Below, Master as Quiet NodeMaster on Main, Secondary Up for Flex GenerationsFinal TakeawayFree floor plannerEasily turn your PDF floor plans into 3D with AI-generated home layouts.Convert Now – Free & InstantThe future is pressing in while today’s homes still juggle noise, privacy, and work-life overlap; I design like I’m reading a proto-code of how families will live next. Industry tells the same story—AIA’s Home Design Trends Survey keeps flagging main suites and flexible zones as priority. In that light, a 2 floor plan with master bedroom becomes a negotiation between intimacy and distributed function, and I shape it accordingly. spatial reasoning toolkitSkybridge Primary Suite Over Quiet CoreDesign Logic:Stack the master above the calmest program: reading loft over library, isolating sleep from social bandwidth while future hybrid work lives below.Flow:Entry → coat cache → stair spine → landing buffer → suite; ensuite loops to wardrobe, then slips back to hall like a closed loop.Sightlines:Guarded cascade: filtered views to tree canopy, zero cross-view into living; glazing frames information, not exposure.Storage:Perimeter wardrobe as long cache, shallow depth for fast retrieval; linen niche at landing to offload daily packets.Furniture Fit:King platform at 76×80 with 36" clear both sides; desk niche 60" fits future telepresence without spill.Verdict:This layout reads as a private server above a quiet rack—stable, updateable, and resilient for five years of evolving routines.save pinSplit-Level Social Below, Master as Quiet NodeDesign Logic:Half-level drop separates kitchen hub from lounge, while master sits on the upper node, insulated from acoustic traffic and late dinners.Flow:Garage → mud cache → kitchen → short stair → lounge → long stair → master; sequences gate noise with elevation changes.Sightlines:Diagonal sight to backyard from kitchen, but stair turns break line-of-sight to suite; visual hierarchy equals UI layers.Storage:Under-stair pull-out for seasonal load; master gets dual-run closets: one everyday, one deep archive.Furniture Fit:Wall-to-wall headboard at 110" with integrated sconces; chaise window seat 30" deep becomes recovery zone.Verdict:Like segmented code, each level executes a task; the master remains the silent thread, controlling latency in the whole home.save pinMaster on Main, Secondary Up for Flex GenerationsDesign Logic:Main-level master aligns with aging-in-place and NAHB multigenerational trends; upstairs shifts to studio/guest modules adaptable by schedule.Flow:Entry → gallery hall → master → patio; upstairs: landing → flex rooms; circulation lets care routines run without collisions.Sightlines:Long axial view from foyer to garden, but suite door offsets to keep privacy like a hidden panel in the interface.Storage:Main suite gains split-depth wardrobe and bench cache; upstairs gets shared bulk storage like cloud tier two.Furniture Fit:Queen or king with 42" side clearance for mobility; integrated 24" night tables float to keep floor logic clean.Verdict:This is future-proofing as design: a stable kernel on the main level, agile modules above ready to recompile for new life phases.save pinFinal TakeawayA two-story layout with a defined master suite is less a floor plan than a living OS, where privacy, flow, and storage act like system calls. In this 2 floor plan with master bedroom, the smartest moves balance acoustic shielding with adaptive circulation. Long-term, multigenerational variants and hybrid work suites will keep pushing these interfaces. In my experience, the homes that age well treat each level as coordinated processes in one elegant runtime.Convert Now – Free & InstantPlease check with customer service before testing new feature.Free floor plannerEasily turn your PDF floor plans into 3D with AI-generated home layouts.Convert Now – Free & Instant