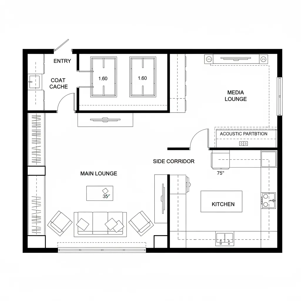
Two Living Rooms, One Future Interface: Dual lounges as parallel operating systems for domestic lifeA. MeridianDec 11, 2025Table of ContentsSplit-Core Parallel LoungeLooped Gallery + RetreatAxis Shift Work/Lounge PairFinal TakeawayTable of ContentsSplit-Core Parallel LoungeLooped Gallery + RetreatAxis Shift Work/Lounge PairFinal TakeawayFree floor plannerEasily turn your PDF floor plans into 3D with AI-generated home layouts.Convert Now – Free & InstantThe future of living is multi-threaded, but today’s households still collide in single-purpose rooms. AIA reports that flexible gathering spaces have trended upward post-2020, and my clients keep asking for 2 living room floor plans as if buffering family bandwidth. The future is close, and I can already see it through this spatial reasoning toolkit.Two lounges act like parallel processors: one for focus, one for social latency. Zillow’s data on remote work reshaping layouts tells me this split is not luxury—it’s the new interface for sanity.Split-Core Parallel LoungeDesign Logic:Primary lounge fronts daylight; secondary sits semi-enclosed for media and quiet tasks—future routines need distinct nodes.Flow:Entry → coat cache → main lounge → side corridor → media lounge → kitchen; a clear instruction sequence that prevents traffic collisions.Sightlines:From door to window a long axis; peripheral views hint at the media room without noise dominance.Storage:Built-in wall system in main room; concealed credenza and AV rack in the secondary—cache stratified by frequency of use.Furniture Fit:Sofa at 90–100" width; lounge chairs as lightweight endpoints; media wall scaled to 75" display without overclocking the room.Verdict:This plan anticipates hybrid days—conversation in the bright core, focused streaming or calls in the shadow node, stable for five-year habits.save pinLooped Gallery + RetreatDesign Logic:A circulation loop stitches two lounges; one gallery-like for hosting, one retreat-like for decompression—future social elasticity requires both modes.Flow:Entry → gallery lounge → art wall → pocket door → retreat lounge → pantry; a loop that allows simultaneous use without deadlocks.Sightlines:Gallery frames long vistas and art; retreat uses layered screens to soften visual noise, UI tiers that calm cognition.Storage:Thin gallery shelving for display; deep retreat ottoman and corner towers for blankets, devices, board games—warm cache vs. cold cache.Furniture Fit:Modular sectional in gallery; compact loveseat + reading chair in retreat, pieces as APIs with predictable clearances.Verdict:The loop keeps energy circulating; hosting and downtime run in parallel, a resilient topology for families and micro-gatherings.save pinAxis Shift Work/Lounge PairDesign Logic:Two living rooms offset on a diagonal: front for communal, rear for work-lounge; geometry separates signal from noise for future hybrid work.Flow:Foyer → communal lounge → pivot on diagonal → work-lounge → terrace; a branching path like a forked process with low contention.Sightlines:Diagonal axis creates layered views; communal room holds horizon lines, work-lounge maintains near-field focus.Storage:Communal open shelves and window bench; work-lounge tall cabinets with cable management—cache differentiated by task latency.Furniture Fit:8–9 ft conversation circle in front; sit-stand desk + lounge chair + narrow sofa in back, precise clearances to avoid flow breaks.Verdict:This axis anticipates meetings, homework, and quiet evenings; the plan stays coherent as schedules fragment over the next five years.save pinFinal TakeawayTwo living rooms aren’t excess—they are dual interfaces that stabilize modern bandwidth for 2 living room floor plans. Variants like dual lounge layouts and parallel sitting rooms handle remote work and communal recharge without compromise. In my experience, the smartest homes of the future won’t be larger—only more intentional, and I believe these paired rooms are the new default.Convert Now – Free & InstantPlease check with customer service before testing new feature.Free floor plannerEasily turn your PDF floor plans into 3D with AI-generated home layouts.Convert Now – Free & Instant