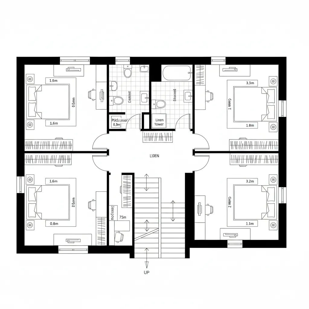
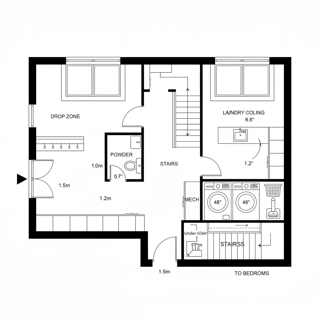
Two-Story Layout, Side Stair as Algorithm: A future-forward residential interface where the side stair compiles life into clear layersArden ValeDec 04, 2025Table of ContentsGarden-Facing Great Room, Side Stair BufferSplit Public/Private Landing, Mid-Stair LibraryService Spine with Side Entry, Future-Proof UtilitiesFinal TakeawayTable of ContentsGarden-Facing Great Room, Side Stair BufferSplit Public/Private Landing, Mid-Stair LibraryService Spine with Side Entry, Future-Proof UtilitiesFinal TakeawayFree floor plannerEasily turn your PDF floor plans into 3D with AI-generated home layouts.Convert Now – Free & InstantThe future keeps arriving in quieter increments, and the homes that accept it early resolve today’s friction—privacy, storage strain, and choppy circulation—before it hurts. According to NAHB, buyers consistently rank overall layout efficiency above raw square footage, a hint that planning outruns size. In that light, a two story layout with side staircase reads like a deliberate operating system for tomorrow’s routines. spatial reasoning toolkitGarden-Facing Great Room, Side Stair BufferDesign Logic:Side stair acts as a spine, isolating entry noise from a garden-facing living core—privacy first, then light. The future wants layered thresholds: social bandwidth in front, restorative bandwidth in back.Flow:Entry → mud vestibule → side stair node → kitchen island → dining → lounge → terrace; a clean, non-crossing packet route.Sightlines:Diagonal from door to greenery, with the stair wall filtering clutter; UI hierarchy: horizon first, hardware second.Storage:Under-stair pull-outs + pantry wall as cache; shallow bench niches stabilize daily “temp files.”Furniture Fit:9–10 ft dining run, 36 in island clearance, modular sofa depth 38 in; API tight, responsive to daily versions.Verdict:Five years out, this buffer will keep mornings quiet and evenings legible—less correction, more continuity.save pinSplit Public/Private Landing, Mid-Stair LibraryDesign Logic:The side stair mid-landing becomes a micro-library, a latency break between tasks; upstairs zones sleep, downstairs performs.Flow:Work nook near landing → step sequence → primary suite; children’s rooms on opposite arc; flows don’t collide, they handshake.Sightlines:Controlled reveals: landing window frames sky, doors stagger to avoid direct bed exposure; info loads progressively.Storage:Landing shelves as hot cache, bedroom built-ins as cold archive; linen tower on axis for quick retrieval.Furniture Fit:36–42 in corridor width, 30 in desk bay at landing, queen bed with 30 in side clearances; no overflows.Verdict:This tiered cognition—pause, ascend, arrive—keeps mental bandwidth intact as family cycles intensify.save pinService Spine with Side Entry, Future-Proof UtilitiesDesign Logic:Align stair with a service spine: laundry, powder, mechanical, creating a maintainable kernel separate from living UI.Flow:Side entry → drop zone → laundry → stair → bedrooms; deliveries and mess route parallel to guests, never merging.Sightlines:Opaque where utility lives, transparent where social blooms; like dimming debug layers behind the main screen.Storage:Tall utility cabinets, vented baskets, under-stair vacuum dock; cache is labeled, not random.Furniture Fit:Utility counter 24 in deep, 48 in appliance swing, bench 60 in; upstairs dressers built-in to free floor RAM.Verdict:As devices multiply and services shift, this spine holds upgrades without refactoring the whole home.save pinFinal TakeawayA two story layout with side staircase behaves like disciplined code: public and private threads run concurrently without deadlocks. Its semantic variants—side stair plan, split-level circulation, side-entry family core—signal a home ready for changing routines and devices. Long-tail needs like under-stair storage strategies and flexible landing work zones become the quiet accelerators of daily ease. In my experience, the smartest homes of the near future won’t be larger—only more intentional.Convert Now – Free & InstantPlease check with customer service before testing new feature.Free floor plannerEasily turn your PDF floor plans into 3D with AI-generated home layouts.Convert Now – Free & Instant