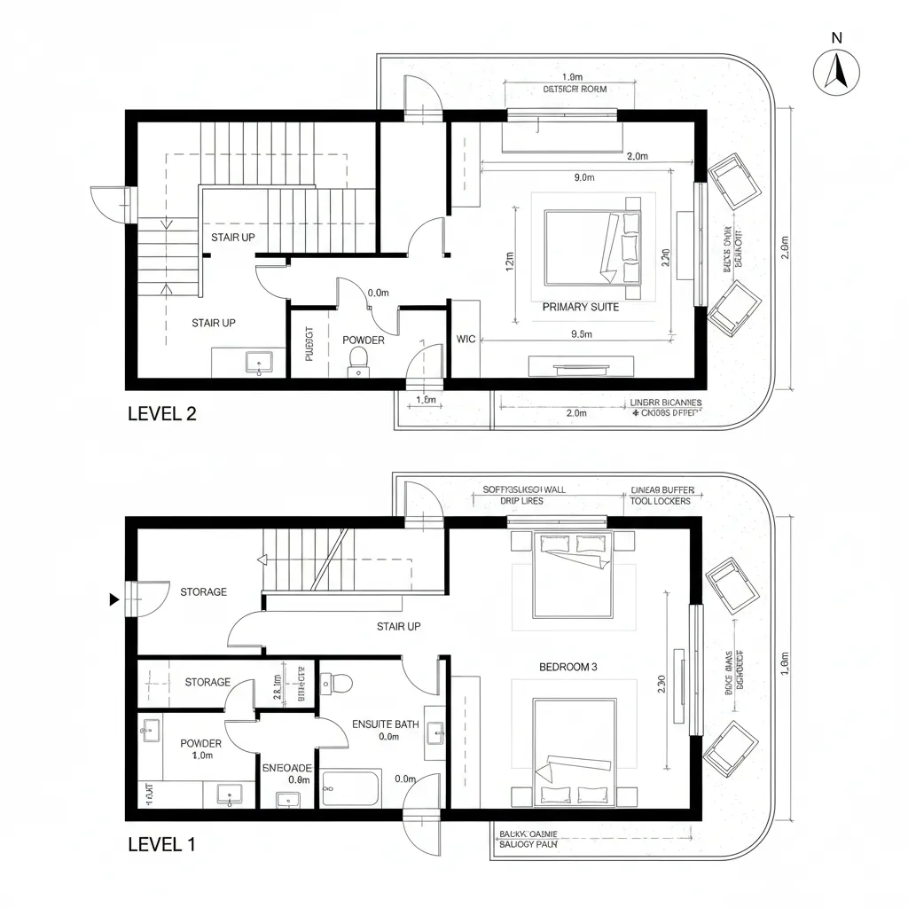
Two-Story Layout with Multiple Balconies: Balconies as operating nodes for tomorrow’s indoor–outdoor lifeAtlas Reverie, AIADec 04, 2025Table of ContentsSky Loop Core: Central Stair + Dual Aspect BalconiesSplit Social Stack: Lower Great Room + Upper Pocket TerracesPerimeter Ribbon: Continuous Balcony Spine + Corner SuiteFinal TakeawayTable of ContentsSky Loop Core Central Stair + Dual Aspect BalconiesSplit Social Stack Lower Great Room + Upper Pocket TerracesPerimeter Ribbon Continuous Balcony Spine + Corner SuiteFinal TakeawayFree floor plannerEasily turn your PDF floor plans into 3D with AI-generated home layouts.Convert Now – Free & InstantThe future keeps compressing into our hallways and thresholds; current homes still choke on stale air, awkward stairs, and rooms that don’t talk to light. According to Houzz, outdoor access projects surged in recent years as homeowners chased daylight and airflow—an early codebase for a more elastic routine. In that drift, a two story layout with multiple balconies becomes less décor, more protocol.spatial reasoning toolkitSky Loop Core: Central Stair + Dual Aspect BalconiesDesign Logic: A central stair is the kernel; balconies mirror east–west to harvest circadian range and microclimate choice—future routines need time-shifted light and air.Flow: Entry → compressed foyer → stair core → upstairs landing branching to primary suite and study → each node opens to a balcony; loops prevent dead ends.Sightlines: From door to stair glass, the eye ladders upward, then fans to horizon lines through twin balconies—UI layers stack: near, mid, far.Storage: Landing wall becomes a 14–18 in deep cache; balcony benches hide seasonal bins; under-stair drawers act like fast-access RAM.Furniture Fit: Primary suite holds a 72 in bed wall, 30 in side clearances; balcony depth 6–7 ft fits bistro + lounge module without choking doors.Verdict: This core behaves like a scheduler: light, airflow, and movement time-slice smoothly—ready for hybrid work and off-peak rest five years out.save pinSplit Social Stack: Lower Great Room + Upper Pocket TerracesDesign Logic: Public programs anchor below; intimate balconies splice the upper level so small retreats run in parallel threads to family life.Flow: Kitchen to great room streams to a corner balcony; upstairs, bedrooms each exit to pocket terraces, enabling quiet exits without crossing main routes.Sightlines: Kitchen island aligns to a diagonal cut through sliders; upstairs, offset doorways prevent direct bed views yet frame sky as the hero panel.Storage: Kitchen pantry wall as bulk cache; balcony planters with false bottoms store cushions; hallway niches hold foldable desks like plug-ins.Furniture Fit: Great room anchors a 9–10 ft sofa, 42 in circulation ring; terraces accept 24 in deep chairs, 18 in side tables—no visual latency at thresholds.Verdict: Social bandwidth scales up or down without echo—micro-escapes keep the home calm under high concurrency.save pinPerimeter Ribbon: Continuous Balcony Spine + Corner SuiteDesign Logic: A ribbon balcony wraps two facades, turning corners into event nodes; future climate swings need adjustable exposure and quick shade shifts.Flow: Entry → side-loaded stair → corner landing → primary suite opens to the ribbon; secondary rooms tap short balcony stubs like subroutines.Sightlines: Ribbon rail aligns with interior datum; corner glazing delivers a 270° panorama UI, prioritizing horizon before furniture.Storage: Façade-thickened walls host shallow wardrobes; balcony soffits hide drip lines and tool lockers—order without visual noise.Furniture Fit: Corner suite takes a 36 in circulation on two sides; balcony width 7 ft supports chaise + planter buffer, keeping egress at 36 in clear.Verdict: The perimeter acts like a content delivery network for light and breeze—low latency, high resilience as routines mutate.save pinFinal TakeawayA two story layout with multiple balconies treats outdoor access as the primary interface, not an afterthought. Variants like dual-aspect terraces, ribbon balconies, and pocket decks let daily life hot-swap between work, rest, and recovery without spatial lag. In my experience, the smartest indoor–outdoor homes aren’t larger, just more intentional about bandwidth, thresholds, and the quiet authority of horizon lines; what I keep seeing in my projects is that small balcony decisions recalibrate entire days.Convert Now – Free & InstantPlease check with customer service before testing new feature.Free floor plannerEasily turn your PDF floor plans into 3D with AI-generated home layouts.Convert Now – Free & Instant