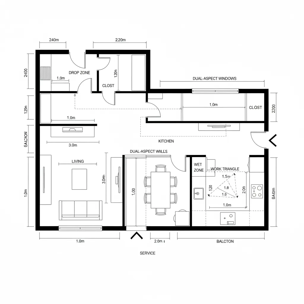
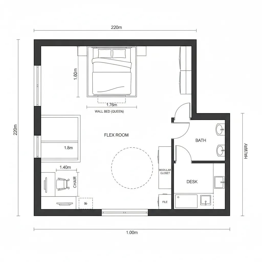
Type B Future Interface: Reading the Vyom Tower Block 2 Part 2 Type B floor plan as a near-future lifestyle OSA Future-Forward PlannerDec 13, 2025Table of ContentsDual-Aspect Living CoreQuiet Primary Suite StackAdaptive Secondary RoomFinal TakeawayTable of ContentsDual-Aspect Living CoreQuiet Primary Suite StackAdaptive Secondary RoomFinal TakeawayFree floor plannerEasily turn your PDF floor plans into 3D with AI-generated home layouts.Convert Now – Free & InstantFuture living keeps tightening the loop between time, attention, and rooms—and current pain points stay stubborn: cluttered flow, shallow storage, and sightlines that fragment daily calm. I’ve been tracking how AIA’s Home Design Trends Survey keeps signaling demand for flexible, multi-use spaces, and this Vyom Tower Block 2 Part 2 Type B floor plan becomes a small compiler for what’s next. The future is pressing in, and I can already see it. spatial reasoning toolkitDual-Aspect Living CoreDesign Logic:Center the living-dining as a dual-aspect core, letting daylight and cross-ventilation write the system rules; the kitchen couples as a service node, future-proofed for hybrid cooking + micro-commute pauses.Flow:Entry → drop zone → living core → balcony interface → kitchen service loop; like a clean function call, no recursive backtracking.Sightlines:Front door vectors to soft horizon (balcony), secondary UI layers to media wall and dining plane; glare controlled like contrast settings.Storage:Perimeter credenza, bench-base cache, tall pantry near kitchen; capacity tiered by frequency-of-use, avoiding cold-start chaos.Furniture Fit:Sofa depth 34–36", dining 72"×36", media wall 10–12' span; each piece respects circulation bandwidth of 36" minimum.Verdict:This core behaves like a resilient hub—ready for flexible work blocks, low-latency hosting, and calmer evenings over the next five years.save pinQuiet Primary Suite StackDesign Logic:Primary bed, wardrobe wall, and bath stack align like a stable data column, shielding sleep from the living bus while keeping grooming latency low.Flow:Hallway → wardrobe cache → sleep plane → en-suite; motion is a short pipeline with no noisy interrupts.Sightlines:Bed faces soft surfaces, not doors; mirror angles avoid direct corridor pings, maintaining a private UI hierarchy.Storage:Full-height wardrobes (24" depth), overhead seasonal bins, vanity drawers; hot data at eye-level, archives above.Furniture Fit:Queen at 60"×80" with 24–30" clear both sides; side tables 18–24"; bench 48" at foot without clipping flow.Verdict:The suite feels like a low-noise kernel—sleep optimized, routines compiled, and adaptable to future wellness add-ons.save pinAdaptive Secondary RoomDesign Logic:Second bedroom toggles between guest, studio, or micro-gym—an addressable node for shifting work-life packets.Flow:Door opens to a convertible wall bed/desk; storage wraps perimeter; balcony or window becomes the refresh thread.Sightlines:Desk faces light, bed aligns away from door; shelving presents a readable UI without cognitive overload.Storage:Modular closet with 18" deep adjustable shelves, under-bed cache, slim vertical file; sorting by session length keeps friction low.Furniture Fit:Desk 48–60", task chair clearance 36"; wall bed queen or twin with 30" swing radius; rug as a soft zone marker.Verdict:This room acts like a versatile micro-server—future-proof against new routines, devices, and schedules that will keep evolving.save pinFinal TakeawayThe Vyom Tower Block 2 Part 2 Type B floor plan reads like a living interface, not just a set of rooms. In a world of hybrid routines, 2-bedroom layouts become programmable environments where flow, sightlines, and storage behave like code. Long-tail needs—like work-from-home ergonomics and wellness zones—fit when furniture honors the API of circulation. In my experience, the smartest homes of the future won’t be larger—only more intentional.Convert Now – Free & InstantPlease check with customer service before testing new feature.Free floor plannerEasily turn your PDF floor plans into 3D with AI-generated home layouts.Convert Now – Free & Instant