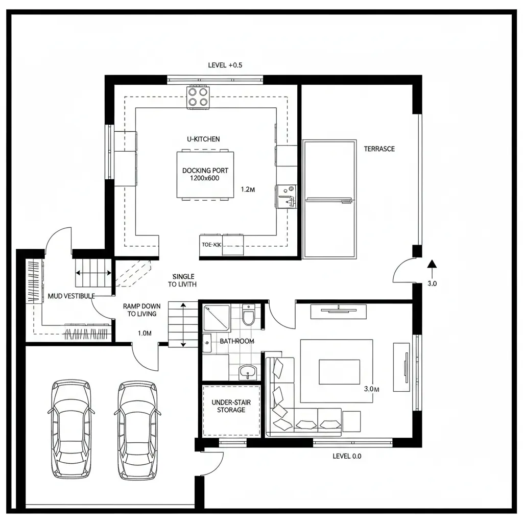
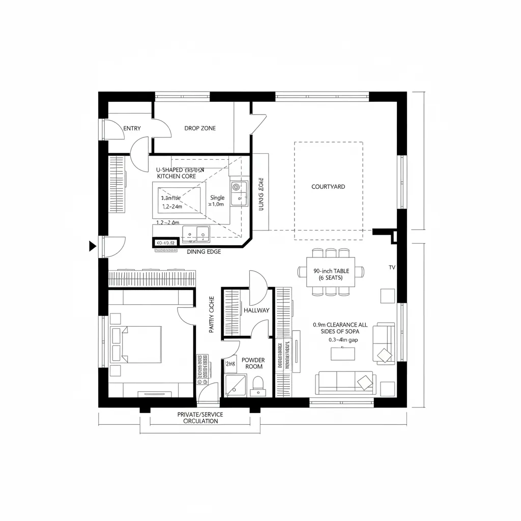
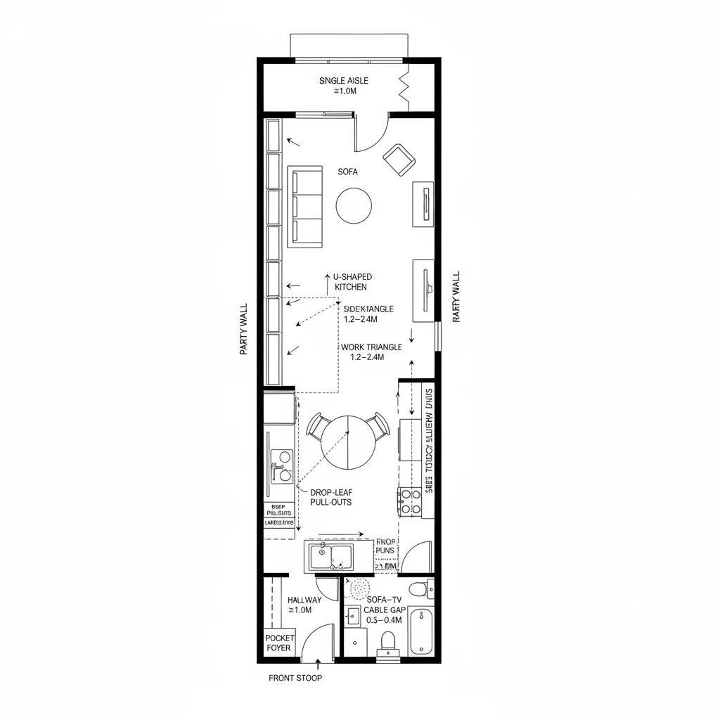
U-Shaped Kitchen House Plan, Seen From Tomorrow: How a U-shaped core rewires daily life, bandwidth, and sightlinesAtlas MercerDec 04, 2025Table of ContentsCourtyard Spine + U-CoreSplit-Level Loop, Elevated UNarrow Lot, Daylight UFinal TakeawayTable of ContentsCourtyard Spine + U-CoreSplit-Level Loop, Elevated UNarrow Lot, Daylight UFinal TakeawayFree floor plannerEasily turn your PDF floor plans into 3D with AI-generated home layouts.Convert Now – Free & InstantThe future keeps leaning in, and the pain point is obvious: too many homes feel like slow software—laggy flow, cluttered cache, and views that don’t prioritize attention. AIA notes a continued rise in demand for flexible kitchens as multi-use hubs, and I see why: the U-shaped core becomes a spatial reasoning toolkit. In a house plan with U-shaped kitchen, we’re not decorating; we’re compiling a lifestyle interface that anticipates new routines.Courtyard Spine + U-CoreDesign Logic:U-shaped kitchen anchors the ground floor, kissing a small courtyard. Cooking, working, and child-watching converge as resilience against hybrid schedules and micro-gatherings.Flow:Entry → drop zone → U-core → dining edge → living bay → courtyard loop; no dead ends, just reversible instructions.Sightlines:From the sink node to dining and play, with a framed outdoor rectangle; hierarchy goes task → social → horizon.Storage:Full-height pantry towers act as cache; shallow drawers at the U’s inner radius reduce reach latency.Furniture Fit:90-inch dining table parallel to the open U leg; sofa floats at 36 inches clearance, API-clean.Verdict:This layout performs like a stable release—future five years of hybrid home life handled without patches.save pinSplit-Level Loop, Elevated UDesign Logic:On a gentle split-level, the U floats half a level above living, creating acoustic signal control and heat efficiency while keeping proximity intact.Flow:Garage → mud vestibule → three-step rise → U-kitchen → terrace; meal prep routes to living via a short ramp of actions.Sightlines:Cooktop axis sees stairwell and media wall; eye toggles between micro (chopping) and macro (family pulse).Storage:Toe-kick drawers for seldom-used tools; under-stair bulk cache; open corner shelves avoid black-hole corners.Furniture Fit:Counter depth at 25 inches clear; island stub at 48×24 creates a docking port; sectional set to align with stair stringer.Verdict:It reads like layered UI—depth without noise; the next half-decade of lifestyle updates slot in neatly.save pinNarrow Lot, Daylight UDesign Logic:For slim parcels, the U sits against the brighter party wall with clerestory windows, turning constraint into throughput.Flow:Front stoop → pocket foyer → U shaped prep zone → side deck slider → rear study; packets of movement never collide.Sightlines:Sink triangulates to deck and desk; light traces along the U’s rim, surfacing tasks like notifications.Storage:Ceiling-hung rail for light cookware; deep pull-outs for dry goods; labeled bins keep cache coherent.Furniture Fit:Drop-leaf table parks at the U’s open mouth; 30-inch aisles expand to 42 inches at pivot points—no jitter.Verdict:Bandwidth climbs where space narrows; five years on, it still feels like fast, clear code.save pinFinal TakeawayA house plan with U-shaped kitchen is less a style than a control center: processing inputs, routing people, and staging daylight as information. In compact homes, the U acts like a reliable backbone, while in larger footprints it becomes a command bridge. Whether you call it a U-shaped layout or a kitchen hub blueprint, its logic scales with new appliances and new rituals. In my experience, the smartest homes of the future won’t be larger—only more intentional.Convert Now – Free & InstantPlease check with customer service before testing new feature.Free floor plannerEasily turn your PDF floor plans into 3D with AI-generated home layouts.Convert Now – Free & Instant