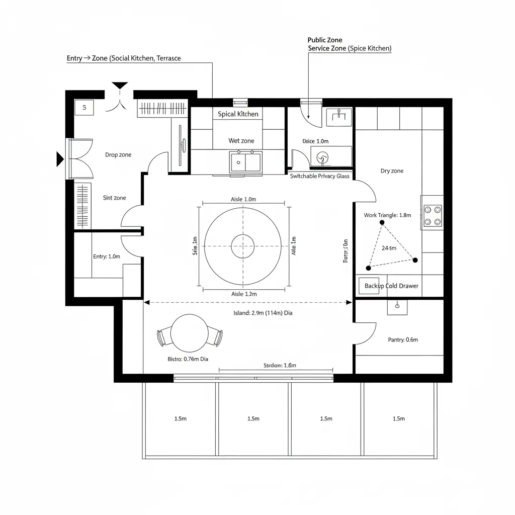
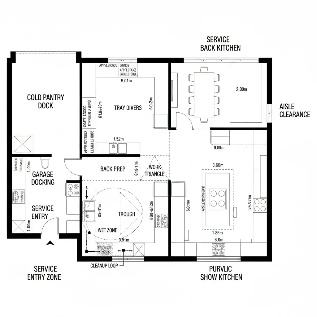
Villa Layout With Dual Kitchens: A future-facing villa interface where two kitchens script parallel lifestylesAtlas MeridianDec 04, 2025Table of ContentsGarden-Facing Social Kitchen + Enclosed Spice KitchenFamily Core Kitchen + Night Kitchen on Private WingEntertainer’s Show Kitchen + Chef-Grade Back KitchenFinal TakeawayTable of ContentsGarden-Facing Social Kitchen + Enclosed Spice KitchenFamily Core Kitchen + Night Kitchen on Private WingEntertainer’s Show Kitchen + Chef-Grade Back KitchenFinal TakeawayFree floor plannerEasily turn your PDF floor plans into 3D with AI-generated home layouts.Convert Now – Free & InstantThe future of domestic bandwidth is widening while today’s homes still throttle routines into a single prep zone. AIA and NAHB surveys keep showing multi-generational patterns rising, while resale platforms note buyers filtering for secondary prep areas. I read the villa layout with dual kitchens as an early compile of emerging needs—a split-processing architecture for food, culture, and time. The future is pressing in, and I’ve already seen its outline in a spatial reasoning toolkit.Garden-Facing Social Kitchen + Enclosed Spice KitchenDesign Logic:Public-facing kitchen opens to terrace; a sealed spice kitchen carries heat, aroma, and ritual—two threads running in parallel without collision.Flow:Entry → drop zone → social island → terrace; ingredients branch into spice room for high-heat tasks, then rejoin at plating like a merge commit.Sightlines:Island aligns with garden axis; spice room uses pocket glass with switchable privacy, preserving UI hierarchy from foyer to green edge.Storage:Social side holds serveware and daily cache; spice room stacks vertical pantries, pull-outs, and a backup cold drawer as redundant nodes.Furniture Fit:114-inch island as central API; 36-inch aisles, 30-inch bistro table by glazing; spice room keeps 24-inch prep bench and 30-inch range module.Verdict:This keeps hospitality luminous and labor invisible—resilient as families hybridize cooking and entertaining over the next five years.save pinFamily Core Kitchen + Night Kitchen on Private WingDesign Logic:A main kitchen calibrates daytime throughput; a compact night kitchen lives near bedrooms for off-peak cycles—hydration, baby bottles, late study fuel.Flow:Mudroom → pantry hub → main galley; after hours, corridor sensor cues the night niche: undercounter fridge → sink → microwave in a three-step loop.Sightlines:Main zone frames fireplace and play area; night alcove hides beyond a flush panel, reducing cognitive noise in the sleep UI.Storage:Main pantry is bulk cache with FIFO bins; night area stores micro-inventories—thermos, formula, tea—preventing long-haul trips at 2 a.m.Furniture Fit:Main: 10-foot galley with 42-inch clearance; night: 18–24-inch counter span, 15-inch deep shelves, low-glare task strip to protect circadian rhythm.Verdict:Shifts the home from monolithic to time-sliced, optimizing energy and patience where nights are fragile and mornings are sprints.save pinEntertainer’s Show Kitchen + Chef-Grade Back KitchenDesign Logic:Show kitchen performs like a UI demo—clean, tactile, quiet; back kitchen handles bulk prep, dish return, and specialty gear as the compute cluster.Flow:Garage → cold pantry dock → back prep → passthrough to show kitchen; serving path decouples from cleanup, preventing packet loss during events.Sightlines:Show kitchen aligns with dining and pool; back zone runs blind to guests, with a service window that frames finished plates as notifications.Storage:Dedicated appliance garage, tray dividers, crate-sized cold storage; labeled bins act as schemas, speeding retrieval under load.Furniture Fit:Show: 12-foot island, induction flush-mount, concealed vents; back: 36-inch deep stainless benches, 48-inch range, 60-inch cleanup trough.Verdict:For clients who host like producers, this layout sustains peak throughput while keeping the interface pristine for the next five years and beyond.save pinFinal TakeawayDual-kitchen villas are not indulgence; they’re an operating system tuned for parallel processes, from multi-generational cooking to late-night micro-routines. A villa layout with dual kitchens, paired with variants like a back kitchen or night pantry, lets families scale without cluttering the interface. In my experience, the smartest homes of the future won’t be larger—only more intentional, and what I keep seeing in my projects is how two precise prep nodes quietly upgrade the whole network.Convert Now – Free & InstantPlease check with customer service before testing new feature.Free floor plannerEasily turn your PDF floor plans into 3D with AI-generated home layouts.Convert Now – Free & Instant