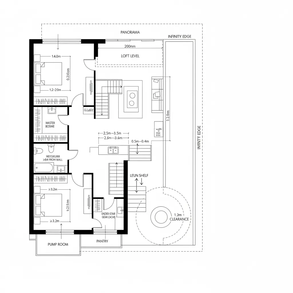
Villa Layout With Pool Deck, Written From The Near Future: A spatial interface where water, light, and movement compile into daily ritualsNorth Pacific Grid StudioDec 04, 2025Table of ContentsH2: Linear Courtyard Spine With PoolH2: L-Shaped Villa Wrapping a Wind-Sheltered Pool CourtH2: Split-Level Terrace With Infinity EdgeFinal TakeawayTable of ContentsH2 Linear Courtyard Spine With PoolH2 L-Shaped Villa Wrapping a Wind-Sheltered Pool CourtH2 Split-Level Terrace With Infinity EdgeFinal TakeawayFree floor plannerEasily turn your PDF floor plans into 3D with AI-generated home layouts.Convert Now – Free & InstantThe future keeps leaning in, asking our homes to be both sanctuary and system, while current villas struggle with fragmented outdoor access and wasteful circulation. According to NAHB trend tracking, demand for functional outdoor living has surged alongside indoor-outdoor continuity. In that light, a villa layout with pool deck becomes a living interface—an early code sample of how we’ll dwell tomorrow. spatial reasoning toolkit threads the plan, so the water’s edge behaves like an operating system rather than a postcard.H2: Linear Courtyard Spine With PoolDesign Logic: A central axis aligns entry, gallery, great room, and pool deck, reflecting a future where wellness and daylight are default protocols.Flow: Arrival → drop zone → gallery → kitchen/great room → flush threshold to deck → lap lane; no backtracking, just a clean instruction sequence.Sightlines: Front door to waterline, framed by pocketed glass; peripheral bedrooms read like muted tabs, primary suite anchors the horizon.Storage: Wall-depth pantry and deck-side towel lockers act as cache; mechanical alcove hidden along service edge keeps bandwidth clear.Furniture Fit: 42-inch dining clearance, 10-foot island as command bar, low-profile loungers in 2.0m modules align with pool grid.Verdict: For five years out, this spine will scale—more solar, better glazing, same calm OS.save pinH2: L-Shaped Villa Wrapping a Wind-Sheltered Pool CourtDesign Logic: The L-form edits wind and neighbors, setting the pool deck as the protected kernel for year-round use as climate variances intensify.Flow: Garage → mud core → kitchen node → living wing → sliding corner stack → pool court; service runs behind like background threads.Sightlines: Corner-free glass stitches kitchen to water to sky; kids’ wing sees the shallow shelf while primary suite tracks the deep end.Storage: Bench-by-door cache, outdoor kitchen drawers, deck bin for covers; utilities park in the short leg to keep latency low.Furniture Fit: 3.6m outdoor table under pergola bays, modular sectionals in 90cm increments, planters double as cable raceways.Verdict: The L becomes a resilient UI—quiet in storms, extroverted in evenings, future-proof in small firmware updates.save pinH2: Split-Level Terrace With Infinity EdgeDesign Logic: A half-level drop from salon to pool reads like zooming from macro to micro, letting gravity choreograph the day-night cycle.Flow: Foyer → salon → two-step descent → sun shelf → swim lane → fire terrace; vertical nudge sets a purposeful execution path.Sightlines: Eye skims over sofa tops to infinity lip, then to treeline; upstairs loft bookmarks the panorama like a persistent header.Storage: Under-stair gear cache, built-in bench niches, pump room tucked beneath terrace; everything finds a deterministic address.Furniture Fit: 900mm circulation ribbons, armless loungers parallel to edge, circular fire pit as hub with 1.2m radial clearances.Verdict: This stepped topology ages well—more sensors, same serenity; the terrain itself becomes the API.save pinFinal TakeawayA villa layout with pool deck is less a postcard than a protocol, compiling light, water, and movement into a daily operating rhythm. Through indoor–outdoor continuity and precise thresholds, poolside living becomes a resilient interface for evolving weather and work patterns. The best layouts act like future firmware—small updates, big effects—and in my experience, the homes that feel timeless are the ones that route every step, sightline, and seat like clean code.Convert Now – Free & InstantPlease check with customer service before testing new feature.Free floor plannerEasily turn your PDF floor plans into 3D with AI-generated home layouts.Convert Now – Free & Instant