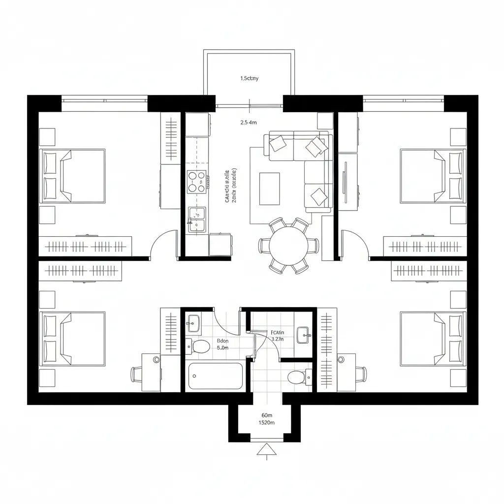
Vyom Block 2 Part 2 Flat C – Future-Ready Interface: Reading a Kolkata apartment like a compiled language for tomorrow’s routinesAri VegaDec 26, 2025Table of ContentsSplit-Core Axis with Quiet Peripheral RoomsDual-Mode Living Hub with Sliding PartitionWet Core Consolidation with Thermal Zoning## Final TakeawayTable of ContentsSplit-Core Axis with Quiet Peripheral RoomsDual-Mode Living Hub with Sliding PartitionWet Core Consolidation with Thermal Zoning## Final TakeawayFree floor plannerEasily turn your PDF floor plans into 3D with AI-generated home layouts.Convert Now – Free & InstantCoohom official:Render Tools BasicsFuture lifestyle is pressing in while today’s residents juggle noise, storage scarcity, and fragmented routines; I design like I’m debugging the interface. According to NAHB, over 60% of homeowners rank optimized layouts over sheer square footage—signal over volume. In that lens, the vyom block 2 part 2 flat c floor plan becomes a prototype for how we’ll live next.spatial reasoning toolkitSplit-Core Axis with Quiet Peripheral RoomsDesign Logic: A central spine holds kitchen and living as the OS, while bedrooms sit at the edges to dampen noise—future hybrid work needs acoustic sovereignty.Flow: Entry → drop zone → galley/multi-use kitchen → living hub → balcony node; side branches route to sleeping suites like subprocesses.Sightlines: From door, a layered vista: partial kitchen reveal, framed living, light beacon at balcony; private rooms remain off the primary UI.Storage: Perimeter millwork as cache, headboard niches, corridor tall units; pantry column doubles as version control for household supplies.Furniture Fit: Sofa 84–90" anchored to axis, dining 60" round avoids pinch points; desks as fold-away modules near window bandwidth.Verdict: This structure future-proofs daily switches—work, cook, unwind—without cross-talk; five years out, it feels calmer, not larger.save pinOpen in 3D Planner Processing... Dual-Mode Living Hub with Sliding PartitionDesign Logic: The main room toggles between social and studio modes; sliding panels act like permissions, granting or hiding zones as needed.Flow: Morning: east light → modular workbench; evening: panels retract → cinema/hosting; overnight: guest mode spins up behind a soft partition.Sightlines: Low credenza maintains horizon line; panel translucency gives UI hints without exposing full data; balcony remains the anchor node.Storage: Under-sofa drawers, ceiling track shelves, bench-steps as micro-cache; seasonal items live in vertical towers near the entry.Furniture Fit: Compact 48" desk on casters, nesting coffee tables, a 9' rug defining the command area; chairs stack to free bandwidth on demand.Verdict: Adaptive zoning treats time as the real square footage; the room compiles differently Monday vs. Saturday, and that’s the point.save pinOpen in 3D Planner Processing... Wet Core Consolidation with Thermal ZoningDesign Logic: Bath, utility, and kitchen cluster to minimize plumbing runs and thermal leak—efficiency is the quiet luxury future renters will expect.Flow: Entry node hands off to utility pocket → kitchen queue → bath branch; bedrooms stay out of wet traffic, reducing latency at peak hours.Sightlines: Opaque wet-core walls clean the visual stack; reflective backsplash bounces light back into the living kernel without glare.Storage: Tall utility cabinet with labeled bins, toe-kick drawers in kitchen, mirrored bath cabinet as quick-access cache; laundry shelf with airflow gaps.Furniture Fit: 24" appliances, 30" cook zone, 18" pull-out pantry; in bedrooms, 60–72" wardrobes act as stable APIs for clothing cycles.Verdict: Consolidation trims energy and chaos; in five years, maintenance is simpler, bills lighter, and mornings feel like a clean boot.save pinOpen in 3D Planner Processing... ## Final TakeawayThe vyom block 2 part 2 flat c floor plan, treated as a living interface, shows how small spatial heuristics can outpace square footage. Its variants—split-core, adaptive hub, and wet-core consolidation—are long-tail choices that make hybrid work and quiet rest coexist. In my experience, the smartest homes of the future won’t be larger—only more intentional, and what I keep seeing in my projects is that careful flow rewriting changes everyday life.Convert Now – Free & InstantPlease check with customer service before testing new feature.Free floor plannerEasily turn your PDF floor plans into 3D with AI-generated home layouts.Convert Now – Free & Instant