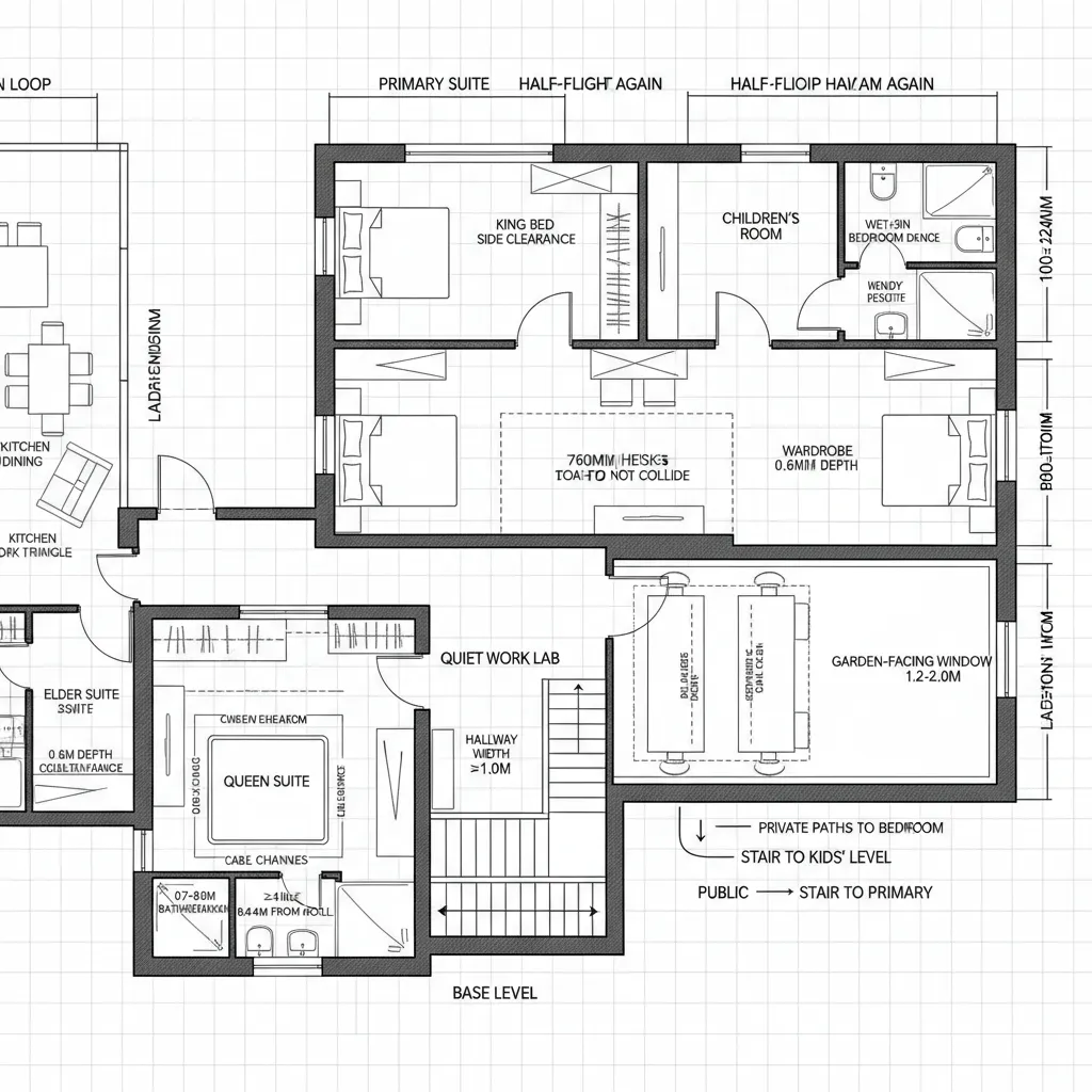
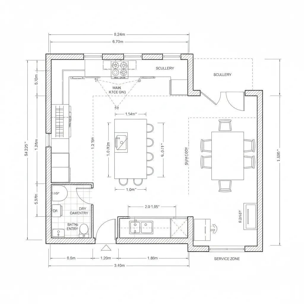
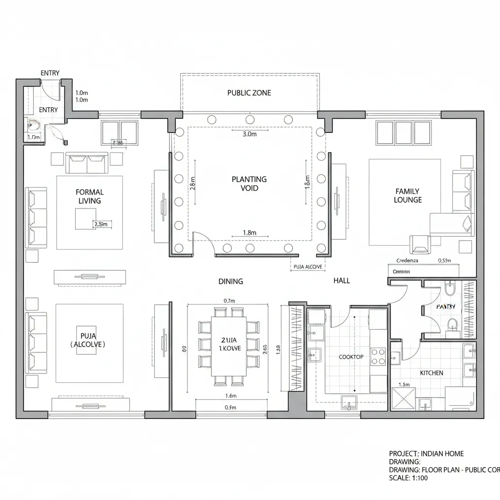
3000 sq ft Indian Home: Interfaces for a Near-Future Life: Floor plans that choreograph tradition, technology, and everyday ritualsRavi M. — Future-Forward Residential PlannerDec 12, 2025Table of ContentsCourtyard Spine with Dual LivingSplit-Level Private Wing + Work LabKitchen–Dining as Ritual EngineFinal TakeawayFree floor plannerEasily turn your PDF floor plans into 3D with AI-generated home layouts.Convert Now – Free & InstantThe future lifestyle keeps pressing on our doors while today’s homes still struggle with circulation, storage entropy, and ritual zones. A recent NAHB report shows buyers prioritize flexible spaces over sheer footage, a reminder that floor plans for 3000 sq ft house Indian must compile culture and adaptability into one. spatial reasoning toolkit becomes the quiet backbone as I read how families will live five years from now.I see my clients negotiating puja, multi-generational privacy, and hybrid work—current pain points that demand intelligent zoning. The future has already leaned in; I simply map it.Courtyard Spine with Dual LivingDesign Logic:An internal courtyard becomes the thermal and social kernel, aligning with Indian light and ventilation while future-proofing for multi-gen cohabitation. Flow:Entry → formal living → courtyard node → family lounge → dining → kitchen; a programmatic loop that compresses distance and expands social bandwidth. Sightlines:From door to green core, then fanning to dining and puja niche—UI layers reveal in a calm hierarchy, keeping private suites off-axis. Storage:Perimeter credenzas, deep pantry, sari-and-sherwani wardrobes; cache arranged by frequency so festive gear doesn’t clog daily threads. Furniture Fit:Modular sofas, 10-seat dining at 42" width, pooja alcove at 36" depth; APIs tuned to ceremonies, study, and night routines. Verdict:This spine stabilizes climate and culture, ready for smart ventilation and evolving family structures over the next five years.save pinOpen in 3D Planner Processing... Split-Level Private Wing + Work LabDesign Logic:Half-level shifts segregate acoustic domains, giving elders a ground suite and a quiet lab for remote work without severing family ties. Flow:Main loop → study lab → half-flight to kids’ rooms → half-flight to primary suite; an execution path that throttles noise like code. Sightlines:Workbench sees garden, not hallway; stairs reveal rooms as controlled disclosures, keeping cognitive load low. Storage:Under-stair drawers, lab wall system, linen towers; cache is tiered by task, preventing packet loss in daily routines. Furniture Fit:Desks at 30" with cable channels, queen/king beds with 24" circulation, lounge chairs nested by light. Verdict:The split-level becomes a latency management tool, protecting focus while letting family signals pass through without interference.save pinOpen in 3D Planner Processing... Kitchen–Dining as Ritual EngineDesign Logic:An L-shaped kitchen with scullery and balcony aligns cooking, hosting, and puja prep—future gatherings need throughput, not spectacle. Flow:Service entry → scullery → main kitchen → island → dining → balcony; like a pipeline optimizing inputs, heat, and release. Sightlines:Chef sees door and dining; island anchors foreground, balcony frames relief, puja niche sits in soft peripheral view. Storage:Vertical pull-outs, thali organizers, spice grid at eye level; cache keeps rituals quick, cleaning invisible. Furniture Fit:96" island, 8–10 seat table, compact mandir cabinet; dimensions speak the API of daily seva, tea, homework. Verdict:This node scales beautifully from weekday to festival, a reliable engine for families whose calendars oscillate between calm and crescendo.save pinOpen in 3D Planner Processing... Final TakeawayFloor plans for 3000 sq ft house Indian must act like interfaces, translating tradition into modular zones and bandwidth-aware circulation. As hybrid work and multi-generational living evolve, the next homes lean on flexible suites, ritual-friendly kitchens, and courtyards that regulate climate and community. In my experience, the smartest homes of the future won’t be larger—only more intentional, and what I keep seeing in my projects is that small spatial decisions quietly rewrite how families live.Convert Now – Free & InstantPlease check with customer service before testing new feature.Free floor plannerEasily turn your PDF floor plans into 3D with AI-generated home layouts.Convert Now – Free & Instant