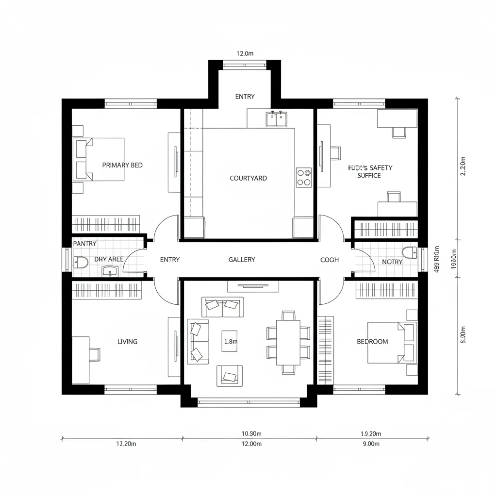
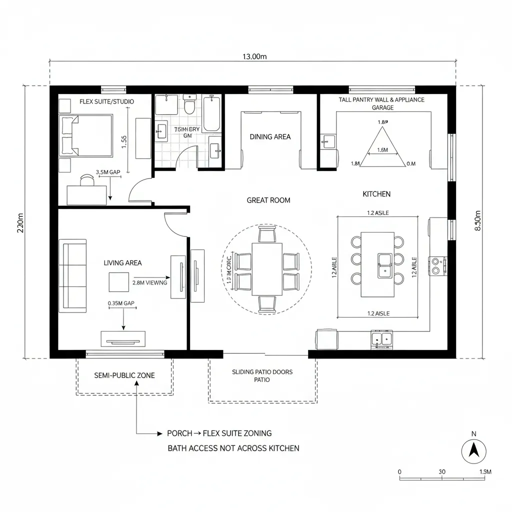
Ground Floor Futures: 2-Bedroom Plans in 3D: Reading tomorrow’s lifestyle through a compact, ground-level 2-bed interfaceAvery M. QuillDec 10, 2025Table of ContentsCourtyard Spine + Split BedroomsFront Flex Suite + Rear Great RoomCentral Core Services + Perimeter RoomsFinal TakeawayTable of ContentsCourtyard Spine + Split BedroomsFront Flex Suite + Rear Great RoomCentral Core Services + Perimeter RoomsFinal TakeawayFree floor plannerEasily turn your PDF floor plans into 3D with AI-generated home layouts.Convert Now – Free & InstantThe future nudges at our thresholds: remote work persistence, multigenerational proximity, and aging-in-place converge while current ground floors struggle with privacy, daylight, and messy storage. AIA and NAHB surveys show home offices and flexible rooms rising as top priorities, and Zillow’s data keeps confirming appetite for adaptable ground-level living. In that light, I read ground floor 2 bedroom house plans 3d as early code for how households will compute comfort and bandwidth over the next decade—rendered in a spatial reasoning toolkit that feels already near.Courtyard Spine + Split BedroomsDesign Logic: A central courtyard becomes the thermal and social kernel, splitting primary and secondary rooms for privacy while feeding light into deep zones—future work/live needs prefer separable nodes.Flow: Entry → gallery spine → living/kitchen on the courtyard → branch left to primary suite, right to flex bedroom/office; code-like, with interrupts for outdoor escapes.Sightlines: From threshold, a long low horizon to green; perpendicular views collapse clutter, keeping UI layers minimal and legible.Storage: Corridor millwork acts as cache; courtyard-side benches hide seasonal gear; pantry as cold-storage buffer near deliveries.Furniture Fit: 9–10 ft modules set sofa and table clearances; queen bed with 30–36 in edge channels; desk bay as plug-in API for screens.Verdict: In five years, this becomes a calm operating system: distinct sleep/work threads, bright core, and zero wasted cycles.save pinFront Flex Suite + Rear Great RoomDesign Logic: A front bedroom with bath doubles as client-facing studio, keeping household life buffered while honoring street presence—future side gigs need this gateway.Flow: Porch → flex suite (semi-public) → compressed hall → expansive rear great room → patio; a funnel that negotiates modes like a smart router.Sightlines: Street-to-garden axis anchors orientation; kitchen island frames soft-edged views to monitor kids/pets without visual noise.Storage: Drop zone at entry as packet filter; rear wall tall pantry + integrated appliance garage keeps counters latency-free.Furniture Fit: 42 in kitchen clearances, 60 in dining circulation, sectional in a 10x12 zone; secondary room holds murphy/desk hybrid.Verdict: This layout absorbs hybrid work and hosting bursts; the interface remains clean as patterns evolve and intensify.save pinCentral Core Services + Perimeter RoomsDesign Logic: Bathrooms, laundry, and mechanicals cluster in a compact core, shortening runs; bedrooms and great room tap perimeter light—future efficiency wants shorter pipelines.Flow: Entry pings the core (coat, powder, laundry) then routes to living or sleep wings; routines feel like compiled commands with minimal hops.Sightlines: Core blocks mess; windows read as status panels around edges, giving a calm bandwidth of daylight.Storage: 24-in deep perimeter wardrobes; ceiling-high utility wall as vertical cache; under-bench toe-kicks for micro-storage.Furniture Fit: Edge-to-center clearances stay 32–42 in; beds at 60–80 in modules; a 7–8 ft sofa anchors media without occluding paths.Verdict: Over time, services stay silent and tight while perimeter life remains bright—an efficient kernel sustaining multiple user profiles.save pinFinal TakeawayGround floor two-bedroom layouts in 3D aren’t just drawings; they’re living interfaces that choreograph privacy, daylight, and flexible work into one executable. Whether you call them ground floor 2 bedroom house plans 3d or a compact operating system for domestic life, the mandate is precision over size, clarity over clutter. In my experience, the smartest homes of the near future won’t be larger—only more intentional, and I keep designing toward that horizon.Convert Now – Free & InstantPlease check with customer service before testing new feature.Free floor plannerEasily turn your PDF floor plans into 3D with AI-generated home layouts.Convert Now – Free & Instant