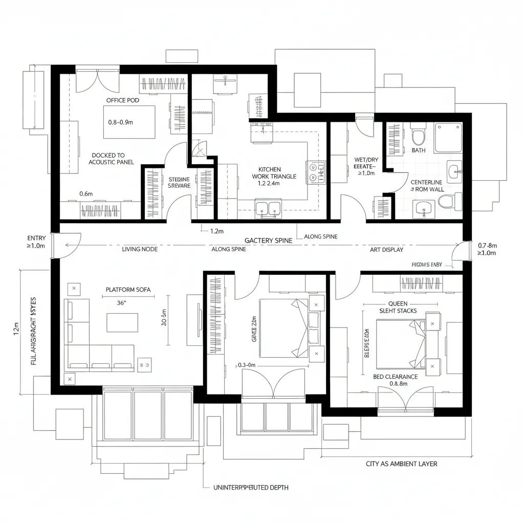
Harvey Specter Apartment Floor Plan: A future-coded Manhattan layout where law meets light and precisionAtlas WynneDec 22, 2025Table of ContentsCorner Penthouse Grid—Executive Core + Quiet PerimeterSplit-Span Layout—Negotiation Suite + Domestic KernelLinear Loft Thread—Gallery Spine with Tactical PodsFinal TakeawayFree floor plannerEasily turn your PDF floor plans into 3D with AI-generated home layouts.Convert Now – Free & InstantThe future lifestyle keeps asking for spaces that multitask without leaking focus, while current apartments still struggle with acoustic, storage, and boundary issues. According to Zillow’s recent data, urban buyers increasingly prioritize flexible layouts over sheer square footage, a shift I read as a prelude to new interfaces of living. In that lens, a Harvey Specter apartment floor plan becomes a compiled language for ambition and calm. And I’ve already seen the future pressing in—this is how I draw it with a spatial reasoning toolkit.Corner Penthouse Grid—Executive Core + Quiet PerimeterDesign Logic:Corner glazing forms a power axis: reception-living to office, with a hush perimeter for bedroom and ritual zones—future work-life fusion needs disciplined boundaries.Flow:Entry → gallery spine → living hub → office bay; secondary path to kitchen → bedroom → spa-like bath, a sequenced program protecting deep work and recovery.Sightlines:Long sight to skyline from living; cross-view into office framed by millwork, while private rooms break the UI with deliberate occlusion.Storage:Wall-depth archives near office, concealed bench cache by windows, kitchen pantry like a data lake—fast access, slow clutter.Furniture Fit:Low-profile modular sofa aligns with glazing API; executive desk floats parallel to mullions; bed platform tuned to acoustic nodes.Verdict:A high-bandwidth shell that keeps performance up front and serenity buffered—five years out, it still reads crisp, not crowded.save pinOpen in 3D Planner Processing... Split-Span Layout—Negotiation Suite + Domestic KernelDesign Logic:Two wings: public negotiation suite and domestic kernel; the future demands role-switching without friction, so the plan toggles like modes.Flow:Foyer checkpoint → salon → bar-kitchen pivot; opposite wing runs corridor → bedroom → dressing → bath, minimizing cross-talk.Sightlines:Layered transparency: salon sees city and bar; kitchen partially veiled; private wing renders as a dimmed UI card.Storage:Clad columns hide vertical cache; dressing room uses rail + drawer taxonomy for suit logic; bar has cold/warm zones like memory tiers.Furniture Fit:Lounge chairs as movable nodes; a thin-edge dining table acts like a protocol bridge between work and hosting; closet modules at 24"/30" grids.Verdict:The layout negotiates intensity and intimacy; in the near future, this modularity keeps social bandwidth high without exhausting the system.save pinOpen in 3D Planner Processing... Linear Loft Thread—Gallery Spine with Tactical PodsDesign Logic:A Manhattan loft unrolled: gallery spine carries light; pods for office, sleep, and cook—future-ready because it reads like a clean command line.Flow:Entry → art spine → living node → office pod; branch to kitchen pod → sleeping pod → bath, a compile order that avoids runtime collisions.Sightlines:Spine offers uninterrupted depth; pods edit views to prioritize tasks; city becomes the ambient layer, not the distraction feed.Storage:Full-height rail systems along spine as shared cache; pod-specific hidden drawers; kitchen uses vertical pull-outs for dense indexing.Furniture Fit:Platform sofa with 36" modules; desk docked to acoustic panel; bed framed by integrated night-stack—pure API compliance to square footage.Verdict:Lean, decisive, and upgradeable—the loft stays agile as schedules and habits refactor over the next five years.save pinOpen in 3D Planner Processing... Final TakeawayA Harvey Specter apartment floor plan is less about spectacle and more about precision—interfaces that let ambition run hot while rest stays cool. Whether corner grid, split-span, or linear loft, the plan acts like a well-written protocol for urban life, with flexible zoning and disciplined storage as its constants. In my experience, the smartest Manhattan homes ahead won’t be larger—only more intentional, and what I keep seeing in my projects is how small spatial decisions quietly rewrite the way people live.Convert Now – Free & InstantPlease check with customer service before testing new feature.Free floor plannerEasily turn your PDF floor plans into 3D with AI-generated home layouts.Convert Now – Free & Instant