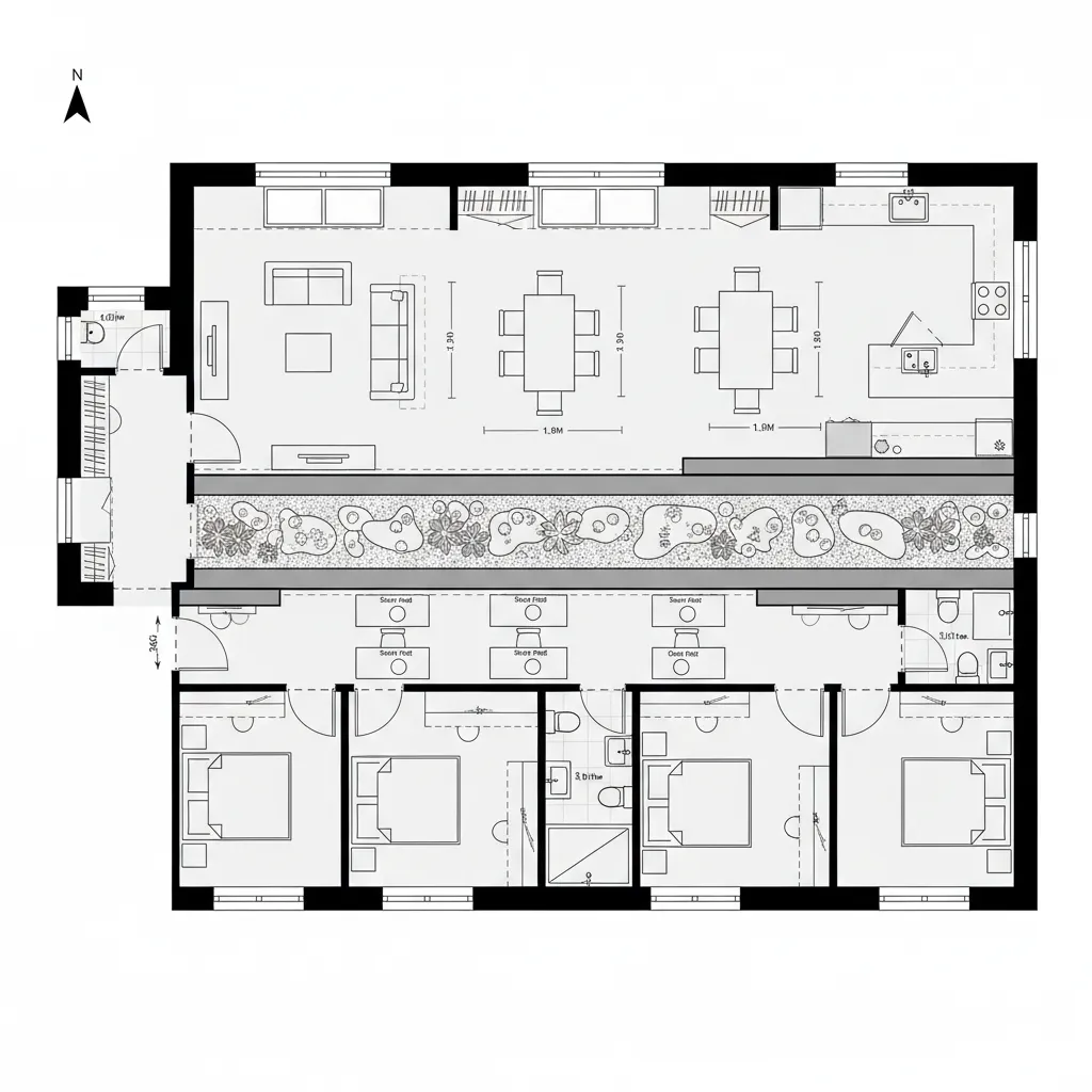
House Plan with Internal Garden: An interface where living breathes through a central green coreEon MercerJan 21, 2026Table of ContentsCentral Courtyard SpineLinear Atrium GallerySplit-Wing with Biophilic BridgeFinal TakeawayFree floor plannerEasily turn your PDF floor plans into 3D with AI-generated home layouts.Convert Now – Free & InstantFuture lifestyle asks for homes that regulate their own climate, mood, and attention—while current pain points remain noise, privacy air‑quality, and fragmented routines. According to AIA data, flexible layouts and wellness-forward features are rising as top priorities. I treat a house plan with internal garden as early code for self-healing daily life, where light, air, and silence compile into presence. The future is pressing in, and I’m already seeing its outline through a spatial reasoning toolkit.Central Courtyard SpineDesign Logic: A square plan with a luminous green void at center—rooms orbit it like modules around a kernel; resilience needs daylight, cross‑ventilation, and restorative micro‑nature.Flow: Entry → gallery hall → courtyard loop → living/kitchen → bedrooms; a circular routine that behaves like a stable event loop.Sightlines: From door to canopy, then layered thresholds; privacy deepens as views skim greenery instead of people.Storage: Perimeter built‑ins act as cache—bench bases, courtyard edge cabinets, attic nodes keep cycles uncluttered.Furniture Fit: Low sofas, 30–34" table, slender lounge chairs; API limits set by egress widths and leaf drop zones.Verdict: Five years on, the courtyard becomes a calm processor: seasons render softly, routines debug themselves.save pinOpen in 3D Planner Processing... Linear Atrium GalleryDesign Logic: A narrow lot gains bandwidth via a long internal garden strip; it splits private and public like two threads sharing one clock.Flow: Foyer → atrium gallery → living/dining → study pods → bedrooms; each step snaps to light like stepping through commands.Sightlines: Side-to-side green corridor pulls the eye, while doors stagger to prevent data leaks of privacy.Storage: Full-height wall systems opposite the planting act as mirrored cache; seasonal items dock near ends of the gallery.Furniture Fit: 36" circulation clear, 12–16" planter ledge doubles as seating; tables align parallel to the green bus.Verdict: The home reads as a readable timeline—work, rest, and meals queued by sun patches and leaf motion.save pinOpen in 3D Planner Processing... Split-Wing with Biophilic BridgeDesign Logic: Two wings (sleep/work and social) linked by an internal garden bridge; future hybridity needs partitions that breathe.Flow: Mudroom → bridge garden → kitchen hub → wing nodes; a conditional path that routes noise away from focus zones.Sightlines: Diagonal views across the green bridge create UI layers: near foliage, mid-depth activity, far quiet.Storage: Bridge under-bench drawers, wing-end closets, and ceiling racks—distributed cache reducing latency to tasks.Furniture Fit: Modular tables on casters, 24" deep desks facing green, lounge pieces under 30" high to preserve horizon lines.Verdict: In five years the bridge mediates work-life packets gracefully—no collisions, only negotiated rhythms.save pinOpen in 3D Planner Processing... Final TakeawayA house plan with internal garden is less a style than an operating system for light, air, and attention. Variations—central courtyard, linear atrium, or biophilic bridge—turn circulation into code and privacy into an adjustable protocol. In my experience, these green cores future‑proof homes more than extra square footage ever could, and what I keep seeing in my projects is how quiet greenery rewires daily bandwidth.Convert Now – Free & InstantPlease check with customer service before testing new feature.Free floor plannerEasily turn your PDF floor plans into 3D with AI-generated home layouts.Convert Now – Free & Instant