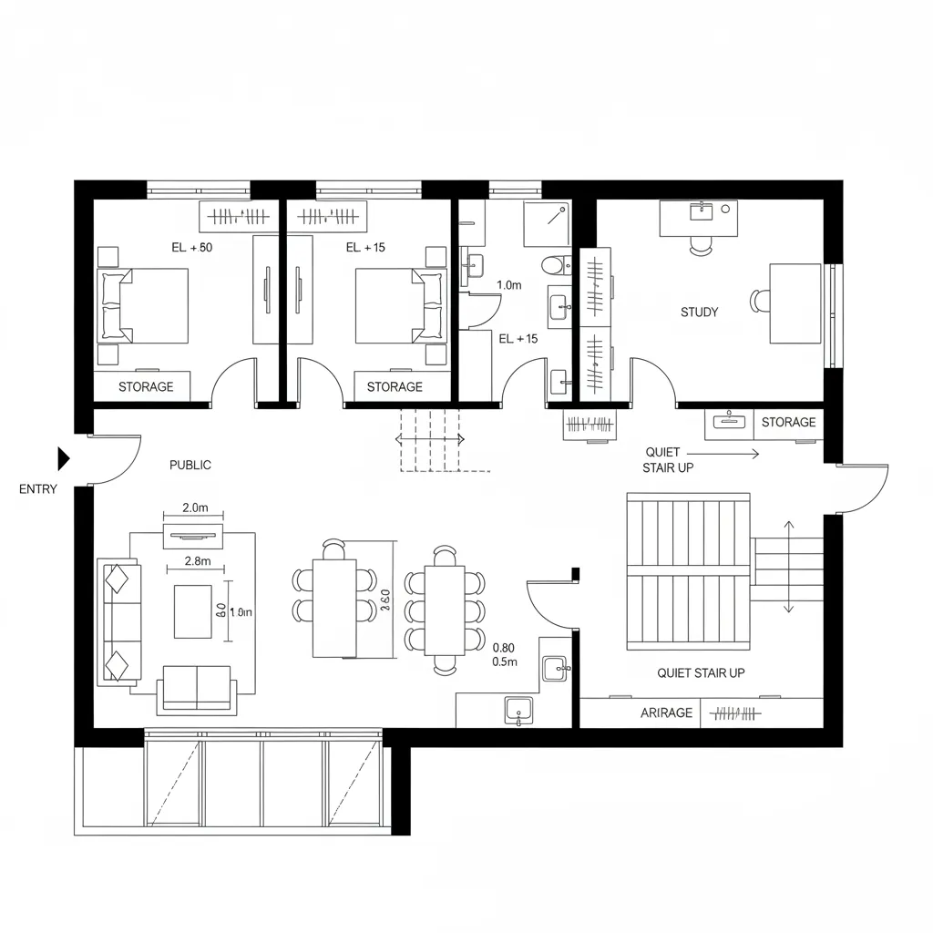
Kanchanjunga Apartment Floor Plan, Re-read for the Near Future: Interpreting Charles Correa’s vertical neighborhoods as a living interface for tomorrowNorth Node StudioDec 22, 2025Table of ContentsVertical Verandah DuplexCross-Vent Core with Flexible AlcoveSplit-Level Privacy StackFinal TakeawayFree floor plannerEasily turn your PDF floor plans into 3D with AI-generated home layouts.Convert Now – Free & InstantThe future presses in while today’s city-dwellers juggle privacy, daylight, and storage like scarce bandwidth. In the Kanchanjunga apartment floor plan, I read a blueprint for adaptive living—stacked verandahs, angled sightlines, and cross-ventilation offering a humane algorithm. Industry keeps confirming the pressure: AIA and NAHB surveys show post-pandemic buyers prioritizing flexible rooms and outdoor adjacency. The main keyword folds in here, because kanchanjunga apartment floor plan already feels like tomorrow, quietly compiled in concrete. spatial reasoning toolkitVertical Verandah DuplexDesign Logic:Duplex sections with deep terraces act like climate buffers; future cities need layered edges that modulate heat, noise, and social proximity.Flow:Arrival to foyer, then a slow sequence: living → verandah → dining → kitchen core, with vertical jump to private rooms; a coded routine that separates public from restorative nodes.Sightlines:Diagonal cuts yield long, calm axes from living to skyline; verandah frames act like UI panels, filtering glare while revealing context in tiers.Storage:Built-ins along party walls operate as a cache, keeping bulk items at the periphery and leaving the circulation lane clean for daily packets.Furniture Fit:Low, deep seating respects terrace thresholds; tables align with column grids—the API limits that keep movement latency low.Verdict:This stack reads as resilient: five years on, families will flex between indoor focus and outdoor decompression without reprogramming the plan.save pinOpen in 3D Planner Processing... Cross-Vent Core with Flexible AlcoveDesign Logic:A porous spine and convertible alcove answer future health norms—air changes per hour become lifestyle, not compliance.Flow:Entry → gallery → living hub → pivoting alcove → kitchen; doors and screens toggle like permissions, turning one room into many without friction.Sightlines:Short-to-long gradients guide attention: task views near kitchen, horizon views from alcove to terrace, a readable hierarchy of visual data.Storage:Ceiling-height wardrobes and under-bench niches buffer seasonal gear; cache close to use, archive at edges—less search, more calm.Furniture Fit:Modular sofas at 900–950mm depth host work and rest; lightweight tables route easily around ventilation paths so the airflow protocol stays intact.Verdict:In a half-decade, this micro-flex zone will absorb remote work, guest stays, and wellness routines without expanding the envelope.save pinOpen in 3D Planner Processing... Split-Level Privacy StackDesign Logic:Semi-level shifts create micro-latency between functions; future households need privacy gradients without isolation.Flow:Public layer (living/dining) → half-step rise to bedrooms → quiet stair to study; each transition is a compiled pause that edits noise and intent.Sightlines:Eye travels from communal core to soft corners; thresholds compress, then release views to terraces, a UI rhythm that lowers cognitive load.Storage:Stair-side drawers and headwall cabinetry hold daily artifacts; archives nest below landings, a tiered cache avoiding bandwidth spikes at peak hours.Furniture Fit:Bed platforms match structural bays; desks slide into recesses—API-true dimensions minimize collision with doors and circulation.Verdict:The stack will keep privacy stable as households evolve, holding teenagers, elders, and guests in a coherent signal rather than scattered noise.save pinOpen in 3D Planner Processing... Final TakeawayThe kanchanjunga apartment floor plan anticipates a city where terraces, airflow, and flexible rooms are the operating system of home. Its semantic variants—vertical neighborhood layout, cross-ventilated unit, split-level privacy—point to dwellings that feel lighter yet more intentional. Over the next decade, long-tail needs like climate buffering and remote work will fold into the same robust interface. In my experience, the smartest homes of the future won’t be larger—only more intentional.Convert Now – Free & InstantPlease check with customer service before testing new feature.Free floor plannerEasily turn your PDF floor plans into 3D with AI-generated home layouts.Convert Now – Free & Instant