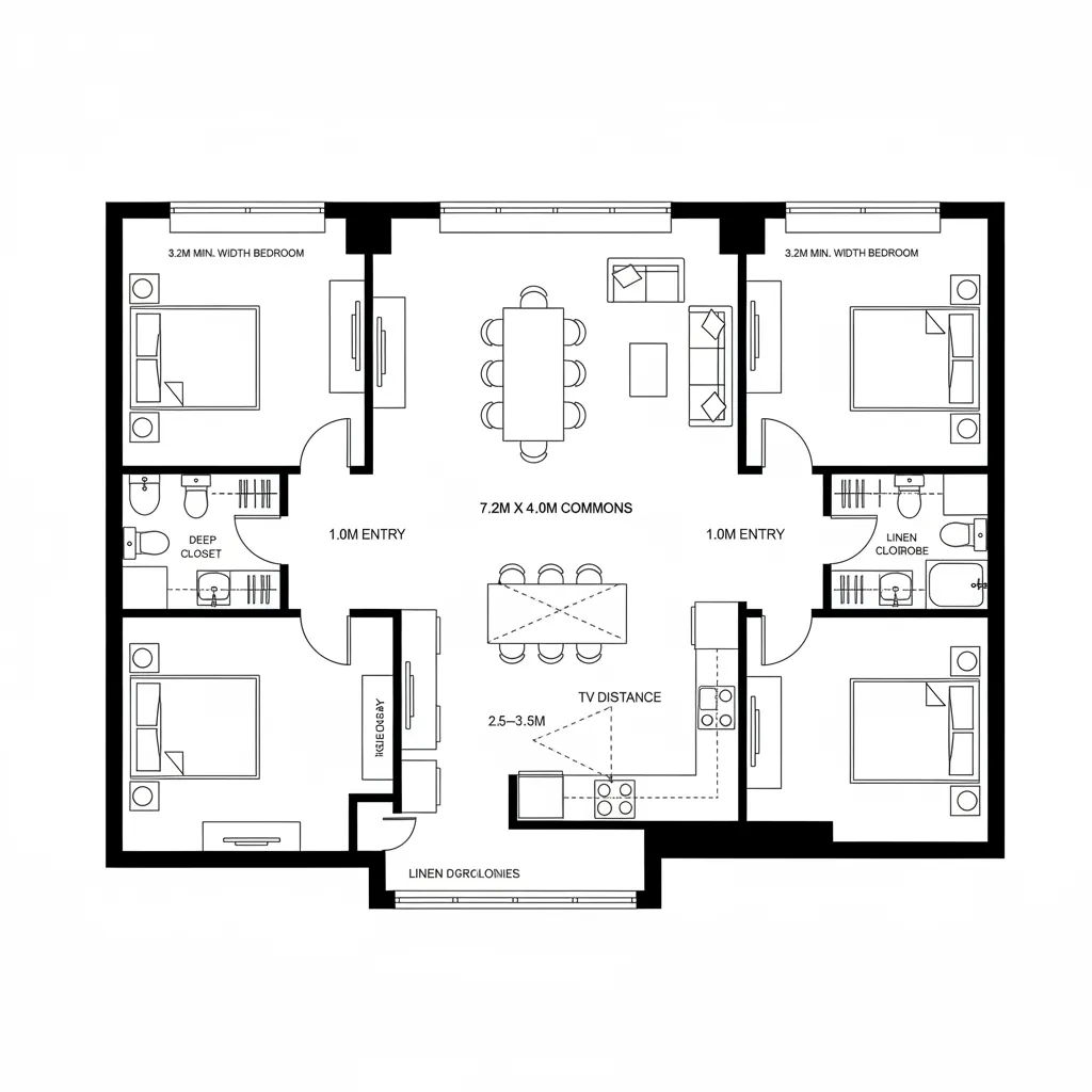
Landmark Apartments, Drawn for Tomorrow: Floor plans that read like interfaces for future livingAvery K.Dec 22, 2025Table of ContentsHybrid One-Bedroom Core + Flex BaySplit Two-Bedroom with Shared CommonsStudio with Layered Zones + Acoustic PocketFinal TakeawayFree floor plannerEasily turn your PDF floor plans into 3D with AI-generated home layouts.Convert Now – Free & InstantThe future lifestyle keeps knocking while today’s leases still trap people in inflexible boxes; I design the in‑between. AIA reports a sustained demand for flexible interiors and wellness-driven layouts, even as rents compress, and that’s exactly where landmark apartments floor plans start behaving like adaptive software. The rooms aren’t just rooms—they’re compiled choices, a spatial reasoning toolkit for what’s next.Hybrid One-Bedroom Core + Flex BayDesign Logic: A one-bed spine with a flex bay anticipates remote work cycles and micro-hosting, letting the plan scale like firmware updates.Flow: Entry → utility node → kitchen hub → living bay → sliding partition → sleep core; no blind loops, all gestures intentional.Sightlines: Long axial view from kitchen to window wall, with controlled side glances to keep cognitive load light and hierarchy clear.Storage: Wall-depth pantry, bed platform drawers, and a hallway cache that buffers seasonal items without visual noise.Furniture Fit: 84-inch sofa, drop-leaf table, and a 30x60 desk fit within API-like clearances, leaving 36-inch circulation lanes intact.Verdict: In five years, this layout will feel like a calm operating system: stable core, swappable modules, zero wasted bandwidth.save pinOpen in 3D Planner Processing... Split Two-Bedroom with Shared CommonsDesign Logic: Bedrooms on opposite nodes, commons centered—designed for co-living contracts and multigenerational rhythms that flex with time.Flow: Dual entries converge at a kitchen island, then branch to private wings; daily routines execute without collisions.Sightlines: Island becomes the UI home screen; perimeter glazing sets a horizon line while doors stagger to preserve privacy cues.Storage: Twin wardrobes, a linen cache, and deep bench bays at the entry absorb backpacks, strollers, and the weekly bulk run.Furniture Fit: Queen beds, 36-inch nightstands, and a 72-inch dining table sit inside a lattice of clearances—no jitter in movement paths.Verdict: This plan anticipates shifting user profiles; over five years it sustains roommates, newborns, and quiet rebuilds of routine.save pinOpen in 3D Planner Processing... Studio with Layered Zones + Acoustic PocketDesign Logic: A single room split into program layers—sleep, work, cook—because future studios must be multi-threaded without visual chaos.Flow: Entry node → storage wall → galley → living pad → acoustic pocket; tasks queue smoothly and never deadlock.Sightlines: Low storage edges keep horizon continuous; vertical accents stack info like UI panels, revealing depth without clutter.Storage: Full-height wardrobe with adjustable shelves, toe-kick cache, and a ceiling rail for seasonal bins—order over volume.Furniture Fit: 48-inch loveseat, foldable 24x48 workstation, and a compact 30-inch round table—precise tolerances maintain airflow.Verdict: Five years on, this studio will still feel lucid, its acoustic pocket acting like a RAM boost for focus and nightly decompression.save pinOpen in 3D Planner Processing... Final TakeawayLandmark apartments floor plans are less about square footage than about protocols—how a home negotiates time, noise, and change. With adaptable one-bed spines, split two-bedroom commons, and multi-threaded studios, the interface becomes the lifestyle. In my experience, the smartest apartments won’t be larger, only more intentional; what I keep seeing in my projects is that small spatial decisions quietly rewrite how people live.Convert Now – Free & InstantPlease check with customer service before testing new feature.Free floor plannerEasily turn your PDF floor plans into 3D with AI-generated home layouts.Convert Now – Free & Instant