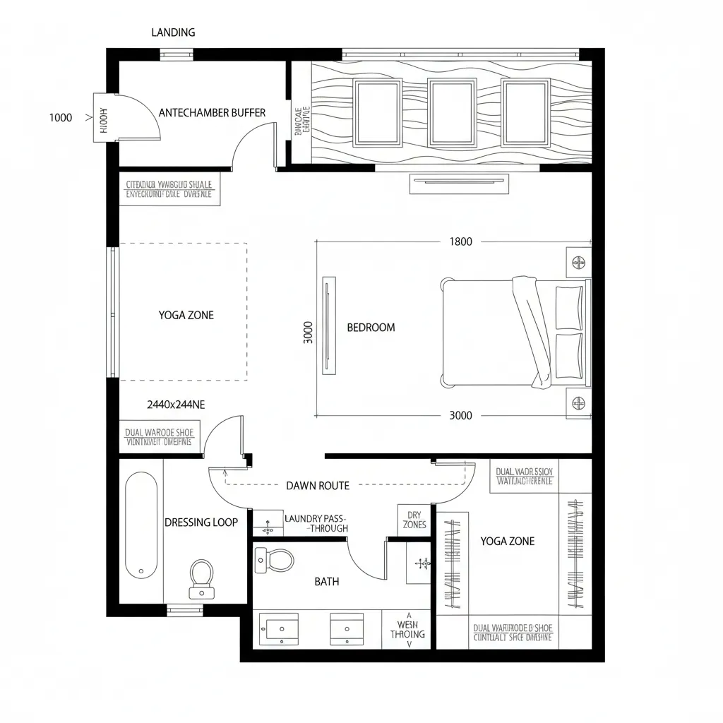
Luxury Two-Floor Plan as a Living Interface: A future-forward blueprint where movement, light, and storage compile a life of intentionKade Mora, Foresight ResidentialDec 04, 2025Table of ContentsGarden-Level Social Core + Upper SanctuaryBridge Gallery with Split StairPrimary Suite as Wellness StackFinal TakeawayTable of ContentsGarden-Level Social Core + Upper SanctuaryBridge Gallery with Split StairPrimary Suite as Wellness StackFinal TakeawayFree floor plannerEasily turn your PDF floor plans into 3D with AI-generated home layouts.Convert Now – Free & InstantThe future keeps knocking—with quieter tech, cleaner lines, and richer rituals—while today’s homes still fight clutter, noise, and fragmented routines. According to NAHB, multi-story living continues to rise in high-end segments as buyers prioritize separation of public and private zones, and that’s where a luxury 2 floor house plan becomes an early code for tomorrow’s lifestyle. I design like the present is already legacy hardware, and the next OS of living needs a spatial reasoning toolkit more than square footage.We’re not chasing maximalism, we’re compiling coherence: bandwidth for gatherings downstairs, deep-focus latency upstairs, and a clean API between them. In my work, luxury is not excess; it’s precision—light, thresholds, and time all aligning like a well-written program.Garden-Level Social Core + Upper SanctuaryDesign Logic:Public realm on ground, private on top—future routines need a firewall: entertaining without leaking into sleep. Courtyard and double-height void act as thermal and social buffers.Flow:Entry → cloak node → great room → kitchen hub → terrace; vertical jump to quiet layer: landing → bedrooms → primary suite.Sightlines:Diagonal views from entry to garden; controlled cut-outs upstairs allow glance, not exposure—UI tiers remain legible.Storage:Perimeter millwork as cache; kitchen pantry as high-capacity buffer; stair undercroft hosts seasonal bins.Furniture Fit:Great room set at 10–12 ft seating radius; dining for 8–10; upstairs nightstands clear swing arcs; desk niches sized to 30 in depth.Verdict:This split keeps social bandwidth wide while preserving sleep latency; five years out, it still reads calm under heavier device loads.save pinBridge Gallery with Split StairDesign Logic:A central split stair is a router, sending flows to distinct domains—work, sleep, and care. A bridge gallery doubles as display and light conduit.Flow:Foyer → half-flight to lounge or kitchen; ascend to bridge → left wing (kids/guests) / right wing (primary + study).Sightlines:Axial foyer view to art wall; bridge frames sky slices; controlled transparency maintains info hierarchy across floors.Storage:Drop-zone lockers at foyer; hidden laundry server near bedrooms; linen towers at bridge endpoints as micro-caches.Furniture Fit:14 ft lounge wall fits media + books; modular sofa avoids blocking stair plume; bedrooms support 76 in bed without pinching.Verdict:The bridge becomes a daily ritual path; future-proof for evolving art, teens, or hybrid work without rewriting the plan.save pinPrimary Suite as Wellness StackDesign Logic:Luxury shifts from spectacle to recovery; the suite stacks sleep, movement, and daylight like layers in an app, minimizing friction.Flow:Landing → antechamber buffer → bedroom → pocket door to bath → dressing loop; dawn route bypasses sleeping partner.Sightlines:Bed faces layered landscape; vanity sees sky not mirror clutter; thresholds dim visual noise like night mode.Storage:Dual wardrobes as structured caches: long-hang, drawers, ventilated shoe walls; laundry pass-through shortens cycles.Furniture Fit:9–10 ft bed wall allows integrated sconces; 72 in bench anchors; yoga strip 8x8 ft near operable window for air changes.Verdict:This wellness stack resists trend-rot; in five years the loop still optimizes energy, not just images.save pinFinal TakeawayA luxury 2 floor house plan is not about more rooms; it’s about higher fidelity between public bandwidth and private depth. With layered circulation, clean sightlines, and storage as an intelligent cache, two-story living becomes a responsive interface. In my experience, the smartest homes of the next decade compile intention, not excess, and I keep designing to that future I already see.Convert Now – Free & InstantPlease check with customer service before testing new feature.Free floor plannerEasily turn your PDF floor plans into 3D with AI-generated home layouts.Convert Now – Free & Instant