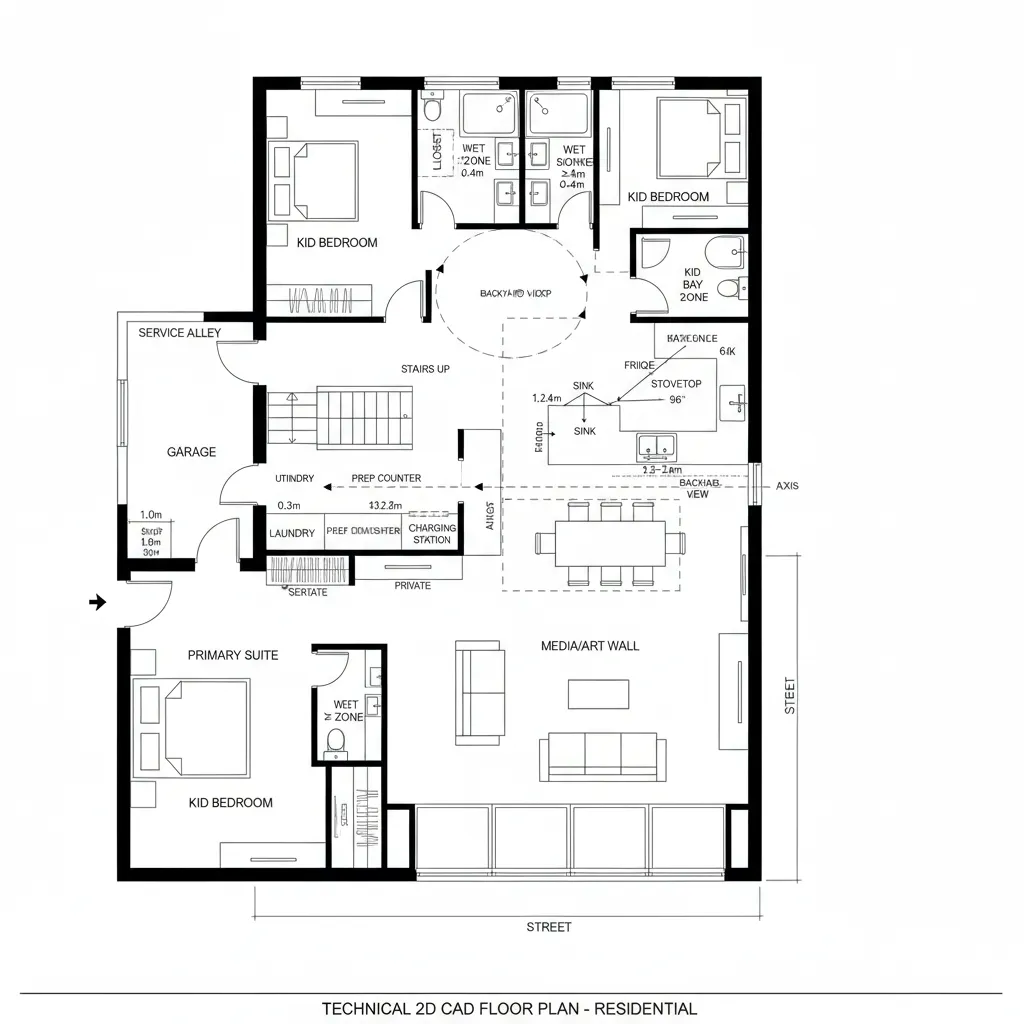
Modern 2-Floor House Plan as a Living Interface: How a two-level layout compiles tomorrow’s habits into today’s square footageEames North—Spatial FuturistDec 10, 2025Table of ContentsGround-Level Social Core + Upper Quiet StackSplit-Level Flex Spine for Hybrid WorkRear Service Alley + Front Social GalleryFinal TakeawayTable of ContentsGround-Level Social Core + Upper Quiet StackSplit-Level Flex Spine for Hybrid WorkRear Service Alley + Front Social GalleryFinal TakeawayFree floor plannerEasily turn your PDF floor plans into 3D with AI-generated home layouts.Convert Now – Free & InstantFuture living is edging closer, and I feel it press against today’s frustrations: chaotic entries, noisy overlaps, storage that leaks into life. According to NAHB, open layouts remain a top buyer priority while demands for acoustical separation grow—seemingly contradictory, yet solvable in a modern 2 floor house plan. I treat this plan like a firmware update for daily rituals, and the home becomes a precise interface for time, attention, and recovery. spatial reasoning toolkitGround-Level Social Core + Upper Quiet StackDesign Logic:Public-life bandwidth downstairs, private processes upstairs—an intentional duplexing that keeps noise and scent at the edge, not the center.Flow:Entry → mud zone → kitchen node → dining bus → living hub → garden port; stair as a compiled jump to calm.Sightlines:Diagonal from entry to backyard frames depth, while a partial-height wall edits visual noise around the cookline.Storage:Entry lockers + under-stair pantry act as cache; laundry on upper landing stores proximity, not just objects.Furniture Fit:9–10' dining run, 36" circulation rings, modular sofa set to keep a 48" sight corridor clean.Verdict:This stack buffers life like a good OS—social threads run hot, while sleep and study execute in protected memory for the next five years.save pinSplit-Level Flex Spine for Hybrid WorkDesign Logic:A half-landing inserts a micro-office as an interrupt-safe register between floors—close to life, far from distraction.Flow:Foyer → coat cache → living → three-step rise to flex bay → full rise to bedrooms; meetings never cross the dinner clock.Sightlines:Controlled peeks: desk faces side light, not family TV; glazed transom carries daylight without leaking attention.Storage:Bench drawers at landing hold peripherals; a slim closet swallows tripods and folded treadmills—latency reduced.Furniture Fit:30" work surface depth, 60" clear behind chair, 24" printer niche; sofa floats with 18" side tables as soft buffers.Verdict:As work unbundles, this flex spine keeps uptime high and domestic noise sandboxed—future-proof without excess square feet.save pinRear Service Alley + Front Social GalleryDesign Logic:Service runs silent along the rear wall so the front half performs as a gallery for daily scenes—like UI layers, not rooms.Flow:Garage drop → utility alley (laundry, prep, charging) → pivot island → dining strip → salon; upstairs: primary suite then kid loop.Sightlines:Front windows curate street theater; interior axes align art, not appliances; backyard view anchors depth like a status bar.Storage:12" deep utility wall with labeled bays; ceiling-high wardrobes upstairs act as long-term archive storage.Furniture Fit:42" kitchen clearances, 72–84" sofa span, 96" wall for media or art; beds planned to keep 30" both sides as usable API.Verdict:The house reads quickly—signals up front, processes backstage—letting families scale from weekday sprints to slow weekends.save pinFinal TakeawayA modern 2 floor house plan isn’t just stacked square footage; it’s a protocol for attention, rest, and collaboration. With two-level layouts, hybrid living zones and acoustic buffering become standard, while long-tail needs like remote work and aging-in-place slip into the code. The smartest two-story homes treat circulation as program flow and storage as cache, so daily latency drops. In my experience, the future-ready home is less about size and more about how precisely the interface fits the next five years of life.Convert Now – Free & InstantPlease check with customer service before testing new feature.Free floor plannerEasily turn your PDF floor plans into 3D with AI-generated home layouts.Convert Now – Free & Instant