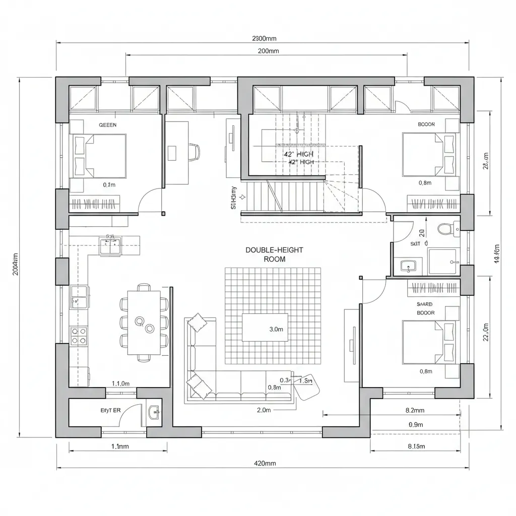
Modern 2-Floor House Plan, Written from the Near Future: How a two-level home becomes the interface for bandwidth-rich daily lifeA Designer Between Present and Near-FutureDec 04, 2025Table of ContentsSplit-Core Stair with Public-Down, Private-UpDouble-Height Living with Mezzanine StudioSide-Load Service Spine with CourtyardFinal TakeawayTable of ContentsSplit-Core Stair with Public-Down, Private-UpDouble-Height Living with Mezzanine StudioSide-Load Service Spine with CourtyardFinal TakeawayFree floor plannerEasily turn your PDF floor plans into 3D with AI-generated home layouts.Convert Now – Free & InstantThe future is compressing into our hallways while today’s homes still buffer: time poverty, storage pileups, and unpredictable routines. AIA data shows smaller lots and higher performance targets shaping every square foot, so a modern 2 floor house plan isn’t a luxury—it’s a protocol. I keep designing as if tomorrow’s frictions already arrived, threading circulation like code through living, working, and resting layers—see this spatial reasoning toolkit as a quiet backbone.Split-Core Stair with Public-Down, Private-UpDesign Logic:Ground-level becomes the social server—kitchen, dining, living—while the upper level caches sleep, deep work, and reset; zoning aligns with post-commute hybrid habits.Flow:Entry → mud bench → kitchen island hub → living edge → terrace; stair as kernel jump to bedrooms → shared loft → primary suite.Sightlines:From entry, a diagonal to garden; island to fireplace creates a readable horizon; upstairs, doors offset for privacy gradients.Storage:Under-stair drawers, pantry wall as vertical cache, linen tower near baths, attic hatch for cold data.Furniture Fit:12' living span fits a low sectional and 36" circulation; queen beds with 30" clear each side; island 9' x 3' as command line.Verdict:This stack respects circadian code: noise down, depth up—ready for five years of hybrid living without refactoring.save pinDouble-Height Living with Mezzanine StudioDesign Logic:A tall volume expands perceived bandwidth; mezzanine becomes a flexible node for studio, gaming, or telepresence.Flow:Foyer → coat niche → double-height living → linear kitchen; stair floats to mezz → bridge links secondary beds and bath.Sightlines:Vertical sight threads bind floors; glazing frames sky as UI header; mezz guard remains 42" clear glass to retain hierarchy.Storage:Toe-kick drawers, bench bays, and a mezz wall of 14" deep shelves as fast-access cache; garage ceiling racks for bulk.Furniture Fit:10' rug grid anchors modular sofa; dining 84" table aligns with window mullions; mezz desk 30" x 72" for dual monitors.Verdict:Air becomes a feature; the volume calibrates mood and work stamina, keeping the home agile through shifts in tech.save pinSide-Load Service Spine with CourtyardDesign Logic:A lateral service spine (laundry, powder, gear) protects the living core; a narrow courtyard imports daylight like an API call.Flow:Garage → drop zone → laundry → kitchen back-of-house; main path skirts courtyard → living → outdoor room; stair near courtyard light well.Sightlines:Perimeter becomes a soft shader; views bounce across green to reduce eye fatigue; upstairs hall borrows light via interior windows.Storage:Wall-to-wall utility bank, concealed recycling chute, stair landing cabinets; primary closet zoned by routine frequency.Furniture Fit:Courtyard-facing banquette 18" seat, 15° back; primary bed wall 12' for king + night tables; kids’ room fits loft bed 42" x 78".Verdict:This plan treats maintenance as background processing, so daily foreground remains calm and legible for the next half-decade.save pinFinal TakeawayA modern 2 floor house plan is less a diagram of rooms than a living interface where circulation, light, and storage negotiate bandwidth. Two-level living, split stair cores, and mezzanine studios are semantic variants of the same idea: compile tomorrow’s routines into today’s structure. In my experience, the smartest homes of the future won’t be larger—only more intentional, and my clients feel that shift the moment the flow runs without lag.Convert Now – Free & InstantPlease check with customer service before testing new feature.Free floor plannerEasily turn your PDF floor plans into 3D with AI-generated home layouts.Convert Now – Free & Instant