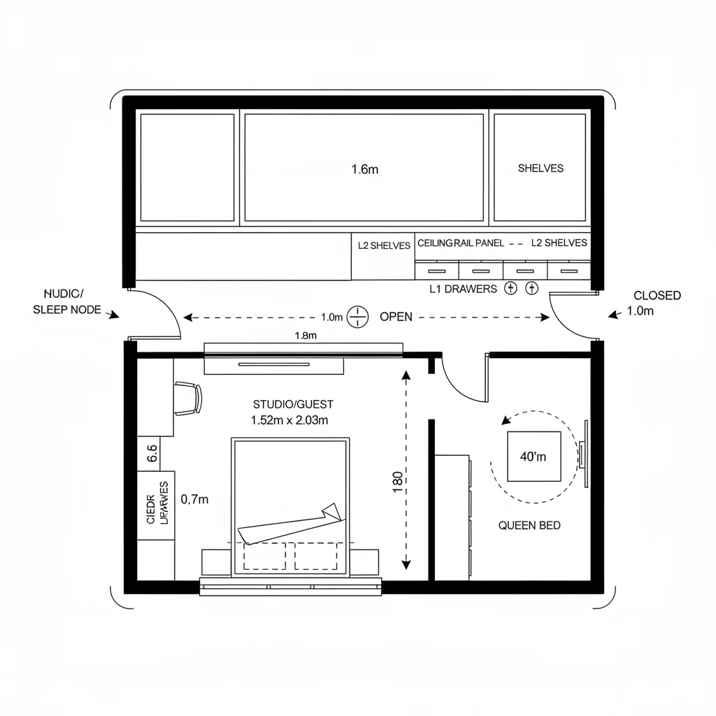
Simple Floor Plan Sample, Rendered for Tomorrow: A minimalist floor script where flow, sightlines, and storage form the operating system of daily lifeAtlas WynnDec 26, 2025Table of ContentsLinear Gallery SpineCore Block with Perimeter LoopsSplit Flex BayFinal TakeawayFree floor plannerEasily turn your PDF floor plans into 3D with AI-generated home layouts.Convert Now – Free & InstantCoohom official:Render Tools BasicsThe future keeps shrinking friction while expanding meaning, and today’s homes still choke on hallway bloat, visual noise, and misplaced closets. Industry surveys show Americans prize functional flow over raw square footage (NAHB trend data), which is why a simple floor plan sample becomes a quiet prototype for living lighter. I’m designing as if the near-future is already here, and this layout reads like early code for more intentional days—see it through this spatial reasoning toolkit.Linear Gallery SpineDesign Logic: A single circulation bar stitches entry, kitchen wall, and living edge, reducing context switching and future-proofing for flexible programs.Flow: Door → drop zone → galley kitchen → dining strip → lounge; no dead-ends, just a compiled path with low latency.Sightlines: Entry opens to a long axis; windows terminate the view like a status bar, prioritizing light and horizon over clutter.Storage: Full-height pantry and shallow wall cabinets act as cache memory along the spine, fast access, minimal retrieval cost.Furniture Fit: A 72–78 in sofa, 36 in dining table, counter-depth appliances—API limits that keep bandwidth clear.Verdict: Over five years, this spine adapts from solo life to couple living, maintaining clarity as devices and rituals evolve.save pinOpen in 3D Planner Processing... Core Block with Perimeter LoopsDesign Logic: A compact core (bath + mechanical + stacked laundry) forms a stable node; circulation loops around it like a resilient network.Flow: Bedroom and living each connect to the kitchen without collision, enabling parallel routines with minimal packet loss.Sightlines: Corner glazing frames two-layer views; partial-height partitions keep UI hierarchy readable from any node.Storage: Wrap-around closets and a linen niche at the core serve as dense cache, shortening fetch distances.Furniture Fit: 60 in queen clearance both sides, 30–36 in pathways, a 48 in media wall—precise calls that prevent buffer overflow.Verdict: The loop topology tolerates future inserts—work desk, baby gear, hobby modules—without refactoring the whole plan.save pinOpen in 3D Planner Processing... Split Flex BayDesign Logic: One rectangular bay bifurcates by sliding panel: open for communal bandwidth, closed for focus mode—an OS-level toggle.Flow: Morning: panel open to extend living; evening: panel closes to become a quiet studio; guests: converts to sleep node.Sightlines: Translucent panel keeps light continuity while masking tasks; window alignment preserves long reads across the shell.Storage: Under-window drawers and ceiling-rail shelving act as L1/L2 cache—fast for dailies, deep for seasonal.Furniture Fit: 24 in depth desk niche, 40 in fold-down table, wall-bed at 60x80—each dimension compiles without collisions.Verdict: This bay anticipates fluid work-play cycles; across five years it shifts roles without accruing technical debt.save pinOpen in 3D Planner Processing... Final TakeawayA simple floor plan sample isn’t basic; it’s a lean interface where flow, storage, and sightlines negotiate tomorrow’s pace. Through clean circulation and precise furniture APIs, even a modest layout becomes a high-fidelity operating system for living. In my experience, the smartest homes of the future won’t be larger—only more intentional, and what I keep seeing in my projects is how small spatial decisions quietly rewrite the way people live.Convert Now – Free & InstantPlease check with customer service before testing new feature.Free floor plannerEasily turn your PDF floor plans into 3D with AI-generated home layouts.Convert Now – Free & Instant