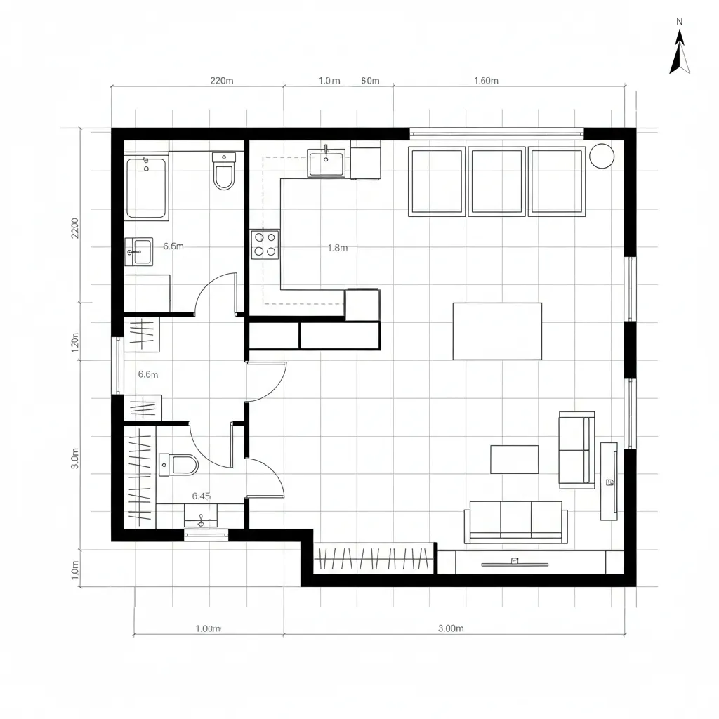
Simple Framed Building Floor Plan: A future-forward read of minimal structural grids as living interfacesAtlas MendezDec 24, 2025Table of ContentsGrid-Core StudioPerimeter Load-Bearing One-BedSplit-Bay Two-Bed with Shared SpineFinal TakeawayTable of ContentsGrid-Core StudioPerimeter Load-Bearing One-BedSplit-Bay Two-Bed with Shared SpineFinal TakeawayFree floor plannerEasily turn your PDF floor plans into 3D with AI-generated home layouts.Convert Now – Free & InstantFuture living is compressing complexity into legible systems, while today’s residents wrestle with cluttered circulation and storage scarcity. I watch the grid quietly become the operating system: spatial reasoning toolkit. In this simple framed building floor plan, the frame isn’t just structure; it’s a protocol for how life sequences will execute. AIA reports steady demand for adaptable layouts, and I design as if the near future has already arrived.Grid-Core StudioDesign Logic: A 24-inch structural rhythm sets a readable code—core wet zone centered, dry programs flex at edges, aligning with future modular upgrades.Flow: Entry→utility spine→galley kitchen→open work/lounge, with a single return loop for maintenance efficiency.Sightlines: Diagonal views from entry to window wall; partial-height storage acts like UI overlays, revealing hierarchy without noise.Storage: Wall bays convert to deep cabinets; under-bench cache lines keep daily items in fast access, seasonal in cold storage.Furniture Fit: 30x60 worktable, 84-inch sofa, slim 12-inch shelves respect the grid API; nothing fights columns.Verdict: This studio compiles into a calm runtime, ready for sensor layers and hybrid work without structural edits.save pinOpen in 3D Planner Processing... Perimeter Load-Bearing One-BedDesign Logic: Loads pushed to the perimeter free interior partitions, anticipating lifestyle updates and light construction cycles.Flow: Threshold→kitchen island node→living hub→bedroom module→bath, with a short-circuit path for night moves.Sightlines: Layered: door to island to balcony; bedroom screens act as dimmer for privacy bandwidth.Storage: Corridor closets mirror framing bays; island houses high-frequency cache, bed wall deep archive.Furniture Fit: 36-inch circulation bands, queen bed centered on grid, dining for four fits within two bays cleanly.Verdict: The plan behaves like a firmware update—rooms recompile as habits shift, with structure staying silent and strong.save pinOpen in 3D Planner Processing... Split-Bay Two-Bed with Shared SpineDesign Logic: Twin bays flank a service spine; future electrics ride the spine for painless upgrades and decarbonization retrofit.Flow: Entry node→spine→branch to social bay→branch to sleep bay; guest path keeps private subroutines secure.Sightlines: From living to terrace, cross-view into kitchen only when active; bedrooms keep buffered sightlines via offset doors.Storage: Spine houses stacked laundry and pantry; rooms gain bay-depth wardrobes—order feels baked into the code.Furniture Fit: 9–10 ft modules fit sectional + table; twin desks dock to column lines to avoid conflict.Verdict: A family can scale bandwidth here—work, rest, hosting—while the framed grid remains the stable kernel.save pinOpen in 3D Planner Processing... Final TakeawayThe simple framed building floor plan is a clean compiler for daily routines, turning structure into a readable interface. Variants like grid-core studios and perimeter-load one-beds show how minimal frames allow flexible layouts and future retrofits. In my experience, the smartest homes of the future won’t be larger—only more intentional, and I believe this structural clarity is the quiet power behind them.Convert Now – Free & InstantPlease check with customer service before testing new feature.Free floor plannerEasily turn your PDF floor plans into 3D with AI-generated home layouts.Convert Now – Free & Instant