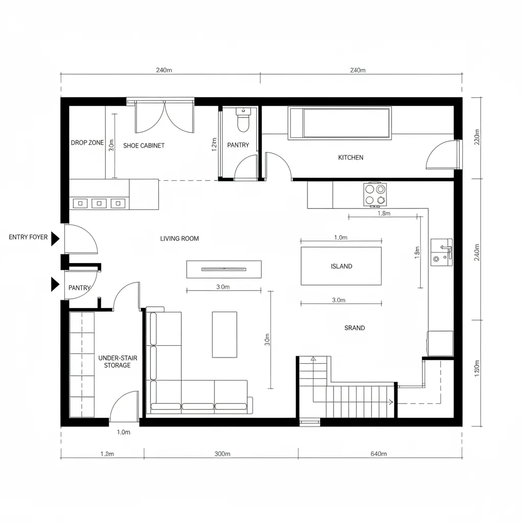
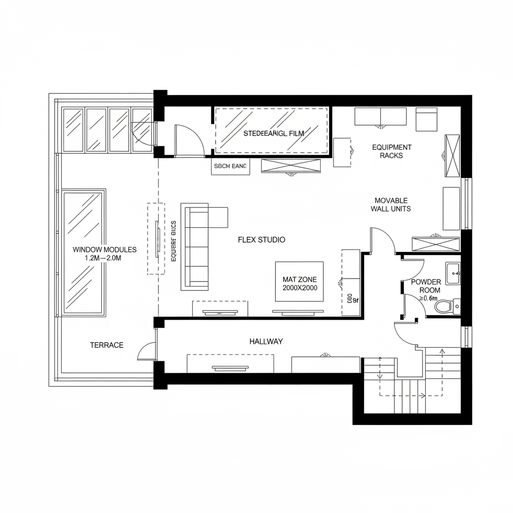
Three-Floor Flat in Kaushambi: Interface for Future Living: A layered home that compiles mobility, privacy, and shared bandwidth into one coherent programEvan North, Residential FuturistDec 12, 2025Table of ContentsGround Level Shared Hub + Service SpineFirst Floor Hybrid Work + Quiet SleepSecond Floor Retreat Terrace + Adaptive StudioFinal TakeawayFree floor plannerEasily turn your PDF floor plans into 3D with AI-generated home layouts.Convert Now – Free & InstantThe future keeps pressing into our hallways while current pain points—time-sliced commutes, hybrid work, and multigenerational pressure—crash into the same square footage. AIA reporting shows homeowners prioritize flexible zones over added area, which mirrors what I see: the flat becomes a programmable interface. Here, the main keyword emerges: flat in kaushambi 3 floor plan. And the tool I keep returning to is spatial reasoning toolkit—a quiet engine beneath every decision.Future living wants rooms that recompile on demand, while today’s discomfort is simple: no clean separation between focused work, restorative privacy, and shared rituals. NAHB data consistently shows storage and flexible living as top upgrades; Zillow and Houzz echo it. I design like a systems architect—nodes, bandwidth, and instruction sequences—because tomorrow’s habits already test today’s walls.Ground Level: Shared Hub + Service SpineDesign Logic:Public-facing rituals sit low: entry, living, kitchen, guest wash. Future trends push hospitality to be modular, with a service spine that stabilizes daily throughput.Flow:Entry → drop zone → living → kitchen island → balcony; service rooms branch like subroutines, keeping the main loop clean.Sightlines:From door to daylight: a layered axis through living to balcony, with kitchen as mid-node; peripheral views hide service clutter.Storage:Wall-depth pantry, under-stair cache, bench drawers near entry; capacity scales like a buffer against peak hosting loads.Furniture Fit:Sofa at 900–950 mm deep, island at 900 mm height, table clearance 900 mm; precise APIs for social ergonomics and device docking.Verdict:Five years ahead, this level remains the bandwidth negotiator: quick meals, micro-gatherings, parcels, and plug-in work bursts without colliding streams.save pinOpen in 3D Planner Processing... First Floor: Hybrid Work + Quiet SleepDesign Logic:Separating sleep from social traffic builds cognitive calm; the home office floats between bedrooms, absorbing weekday signal without noise bleed.Flow:Stair landing → pocket office → primary bedroom → ensuite; secondary bed offsets for guest or child, each a controlled thread.Sightlines:Desk faces soft light, not bed; corridor sight limits exposure like UI hierarchies, prioritizing focus over spectacle.Storage:Wardrobes as vertical caches, headboard niches as quick-access memory, linen tower centralizes maintenance cycles.Furniture Fit:Queen bed 1600×2000 mm with 750 mm circulation, desk 1400×700 mm, task chair clearance 800 mm; APIs tuned for long sessions and clean rest.Verdict:In the near-future cadence, this tier stabilizes cognition: deep work windows, predictable sleep, fewer interruptions in the system clock.save pinOpen in 3D Planner Processing... Second Floor: Retreat Terrace + Adaptive StudioDesign Logic:Top level becomes an elastic node—studio, fitness, media, or elder suite—pivoting with life cycle demands and seasonal energy.Flow:Stair → flex studio → terrace → powder room; outdoor edge acts as overflow buffer for heat, sound, and gatherings.Sightlines:Long views anchor circadian rhythm; interior glazing frames studio like a dashboard, with terrace as horizon line for decompression.Storage:Moveable wall units, concealed bench lockers, equipment racks; caches recompile as hobbies evolve without rework debt.Furniture Fit:Modular sofa at 700 mm seat height, fold-away table 1600 mm, mat zone 2000×2000 mm; APIs support swing states from yoga to screenings.Verdict:Over five years, this level absorbs upgrades: micro-solar, sensor air, and communal rituals—your resilient sandbox for future interfaces.save pinOpen in 3D Planner Processing... Final TakeawayA flat in kaushambi 3 floor plan works when each floor behaves like a distinct yet interoperable layer—public bandwidth below, cognitive quiet mid, adaptive sandbox above. Variants like three-level apartment layout and multigenerational urban flat prove that scale isn’t the point; orchestration is. Long-tail needs—hybrid work suite and terrace retreat planning—fit inside a precise API of sightlines, storage, and flow. In my experience, the smartest homes of the future won’t be larger—only more intentional.Convert Now – Free & InstantPlease check with customer service before testing new feature.Free floor plannerEasily turn your PDF floor plans into 3D with AI-generated home layouts.Convert Now – Free & Instant