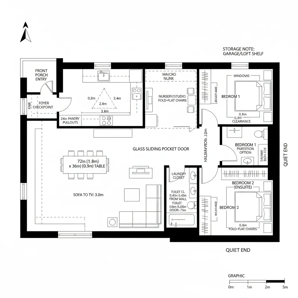
Two-Bedroom as Interface: A future-forward blueprint for the 2 bedroom house floor planLumen Hart, AIADec 03, 2025Table of ContentsCourtyard Spine with Split BedroomsRail-Loft Hybrid with Flex DenDiagonal Core with Angled SightFinal TakeawayTable of ContentsCourtyard Spine with Split BedroomsRail-Loft Hybrid with Flex DenDiagonal Core with Angled SightFinal TakeawayFree floor plannerEasily turn your PDF floor plans into 3D with AI-generated home layouts.Convert Now – Free & InstantThe future keeps pressing in while current homes still buffer on storage, privacy, and flexible work zones. AIA reporting shows smaller footprints with higher performance demands, and I feel that tension every week in planning a spatial reasoning toolkit that lives inside a 2 bedroom house floor plan. Zillow’s data on remote work persistence reminds me that bedrooms can no longer be mere sleep nodes—they’re multi-threaded processors of daily life.Courtyard Spine with Split BedroomsDesign Logic: A central garden spine splits primary and secondary rooms, answering future needs for acoustic sovereignty and daylight as energy currency.Flow: Entry → mud node → kitchen core → living hub → courtyard pivot → primary suite; guest/office routes along a parallel, low-conflict path.Sightlines: From door to green void to sky, a soft hierarchy; work desk sees light, not dishes; cooking sees kids across the void.Storage: Perimeter millwork as continuous cache; bench bays at entry; attic hatch for cold data; laundry tower as fast-access buffer.Furniture Fit: Sofa 90–100" lands in a 12'–14' bay; queen beds clear 36" beside tables; 30" circulation lanes respect human API limits.Verdict: A biophilic splitter that future-proofs privacy without carving the plan into silos—calm bandwidth with daylight as uptime.save pinRail-Loft Hybrid with Flex DenDesign Logic: Linear bar (kitchen–dining–living) runs like a data bus; a micro-den becomes hot-swappable: nursery today, studio tomorrow.Flow: Front porch → foyer checkpoint → rail sequence → sliding pocket to den → bedroom stack at the quiet end; guests never cross sleep threads.Sightlines: Long axis gives depth-of-field; low cabinets keep horizon continuous; glass pocket opens the den like a pop-over UI.Storage: 24" pantry pullouts, bed drawers, hallway linen as L2 cache; garage loft shelf as cold archive; dedicated broom niche.Furniture Fit: 36" dining depth on a 72" table; sectional with 40" clearance to media wall; den fits a 60" desk plus fold-flat chair set.Verdict: A rail system that scales with life cycles—bandwidth you can reassign with one gesture instead of a remodel.save pinDiagonal Core with Angled SightDesign Logic: A rotated kitchen core breaks orthogonal fatigue, creating micro-zones without walls—useful where lots are tight but lives are wide.Flow: Side entry → diagonal prep island → living triangle → terrace notch; bedrooms peel off the hypotenuse for quiet latency.Sightlines: Angled island frames oblique views to garden and fire; TV never dominates; study nook reads daylight first, screen second.Storage: Wedge pantry, under-stair pull-outs, and angled closet rods increase capacity by exploiting dead corners as cache.Furniture Fit: 9' island with 15" overhang seats four; primary takes a king with 30" egress; living accepts a 5x8 rug as anchor node.Verdict: The diagonal behaves like an algorithmic boost—same area, higher performance, fewer collisions across daily routines.save pinFinal TakeawayA 2 bedroom house floor plan is not just two rooms and a hall; it’s a living interface where privacy, daylight, and flexibility compile into daily uptime. With variants like split-bed wings, rail bars, and diagonal cores, the plan becomes a platform for remote work, aging-in-place, and low-energy habits. In my experience, the smartest homes of the future won’t be larger—only more intentional, and I keep designing them that way.Convert Now – Free & InstantPlease check with customer service before testing new feature.Free floor plannerEasily turn your PDF floor plans into 3D with AI-generated home layouts.Convert Now – Free & Instant