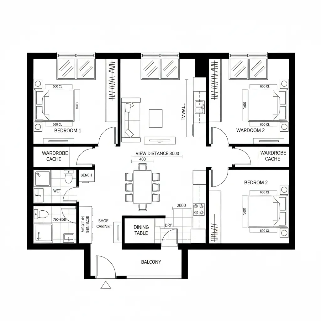
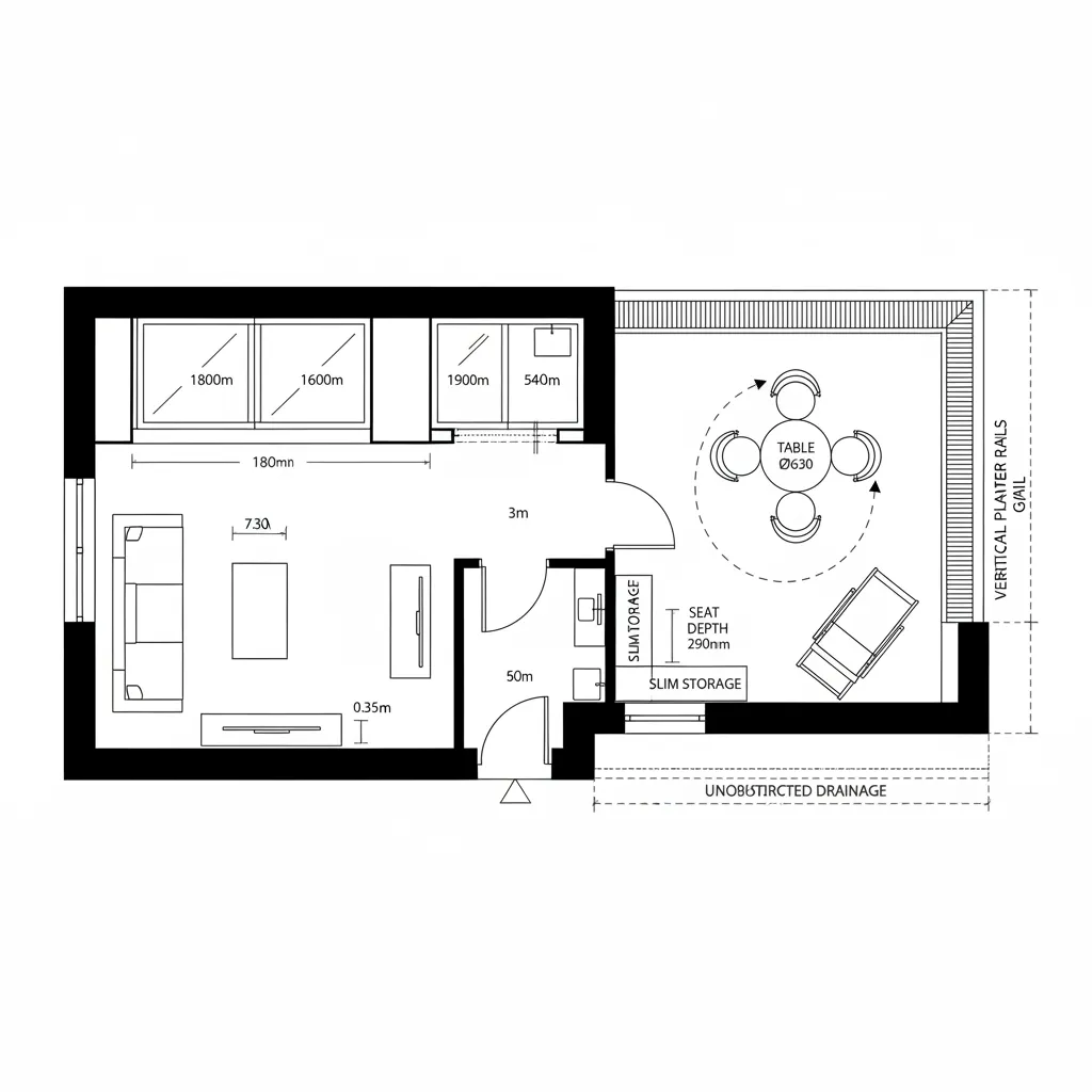
Vatika Gurgaon 21 — 2 BHK Floor Plan, Seen From Tomorrow: A designer’s futurist reading of a two-bedroom interface for everyday bandwidthEvan Nyx, Residential FuturistDec 13, 2025Table of ContentsDual-Core Living + Split PrivacyGallery Kitchen as Command LineBalcony as Adaptive BufferFinal TakeawayTable of ContentsDual-Core Living + Split PrivacyGallery Kitchen as Command LineBalcony as Adaptive BufferFinal TakeawayFree floor plannerEasily turn your PDF floor plans into 3D with AI-generated home layouts.Convert Now – Free & InstantThe future presses in through our doors while current living still stumbles on storage debt and jittery circulation; I read a 2 BHK like early code for habits we haven’t installed yet. Industry mapping (NAHB’s surveys on shifting buyer priorities toward flexible spaces) keeps validating what I witness: adaptability beats sheer square footage in a vatika gurgaon 21 2 bhk floor plan. And when I navigate layouts, I rely on a spatial reasoning toolkit as if it were a calm OS for domestic choices. The future is near, and I’m already sketching its interface.Dual-Core Living + Split PrivacyDesign Logic: Two bedrooms flank a central living-dining node, forming a dual-core architecture that future routines can load-balance—quiet work on one side, social bandwidth on the other.Flow: Entry → drop zone → living hub → kitchen loop → bedroom branches; a clean instruction sequence that minimizes cross-traffic collisions.Sightlines: Long axis from entry to balcony frames daylight as a primary UI; doors offset to prevent visual noise leaking between private nodes.Storage: Corridor wardrobes act like cache layers, with deep pantry plus bed-base drawers to reduce retrieval latency.Furniture Fit: A 84–90" sofa, 6-seat dining at 36" depth, queen beds with 24" clear sides—API limits tuned to movement and micro-rituals.Verdict: This split-privacy shell anticipates hybrid work and short social bursts—stable for five years as routines iterate without retooling walls.save pinGallery Kitchen as Command LineDesign Logic: A galley kitchen aligns like a command line: linear tasks, minimal context switching, future-proof for smart appliances and timed cooking flows.Flow: Prep → cook → plate → balcony serve; parallel returns to sink keep the cycle deterministic and low-friction.Sightlines: Partial open reveal to dining keeps status indicators (steam, plating) visible while hiding utility clutter in the side channel.Storage: Full-height pull-outs, 600mm base cabinets, a vertical appliance tower—tiered cache from quick-access to deep archive.Furniture Fit: 24" counters, 30" clear aisles each side, a 48" island alternative if width permits—precision that respects hand reach and device docking.Verdict: Linear kitchens age well; this one behaves like a stable protocol layer where new tools plug in without rewriting domestic code.save pinBalcony as Adaptive BufferDesign Logic: The balcony acts as an environmental buffer—light, air, micro-garden—absorbing seasonal load and extending the living node’s range.Flow: Living → threshold deck → morning stretch → evening tea → night cooldown; a cyclical routine that decompresses indoor bandwidth.Sightlines: Eye travels from sofa edge to skyline; vertical planters create a layered UI that filters glare while preserving horizon cues.Storage: Slim exterior cabinets and bench-seat compartments keep tools and cushions cached at edge without invading interior memory.Furniture Fit: 28–30" deep bench, bistro set at 24–26" diameter, foldable lounge at 22" footprint—tight specs for comfort within wind and sun API.Verdict: As climate signals intensify, this buffer becomes a resilience node—small but decisive, sustaining well-being loops over the next five years.save pinFinal TakeawayA vatika gurgaon 21 2 bhk floor plan is less about rooms and more about a command surface where daily scripts compile. In two-bedroom layouts, adjacency, sightline discipline, and cache-smart storage form the language of future domestic work. Long-tail expectations—hybrid workstations and flexible dining—slot into this interface without bloating the system. In my experience, the smartest homes of the future won’t be larger—only more intentional.Convert Now – Free & InstantPlease check with customer service before testing new feature.Free floor plannerEasily turn your PDF floor plans into 3D with AI-generated home layouts.Convert Now – Free & Instant