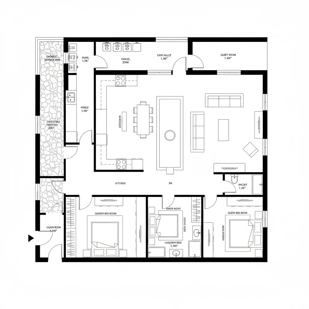
Villa Layout With Central Courtyard: A future-forward courtyard villa where flow, climate, and ritual compile into everyday claritySol LevingtonDec 04, 2025Table of ContentsRing Spine, Perimeter LivingH-Shaped Courtyard CoreCourtyard Plus Service AlleyFinal TakeawayTable of ContentsRing Spine, Perimeter LivingH-Shaped Courtyard CoreCourtyard Plus Service AlleyFinal TakeawayFree floor plannerEasily turn your PDF floor plans into 3D with AI-generated home layouts.Convert Now – Free & InstantThe future of dwelling is compressing into intentional interfaces while current homes still leak time through awkward circulation and poor daylight. As AIA reports steady rises in requests for indoor–outdoor transitions, I can feel the near-future tugging us toward a courtyard core—villa layout with central courtyard as an operating system. The pain point is simple: scattered rooms, scattered attention. I build around a nucleus to stabilize bandwidth and presence—our spatial reasoning toolkit sits quietly behind the walls.Ring Spine, Perimeter LivingDesign Logic: A looped corridor encircles a planted void; climate, light, and privacy modulate like firmware. It answers heat, cross-ventilation, and social gradients that tomorrow’s mixed schedules demand.Flow: Entry → mud node → ring spine → living/dining as shared server → private rooms on the quiet quadrant → courtyard as interrupt-safe escape.Sightlines: Framed diagonals from entry to canopy; layered translucency lets the UI reveal primary scenes first, then intimate submenus.Storage: Deep perimeter millwork acts as cache; seasonal items dock near the threshold, daily-use lives on the spine for zero-latency retrieval.Furniture Fit: Sofas float at 36–42 inches off glazing to keep air paths clean; a 9–10 ft table aligns with the courtyard axis like a data bus.Verdict: Five years on, the loop still feels quick, the center still feels calm; maintenance and ritual cohere into a resilient routine.save pinH-Shaped Courtyard CoreDesign Logic: Two bars bridged by a glassy commons create an H, letting light and program cross-pollinate. Future hybrid work needs separable acoustics without severing belonging.Flow: Carport → service foyer → bridge commons → kids’ wing left / studio right → courtyard as sync node for family standups and evening cooling.Sightlines: Longitudinal axis reads like a progress bar; cross-axis reveals garden depth, so focus and play show as distinct layers.Storage: Bridge holds a concealed pantry and AV rack—centralized cache reduces duplication across wings.Furniture Fit: Modular benches hug the bridge at 18-inch seat height; pivot chairs act as API adapters between dining, work, and lounge.Verdict: The H keeps workload and rest decoupled; adaptability remains high as kids age and schedules fragment.save pinCourtyard Plus Service AlleyDesign Logic: A quiet service alley behind the kitchen and laundry keeps the courtyard pristine. Tomorrow’s deliveries and micro-utilities need a shadow lane outside the main UI.Flow: Discreet gate → service run → kitchen node → courtyard → living → bedrooms; like background processes that never throttle foreground tasks.Sightlines: From couch to water feature to sky aperture; the service zone remains visually muted, preserving signal-to-noise.Storage: Vertical utility wall with labeled bins—an indexed cache for tools, linens, and parcels prevents overflow into social RAM.Furniture Fit: Low-profile lounge at 15–16 inches keeps horizon lines wide; outdoor table set to 28–29 inches for laptop-dinner dual use.Verdict: Clean foreground, quiet background: maintenance becomes invisible infrastructure rather than daily friction.save pinFinal TakeawayA villa layout with central courtyard behaves like a living kernel, compiling climate, privacy, and ritual into a stable interface. Variants—from ring spines to H-shaped bridges—turn light and airflow into everyday utilities, a modern riff on patio house logic and indoor–outdoor living. The right long-tail geometry becomes a social battery, not a monument, and in my experience the most future-proof villas are the ones that choreograph time as carefully as space; what I keep seeing in my projects is that small spatial decisions quietly rewrite how people live.Convert Now – Free & InstantPlease check with customer service before testing new feature.Free floor plannerEasily turn your PDF floor plans into 3D with AI-generated home layouts.Convert Now – Free & Instant