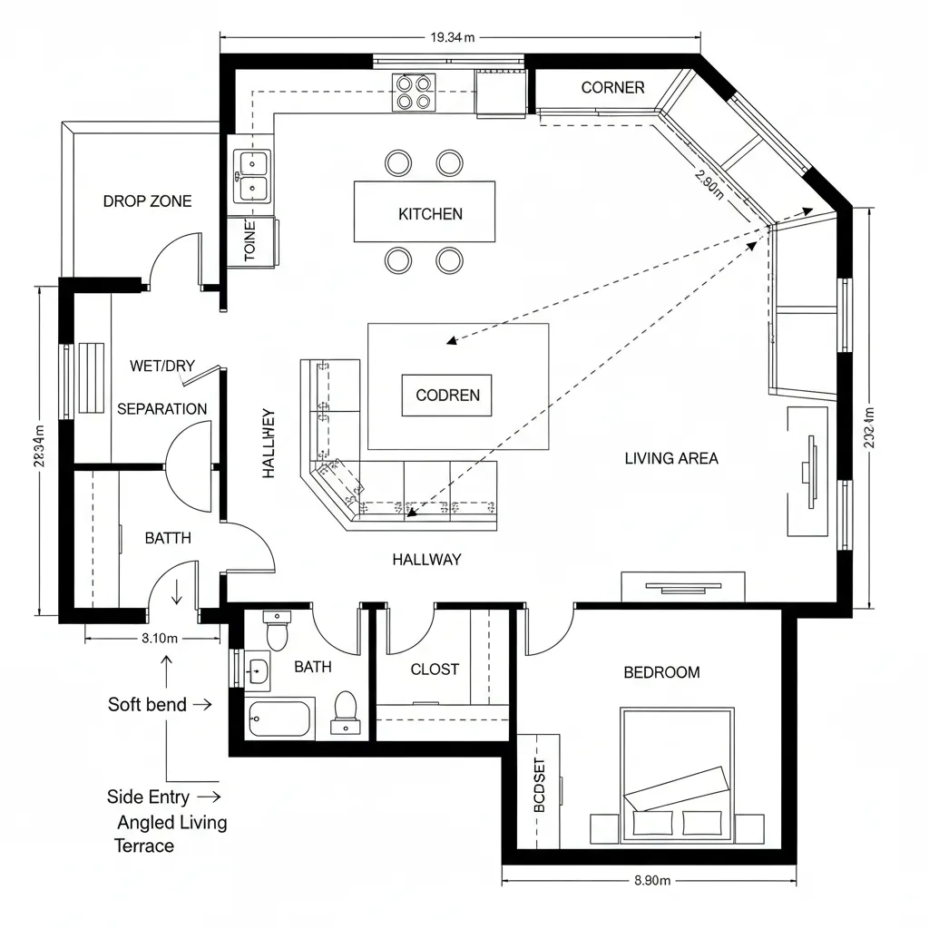
1-Bedroom 30x40 Barndominium Plan, Seen From Tomorrow: A compact steel-and-warm-wood interface for rural living with urban precisionCedar + Circuit StudioMar 26, 2026Table of ContentsFront-Gable Linear SpineCentral Core with Perimeter RoomsDiagonal View, Offset BedroomFinal TakeawayFree floor plannerEasily turn your PDF floor plans into 3D with AI-generated home layouts.Convert Now – Free & InstantThe future presses in at the edges of our fields and inboxes; current rural living pain points—storage chaos, energy drift, and acoustic spill—are now solvable in steel-framed clarity. According to NAHB, smaller single-family footprints have trended down over the past decade, which tells me the 1 bedroom 30x40 barndominium floor plans are not compromise—they’re calibration. I treat this footprint as early code for a lean lifestyle where square feet carry intent. spatial reasoning toolkitFront-Gable Linear SpineDesign Logic: A linear program: entry, kitchen, living, then bedroom at the far node, aligning rural service with urban efficiency for a 30x40 shell.Flow: Door → mud bench → galley → living bay → pocket hall → bedroom; cross-ventilated and staged like a command sequence.Sightlines: From entry, a long axial view to a window wall; kitchen sightlines skim low storage, while the bedroom remains off-axis—a private layer.Storage: Mudroom wall as cache, toe-kick drawers in kitchen, a linen niche in the pocket hall; attic truss bay adds seasonal buffer.Furniture Fit: 84" sofa, 36" pathing, queen bed with 30" clear both sides; bar-height island as dual API for dining and prep.Verdict: This spine edits noise and time, giving the next five years a predictable rhythm with minimal thermal and acoustic leakage.save pinOpen in 3D Planner Processing... Central Core with Perimeter RoomsDesign Logic: A service core as processor—bath, laundry, pantry—so living and sleeping run on the perimeter with clean I/O to light and views.Flow: Entry → ring corridor → living → kitchen loop; bedroom docks to the quiet edge, bath accessible without crossing the social bus.Sightlines: Core walls become visual firewalls; living sights reach to barn doors and meadow, while kitchen views triangulate to entry cues.Storage: 24" deep pantry in core, stacked washer closet, perimeter wardrobes as long-term cache; overhead racks in shop bay.Furniture Fit: 60" round table tolerates variable seating, low-profile media console, queen platform bed; no piece violates 36" egress lanes.Verdict: The core-as-kernel keeps maintenance and mess centralized, leaving edges bright and calm—future-proof against schedule volatility.save pinOpen in 3D Planner Processing... Diagonal View, Offset BedroomDesign Logic: Rotate living to harvest diagonal sight across the 30x40, placing the bedroom offset to dampen sound like a secondary thread.Flow: Side entry → drop zone → angled living → kitchen at the short wall → sliding door to a terrace; bedroom accessed by a soft bend.Sightlines: Diagonal to corner windows expands perceived bandwidth; bedroom sightline breaks at an angle, keeping privacy encrypted.Storage: Corner pantry, under-stair loft cubbies (if mezzanine), and a long millwork wall as cache stream; bed wall integrates 12" niches.Furniture Fit: Sectional scaled at 96" with chaise avoiding view axes; island 72" with 24" stools; dresser depth limited to 20" for hall clearance.Verdict: Angling the view upgrades spatial UX; over five years, it sustains flexibility for work-from-home without bleeding into sleep.save pinOpen in 3D Planner Processing... Final TakeawayIn barndominium design, the 1 bedroom 30x40 footprint behaves like a disciplined interface where every wall must earn its instruction. Variants of a one-bedroom rural shell—compact barn home, steel-frame cottage—become long-tail solutions to energy, storage, and acoustic control. Floor plan intelligence is less about size, more about signal clarity across flow, sightlines, and cache. In my experience, the smartest homes of the future won’t be larger—only more intentional.Convert Now – Free & InstantPlease check with customer service before testing new feature.Free floor plannerEasily turn your PDF floor plans into 3D with AI-generated home layouts.Convert Now – Free & Instant