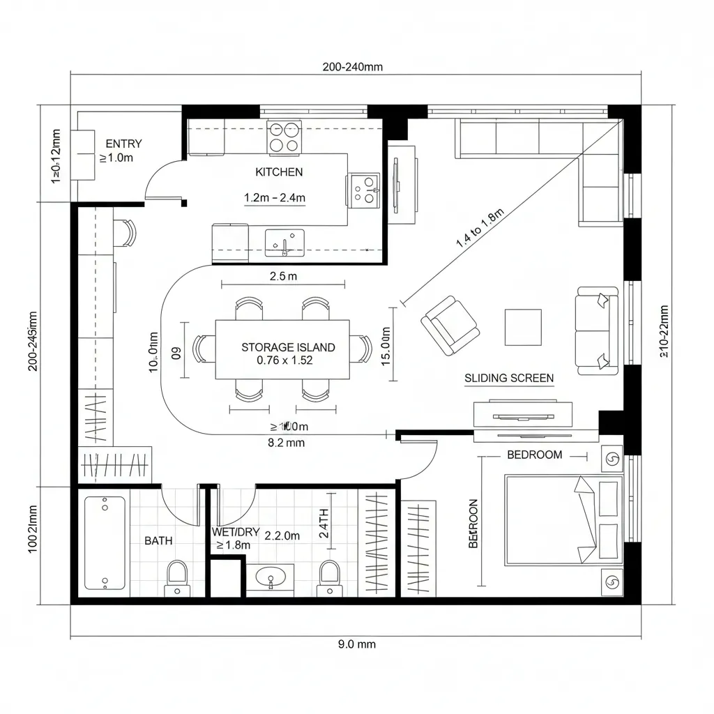
1 BHK Future-Ready Floor Plan DWG: A compact interface between present pains and tomorrow’s habitsJuno HargraveMar 26, 2026Table of ContentsLinear Spine with Pocket FlexLooped Studio + Separable SleepDual-Axis Day/Night GridFinal TakeawayFree floor plannerEasily turn your PDF floor plans into 3D with AI-generated home layouts.Convert Now – Free & InstantThe future presses in through small homes first, where every inch must negotiate work, rest, and social bandwidth. Industry data from Zillow shows smaller households are rising while space remains flat, so the 1 bhk floor plan dwg becomes early code for a new lifestyle. I treat it like a compact operating system, optimizing latency between functions, because the future is approaching and I can already see its choreography. spatial reasoning toolkitLinear Spine with Pocket FlexDesign Logic: A single corridor behaves like a backbone, routing living, cooking, and sleeping into predictable nodes for hybrid work-life rhythms.Flow: Entry → kitchen wall → living bay → sliding partition → bedroom; a clear instruction sequence that can switch modes without friction.Sightlines: Low cabinets and a glazed pocket door keep a long visual thread, letting daylight read as primary UI from window to entry.Storage: Full-height pantry + bed platform drawers = a tiered cache; overflow sits in a slim hall wardrobe for quick retrieval.Furniture Fit: 72–78" sofa, 30" deep media shelf, queen bed in a 10' x 11' room; API limits ensure circulation stays above 32" clear.Verdict: This spine anticipates five years of remote work and micro-hosting, running stable even as functions update.save pinOpen in 3D Planner Processing... Looped Studio + Separable SleepDesign Logic: A circular path around a central storage island keeps tasks concurrent—cook, call, reset—without context switching fatigue.Flow: Entry → kitchen U → island → living arc → sliding screen → bedroom; a loop that buffers interruptions like a good scheduler.Sightlines: Diagonal views from entry to corner window build layered depth; screens filter rather than block, like adjustable UI panes.Storage: Island with 24" deep base, overhead rail cabinets, and a wall niche—multi-level cache with hot, warm, cold tiers.Furniture Fit: Drop-leaf table (30" x 60" open), two stackable chairs, compact lounge chair; geometry respects turn radii and task nodes.Verdict: The loop sustains momentum, ideal for clients who cycle between creative sprints and quiet sleep windows.save pinOpen in 3D Planner Processing... Dual-Axis Day/Night GridDesign Logic: Two perpendicular bands—day (living/kitchen) and night (bed/bath)—encode clarity; future routines snap to the grid without drift.Flow: Entry aligns to day axis; a 90° pivot hands off to night; each path minimizes crossings, like well-structured code branches.Sightlines: Framed views across axes—cook station to balcony, headboard to soft lamp—set hierarchy and calm cognitive load.Storage: Linen tower at the pivot, kitchen tall unit, bed wall system; caches placed at decision nodes prevent lag.Furniture Fit: 36" dining round, modular 8' wall storage, 60" desk along day band; dimensions lock into the grid for clean movement.Verdict: This layout scales with upgrades—smart lighting, convertible desk—without refactoring the plan.save pinOpen in 3D Planner Processing... Final TakeawayThe 1 bhk floor plan dwg is not just a drawing; it’s a lifestyle interface that compiles tomorrow’s habits in today’s square footage. Variants like compact one-bedroom layouts and small apartment grids prove that precision beats size. Long-tail thinking—future-ready storage maps and adaptive partitions—keeps bandwidth high in tight quarters. In my experience, the smartest homes of the future won’t be larger—only more intentional.Convert Now – Free & InstantPlease check with customer service before testing new feature.Free floor plannerEasily turn your PDF floor plans into 3D with AI-generated home layouts.Convert Now – Free & Instant