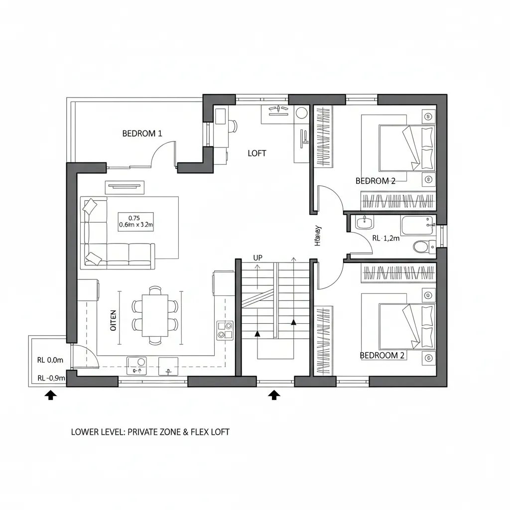
1000 sq ft Future-Ready Floor Plans with Elevation: A designer’s view of compact interfaces that choreograph everyday life and tomorrow’s habitsAtlas R. KlineJan 21, 2026Table of ContentsSplit-Level Core with Lofted FlexSingle-Level Grid with Raised VolumeCourt House Loop with Stepped RoofFinal TakeawayFree floor plannerEasily turn your PDF floor plans into 3D with AI-generated home layouts.Convert Now – Free & InstantThe future presses closer while today’s households juggle hybrid work, rising energy costs, and the need for adaptable rooms; I read AIA’s Home Design Trends Survey showing sustained demand for flexible, multi-use spaces, and it validates how 1000 sq ft plans with elevation must think beyond square footage. In this compression, spatial reasoning toolkit becomes survival gear, and floor plans of 1000 sq ft with elevation read like early code for a lifestyle that edits itself.Split-Level Core with Lofted FlexDesign Logic: A compact split-level seeds vertical bandwidth: living below, flex loft above, anticipating work-play overlays and privacy pivots.Flow: Entry→living hub→ stair as command line→loft flex→bedrooms set back; circulation compiles short, purposeful paths.Sightlines: From entry, layered vistas stack: low living plane, mid stair stringer, high loft edge—UI tiers that reveal without overexposing.Storage: Stair riser drawers, a loft knee-wall cache, and base-cab arrays keep clutter in low-latency reach while preserving air.Furniture Fit: Slim sectional, 30x60 dining, wall-mounted desk API in loft; bed frames float off corners to keep packet loss minimal.Verdict: This structure anticipates five years of hybrid rhythms, letting elevation act like a version update without breaking the code.save pinOpen in 3D Planner Processing... Single-Level Grid with Raised VolumeDesign Logic: A clear grid plan gains a raised ceiling over the living zone—volume as interface—making 1000 sq ft breathe beyond its metrics.Flow: Foyer→open kitchen→great room under higher datum→private wing; the sequence reads like a tidy function call stack.Sightlines: Higher clerestories deliver layered light; sightlines thread kitchen to terrace, keeping UI priority on social nodes.Storage: Pantry wall as cache server, bench storage at windows, and deep wardrobes buffer the private wing’s data.Furniture Fit: Low-profile sofa, 36x72 table, island stools aligned to circulation lanes; bedroom pieces respect door swing protocols.Verdict: Elevation is used where it matters—over the social kernel—future-proofing gatherings, remote meetings, and slow Sundays alike.save pinOpen in 3D Planner Processing... Court House Loop with Stepped RoofDesign Logic: A compact courtyard loop centers light and microclimate; stepped roof planes tune solar and privacy like adjustable settings.Flow: Entry→loop corridor→courtyard node→rooms branch off; movement cycles efficiently, always returning to the luminous core.Sightlines: Sightlines skim edges, then land in the court—UI hierarchy that calms, secures, and informs orientation instantly.Storage: Perimeter built-ins, courtyard bench trunks, and over-door transom shelves make a disciplined cache around the loop.Furniture Fit: Courtyard-ready folding set, modular sofa blocks, 60-inch media plane; pieces respect door thresholds as API gates.Verdict: Over five years, this loop with stepped elevation adapts to seasons and uses, keeping energy tight and rituals centered.save pinOpen in 3D Planner Processing... Final TakeawayFloor plans of 1000 sq ft with elevation aren’t about height for spectacle—they’re about precise interfaces that let small footprints act large. From lofted flex zones to raised volumes and stepped roofs, the plan becomes a programmable surface aligning light, privacy, and flow. These compact layouts feel like future firmware for domestic life, and in my experience, the smartest homes ahead won’t be larger—only more intentional.Convert Now – Free & InstantPlease check with customer service before testing new feature.Free floor plannerEasily turn your PDF floor plans into 3D with AI-generated home layouts.Convert Now – Free & Instant