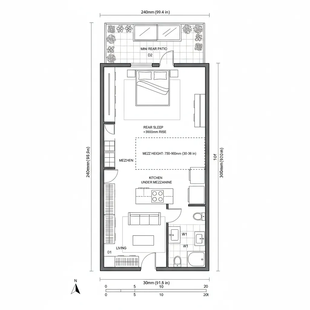
10x30 Future-Ready Indian Floor Plan: A narrow footprint as a living interface for tomorrow’s rituals and routinesA. N. SpatialJan 21, 2026Table of ContentsFront Courtyard Studio SpineMid-Court Ventilation LoopRear Sanctuary + Pocket MezzanineFinal TakeawayFree floor plannerEasily turn your PDF floor plans into 3D with AI-generated home layouts.Convert Now – Free & InstantFuture lifestyles are compressing routines into tighter spatial interfaces while today’s pain point remains: narrow plots force awkward circulation, glare, and storage fatigue. Industry surveys continue to show space optimization leading renovation priorities; Houzz notes small-home upgrades rising year over year. In this 10 x 30 foot Indian floor plan, I read constraints as code: a slim site that wants bandwidth, not bulk. The future is pressing in, and I can already see its outlines. spatial reasoning toolkitFront Courtyard Studio SpineDesign Logic: A compact front chowk buffers street noise, then the studio spine consolidates living-cooking as one adaptive program.Flow: Entry—courtyard—living—galley—bath—rear sleep; a single directive sequence minimizing cross-traffic.Sightlines: From door to rear wall, layered translucency acts like UI breadcrumbs; courtyard light anchors the hierarchy.Storage: Linear wall units and loft cabinets run as a cache strip, with under-bench drawers for seasonal items.Furniture Fit: 24–30 inch deep sofa-bench, 18 inch dining ledge, slim 22 inch counters—API limits matched to the footprint.Verdict: For solo living or a couple, this layout anticipates flexible work-meal cycles over the next five years, stable yet reprogrammable.save pinOpen in 3D Planner Processing... Mid-Court Ventilation LoopDesign Logic: A small internal court becomes the thermal engine, splitting the plan into public front and private rear nodes.Flow: Door—living—mid-court—kitchen—bath—bedroom; a looped path that refreshes air like a periodic task.Sightlines: Short, framed views through jali screens: privacy as layered information, never a flat feed.Storage: Stair-height cabinetry around the court forms a circular cache with labeled modules to prevent overflow.Furniture Fit: Fold-down table (30 x 36), cot 60 x 75, niche altar 12 inch deep—precision keeps latency low in movement.Verdict: Families with ritual rhythms gain a breathable mid-node; future summers feel manageable, not throttled.save pinOpen in 3D Planner Processing... Rear Sanctuary + Pocket MezzanineDesign Logic: The back becomes a quiet sanctuary while a pocket mezzanine above the kitchen stores bulky archives and guest bedding.Flow: Entry—living—kitchen under mezz—compact bath—rear sleep—mini patio; a stepped program with pauses as buffers.Sightlines: Low sightlines in the front, lifted in the rear; vertical cues guide attention like expanding panels in an app.Storage: Mezzanine cache (30–36 inch high), toe-kick drawers, and wall niches curated as a clean data schema.Furniture Fit: Platform bed 12 inch rise, wardrobe 18–20 inch depth, stacked stools; each element respects narrow-channel rules.Verdict: This layout anticipates multigenerational visits and hybrid work, sustaining calm while flexing under future demand.save pinOpen in 3D Planner Processing... Final TakeawayThe 10 x 30 foot Indian floor plan is a slim protocol where circulation, light, and storage act like code compiling daily life. Variants—narrow house layout, chawl-style unit, micro-row home—share an ethos: bandwidth over bigness. Long-tail needs like cross-ventilation strategies and monsoon-ready storage are baked into the interface. In my experience, the smartest homes of the future won’t be larger—only more intentional.Convert Now – Free & InstantPlease check with customer service before testing new feature.Free floor plannerEasily turn your PDF floor plans into 3D with AI-generated home layouts.Convert Now – Free & Instant