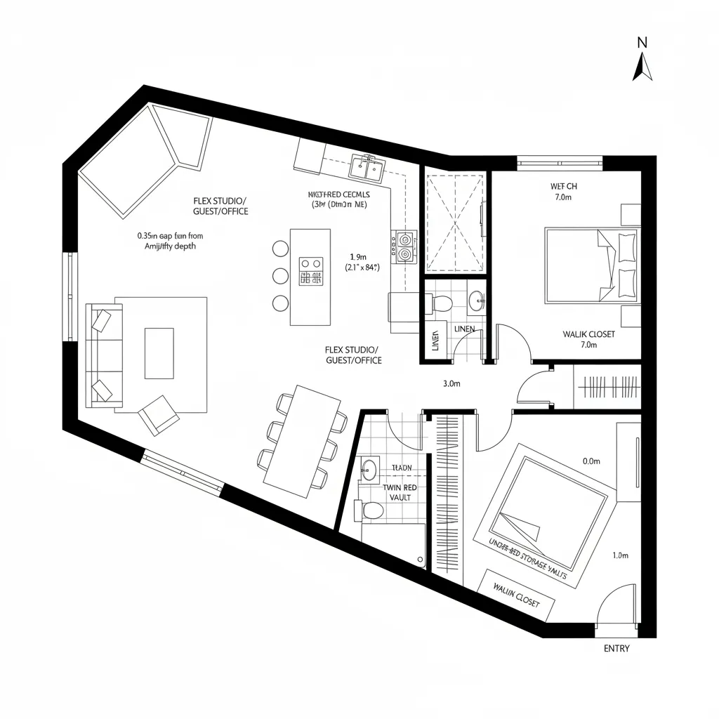
2-Bedroom Ranch, 1 Bath — Future-Ready Quiet Geometry: A compact American ranch translated as a lifestyle interface for the next five yearsMorrow HaleJan 21, 2026Table of ContentsSplit-Front Quiet Zone + Rear Social CoreCenter Spine Hall with Cross-Program NodesSide-Car Flex Room + Open Diagonal Living## Final TakeawayFree floor plannerEasily turn your PDF floor plans into 3D with AI-generated home layouts.Convert Now – Free & InstantFuture living keeps pressing closer while current homes stall on daylight, storage, and acoustic boundaries. Industry data from NAHB continues to show steady demand for modest footprints optimized for aging-in-place, multigenerational flexibility, and energy discipline—exactly where 2 bedroom 1 bath ranch floor plans become a testing ground. spatial reasoning toolkit sits in my pocket as I draw; the interface must evolve faster than our routines.Split-Front Quiet Zone + Rear Social CoreDesign Logic:Bedrooms flank the front corners; kitchen–living consolidates at the rear to harvest light and keep noise vectors away from sleep. The trend favors separation of primary rest from social bandwidth.Flow:Entry → short hall node → left/right bedroom forks → linear push to rear open plan → patio as final output.Sightlines:Entry gives a shallow preview to living; primary views anchor outward, while bedroom doors recess to second layer, like hidden UI menus.Storage:Front coat cache, dual reach-in closets, a hallway linen stack, and a rear pantry wall—ordered like tiered memory.Furniture Fit:Sofa at 84–90", dining table 60" oval to keep edges soft in the flow; queen beds with 30" side clearance—API limits respected.Verdict:This layout isolates rest and amplifies rear light; five years out, it still feels calm under evolving work-from-home rhythms.save pinOpen in 3D Planner Processing... Center Spine Hall with Cross-Program NodesDesign Logic:A central hall becomes the command bus; rooms plug in symmetrically, shrinking decision time and friction. Future routines favor predictable wayfinding and adaptable nodes.Flow:Entry → spine → branch to bedrooms → mid-hall bath as service interrupt → living/kitchen at terminus for communal compile.Sightlines:Short, deliberate frames: hall to art niche, then framed window beyond; bedrooms shielded, living revealed last for cinematic load-in.Storage:Built-in hall towers (12–16" deep), bath alcove, under-bench in dining; a mapped cache avoiding random scatter.Furniture Fit:Modular 72" sofa + lounge chair matrix; 30" work desk tucked near a window; full-size appliance clearances kept clean like API contracts.Verdict:The spine makes discipline feel intuitive; it will age well as a family OS or a downsized couple’s system.save pinOpen in 3D Planner Processing... Side-Car Flex Room + Open Diagonal LivingDesign Logic:One bedroom gains flex permissions—studio/guest/hybrid office—while living runs on a diagonal to widen perceived bandwidth. Future households need permissions more than partitions.Flow:Entry → oblique living path → kitchen island node → slide to flex room → private bedroom ends the sequence.Sightlines:Diagonal lines open depth, stacking views from island to corner window; flex door frosted for layered privacy UI.Storage:Floor-to-ceiling wall system in the flex, deep base drawers at the island, and bed vaults with 18" under-storage—cache is stratified, not bulky.Furniture Fit:Island at 36" x 84" for three stools; transformable sleeper sofa; queen + 24" side tables in primary—each dimension speaks in future tense.Verdict:The diagonal reads larger without square footage inflation; the flex room mirrors shifting work/play protocols over time.save pinOpen in 3D Planner Processing... ## Final TakeawayIn compact ranch frameworks, 2 bedroom 1 bath plans act like firmware updates to domestic life, translating constraint into clarity. Variants such as two-bed layouts with a flex node and single-bath efficiency show how small footprints can scale future routines. For long-tail needs like aging-in-place ranch design and small lot infill, precision beats size. In my experience, the smartest homes ahead won’t be larger, only more intentional—and I keep designing toward that horizon.Convert Now – Free & InstantPlease check with customer service before testing new feature.Free floor plannerEasily turn your PDF floor plans into 3D with AI-generated home layouts.Convert Now – Free & Instant